Projecte Participatiu d'Habitatge

Page 1

UP5. DISSENY I TRANSFORMACIÓ SOCIAL. PROJECTE PARTICIPATIU D´HABITATGE

2n Espais Interiors – PROJECTES Anna Castanyer

Anàlisi de l’estat actual C/ Sant Francesc, 71, Terrassa.

• Antiga fàbrica textil Pont Aurell i Armengol.

• Patrimoni Historic

• 1.500m2 dues plantes.

• PB sostre revoltó, primera planta encavallades de fusta + formigó,

• Altura fins encavallades 3,90m.

• Construcció entremitjeres Sud-oest façana principal, sud-est façana posterior,

• Obertures a cada una de les façanes, llum natural

• Accés per façana principal C/ Sant Francesc.

• Carrer peatonal amb un sentit de circulació de vehicles.

Allotjament temporal per a joves. “El primer refugi”.

• Intervenció en una antiga nau industrial de la ciutat de Terrassa.

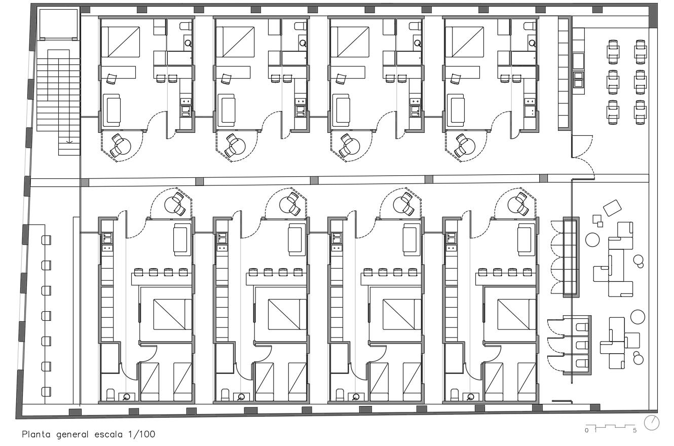
• Disseny de 8 habitatge, 24 pax aprox

• 4 unitats 2 pax + 4 unitats 4 pax.

• Necessitat allotjament temporal.

• Espai colaboratiu

• Materials eficients i ecològics. Sostenibilitat.

• Minimitzar cost econòmic de la vivenda com a primera necessitat.

Bloc6x6.Bosch.Capdeferro Arquitectura MNACTEC.MuseuNacionalde laCienciailaTecnologia.

Espais comuns – privatius. Circulacions.

Circulació central, que derivarà a cada un dels mòduls proposats, i que servirà també com a nexe de cada habitatge amb un espai privatiu que s’obrirà a la zona comú.

Espais privatius 299m2

Espais comuns 262m2

Patis interiors 61m2

Planta general ventilació 1/100

Circulació Central Mateixa línia circuació, obrim part de les encavallades.

Llum natural a tot l’eix central Patis de vidre per permetre ventilació externa + obertura coberta

Ventilació exterior Ventilació interior

Planta general ventilació coberta

Ventilació exterior Ventilació interior

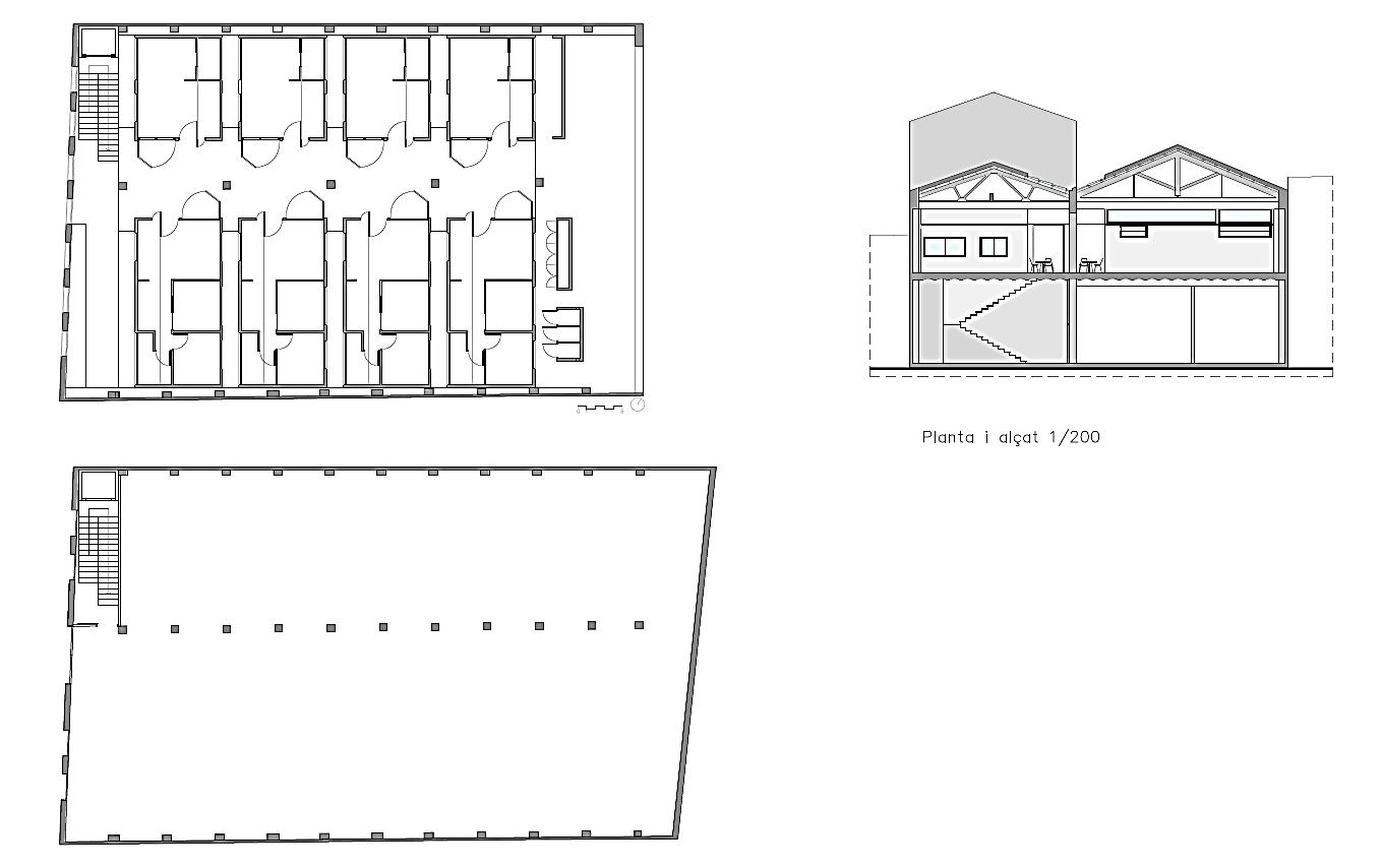
Planta baixa vestíbul accés 1/100

Planta general coberta 1/100

Planta general i unitats habitacionals 1/100

Detalls Materials

4
Obertures / finestres perfilaria pi Paviment exterior Microciment tonalitat pedra (3mm) Paviment exterior
1 2 3
Microciment tonalitat pedra (3mm)
1 2 3
3 4 4
Mòduls espais comuns Pladur pintura blanc 4

Planta general coberta. MATERIALS.

4

Obertures superior mòdul Doble vidre fixe

Coberta mòduls Fusta CLT pi (panells fusta contralaminada)

Perfileries obertures Fusta pi natural

Mòduls cuina exterior Fusta contraxapat blanc

1 2 3
4 1 2 3

4

Coberta mòduls CLT (panells fusta contralaminada)

Obertures superior coberta Finestres projectants

Revestiment parets laterals Pladur pintura blanca

Escales obra Revestiment fusta pi

Seccions / alçats generals 1/100
1 2 3
1 3 2 3 4

Seccions / alçats generals 1/100

Parets mòduls CLT (panells fusta contralaminada) Mobiliari cuina exterior Fusta contraxapat blanc Mòduls espais comuns Pladur pintura blanc
1 2
4 3
3 4
1 2
Vidre patis interios Doble vidre sense perfileria

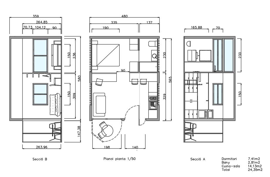
Planta i secció unitat habitacional 1/50

4

Paviment interior microciment pedra (3mm)

Mobiliari interior mòdul Fusta contraxapat blanc

Parets mòduls CLT (panells fusta contralaminada)

Obertura finestra principal Abatible perfilaria fusta

1 2 3
1 2 2 3 3 4

Representació tridimensional escala 1/100. Interiors.

Representació tridimensional escala 1/100. Coberta mòduls.

Representació tridimensional escala 1/100. Tall coberta exterior.

Representació tridimensional. Alçats longitudinals.

B A
Secció A

Representació tridimensional. Alçats longitudinals.

B A
Secció B
Perspectives.
Perspectives.

Unitat Habitacional 2pax. ALÇATS

Unitat Habitacional 2pax. PLANTA.

Unitat Habitacional 2pax. PERSPECTIVA.

Unitat Habitacional 2pax. PERSPECTIVA.

Unitat Habitacional 4pax. ALÇATS.

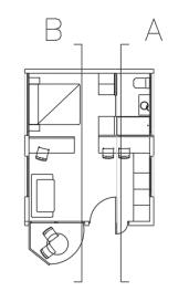
Unitat Habitacional 4pax. PLANTA.

Unitat Habitacional 4pax. PERSPECTIVA.

Maqueta 1/50 Unitat Habitacional 4pax. PERSPECTIVA.

Turn static files into dynamic content formats.

Create a flipbook
Issuu converts static files into: digital portfolios, online yearbooks, online catalogs, digital photo albums and more. Sign up and create your flipbook.