Portfolio_2025

Page 1


port ARCHITECTURE

folio

ALEXANDER MUSAU

Architecture is a wonderful opportunity to place ourselves in the lives of humanity, and ask ourselves what we can do to mold it. The environment around us shapes our lives whilst being a canvas that we can impact daily. I have pursued interests in sustainability and renewable energy alongside my primary degreee path. This portfolio is a showcase of the architectural work I have done, as well as an attempt to bring together creative ideas from all these fields. Architecture is not the built environment rid of humanity, it is the joint life of the human and nonhuman to shape, break, and create a world for all.

CLOISTERED

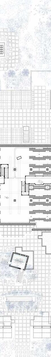
Housing project seeking to design a mass housing concept in a small town. This project was based on a site in Baldwinsville, NY.

The tasks encouraged students to learn about the programmatic requirements of contemporary residential architecture.

Conducting site analysis focused on wind flows and sun paths. Given that the site is in New York, winter winds are the primary concern.

Experiments were conducted to apply formal qualities to the conclusions of the site analysis.

SPRING

SUMMER FALL

A set of townhomes and block apartments grouped into four cloisters. Car-free center to encourage walking, cycling and outdoor conversation.

Vegetation throughout the property to keep the environment close and cool. Courtyards as an intermediate space between the public walkways and the private units/homes.

Blocking most cold winter wind while creating communal spaces.
Protection from winter wind, views of river, sounthern sun exposure and summer winds. Each variable in some quantity.

Blocking winter wind and creating spaces that view the river and use the summer

SITE

Optimizing protection from cold winter wind while maintaining views

Blocking from prevailing winds, emphasizing communal space optimal for southern sun exposure.

Stacked geometry creates shade from sun, while gaps allow summer winds through and block winter wind.

The block apartments host commercial space on the first level and three floors of residential units above. Four units on each floor welcome views and spacious, comfortable living.

TYPICAL FLOOR

Each cloister hosts five townhomes and one block apartment. The block apartments line the central boulivard, creating a conversation between these residential units and the commercial spaces on the first floor.

The goal of the cloisters is to create a “mini community” within the neighborhood. Residents in a cloister share a semi-private courtyard. Giving them their own space to commune.

BREATHING CITY 2

Designing BIG. A big idea that could reshape our idea of ‘living’ rather than traditional ideas of housing. The task encouraged students to explore a new baseline for housing that shifts the balance towards the community and stewardship.

By studying its context, I situated the narrative of my building within that of its urban fabric creating a syncopation in the story of housing in Harlem, NY.

This project uses tools and principles of sustainability to propose a better way of building for living.

An air purifier that operates at the scale of the building to clean at the scale of a particle. It’s attached to this apartment complex as a proposition of its replicability across a cityscape.

Walls insulated with hemp fibers as a way for the buildings to breathe in and soak up the carbon dioxide intoxicating our cities.

CARBON SEQUESTRATION

TIMELINE CARBON TYPE

POST SEQUESTRATION

CARBON STORAGE

Sequestration occuring before construction of building

ACTIVE SEQUESTRATION

Sequestration occuring after construction of building during its lifespan

BIOGENIC CARBON

Carbon sequestered during the plants growth

NONBIOGENIC CARBON

Carbon sequestered after material’s life

Proposing to use hempcrete as a sustainable insulation material. It sequesters both biogenic and nonbiogenic carbon.

With an impermanent wall spliting the module, these units can be combined to meet the needs of a growing family or multigenerational living.

PROCESSES

PHOTOSYNTHESIS

6CO2 + 12H2O + Insolation

C6H1206 + 6H2O + 6O2

TIMBER STRUCTURE

GREEN ROOF

LIVING WALL

CARBONATION

C m = Cm,CH + Cm,CSH

Cm,CH = αCH - βCH

Cm,CSH = αCSH + βCSH

HEMPCRETE (INSULATION)

CROSS-LAMINATED TIMBER

Primarily, post-and-beam

Secondarily, trusses for larger spans

Tertiarily, 5-ply oor slabs

Quarternarily, wall studs

6-15 inches, shrubs, bushes, small trees

2-7 inches, limited plant variety Hemp Shiv - 1 Water - 2.25

COMPOSITION

Lime - 1.25

HEMPCRETE

With 2520 sqft of wall per each dual-unit module, the module sequesters approximately the average carbon dioxide emitted annually by a passenger car in the United States.

WOOD FRAME

AIR PURIFIER

30’-0”

37’- 3 3/4”

30’-0”

37’- 3 3/4”

10’-0”

3D-printed ceramic, coated in TiO. A compound that, when in contact with sunlight, is able to break down the harmful chemicals in our city air. Assembled with easily sourced materials and simple geometries, this purifier becomes a modular and adaptable platform to implement across modern buildings nested within any urban fabric.

The assemblage is lightweight, recyclable, repairable and disassmbliable. Key attributes of sustainable construction practices and principles for our future buildings. This purification system is fully passive, using stack effect to cicrcultate air through.

Lined with a translucent or transparent material, light is welcomed into the system as its starting actor. The height between levels and the form of the overall tower is manipulated to the structure of the building that it adapts to. Creating a system whose formal qualities are syncopated by the rhythmic structure of its context.

A NARRATIVE:

Change, though daunting, creates a path that alters the current flow. We live in spaces, that have been established for our greatest convenience. A space of living is not one where people live, but a space where their lives happen. The difference is that we live in spaces we design, rather than design spaces to be lived in. We design boxes that rid us of the environment within which they are situated, to create an environment that we prefer to live in. The air around us must be filtered, dehumidified, warmed up or cooled down, in order to exist perfectly in our boxes for living. A house is no more than a box if a designer does not understand and consider the position of air.

The air can make or break the space. It is where life meets life. It’s the carrier of disease, light, sound, emotion, scents, auditory and visual information. It’s the nonhuman with greater impact than any human. It exists as a series of experiential layers, that intersect with one another to create a tapestry of interactive traits. We experience air as a unit. All that encompasses the air we live in, presents itself in relation to its other attributes. The depth of the person of air cannot go unspoken. Therefore, to design for the human, is to design with the nonhuman.

To propose a perspective in the discussion of living, one must too design for a future of cleaner air. There no longer exists a future where the built environment can exist before the consideration on its effect to air. Buildings directly contribute a lot to the overall global greenhouse gas emissions. With the densification of our cities, buildings also indirectly affect the air quality of the urban environment. More homes for more people means more cars and energy usage, resulting in more combustion and poorer air. Air has suffered at the growth of the urban fabric. A future of living, however, breathes life into our cities. What if the growth of a city did not reap the suffering of air? To consider “living” we ought to consider the life of the nonhuman. From the scale of the molecule to the scale of the city, life needs air. Rather than designing boxes for living we must design the breathing fabric of a living city.

GROWING ENERGY 3

Reuse project seeking to take an abandon agricultural center into a new community service. The tasks encouraged students to work in groups to rethink the spatial, communal and strategic organization of space. My group and I sought to ‘reuse’ the history / purpose of agricultural production to produce energy for the greater site.

Growing energy was born from a desire to honor the history of agricultural production on site and its present context. A creation of energy is a requirement for production. Often a prequisite. Using algae as a source of energy bridges the gap between agricultural production and the need to produce energy.

The footprint and materials of the existing was maintained. While adapting an aging roof to fit the spatial needs of the site. The roof folds down into walls, separated by a glowing opening. Creating a filtering threshold for light and sound, but not people.

A production park hosts the machines required for the generation of electricity, while inviting visitors to experience the sounds, smells, sights of the whole process. Opening the curtain, behind which usually hides the means of production. This park for man and machine reimagines the interconnected reality of human leisure and machine work.

CONCRETE ROOF

CONCRETE ROOF

CONCRETE TRUSS AND BEAM SYSTEM

CONCRETE COLUMNS

WOODEN BEAM ENCLOSURE

WOOD AND CONCRETE TRUSS SYSTEM

SCAFFOLDING SYSTEM

ALGAE TUBES

CONCRETE ENCLOSURE

DRAINAGE SYSTEM

CONCRETE WALLS

BUILDING FOUNDATION

GROWTH

OC M B U ST

Algae - H2O= Biomass Store Water Centrifuge

A research corner with a research pavilion and research pools. Echoing the architecture of the algae chamber, this architecutre personifies the echoing of past processes into future research. It’s lightweight, translucent, openable envelope claims to bring to light the past anticipation of a better future. Arguing that the facilitation of research will transitional the history of production into the production of the future.

ALEXANDER MUSAU

ARCHITECTURE PORTFOLIO

Syracuse University B.ARCH

Turn static files into dynamic content formats.

Create a flipbook
Issuu converts static files into: digital portfolios, online yearbooks, online catalogs, digital photo albums and more. Sign up and create your flipbook.