Amanda Ziemke Portfolio 2025

Page 1


P O R T

I O i n t e r i o r d e s i g n

AMANDA ZIEMKE

CONTACT

amanda.ziemke3@gmail.com | (925) 421-5627 | www.linkedin.com/in/amandaziemke

EDUCATION

Bachelors Degree in Design and Merchandising with a focus in Interior Design | Expected May 2025

EXPERIENCE

Corgan Student Internship |May - August 2024 | Corgan, Dallas Texas

Residential Studio Teacher Assistant | August - December 2024 | Oklahoma State University

Designathon | October 2022 | Oklahoma State University

Study Abroad London & Paris | March 2023 | Oklahoma State University

SKILLS

AutoCAD | SketchUp | Enscape | Revit | Hand drafting | Rendering | InDesign | Adobe Creative Cloud

ORGANIZATIONS

Oklahoma State Dance Company | IIDA Publicist & Event Coordinator | ASID Event Coordinator| IFMA Event Coordinator | USGBC Student Member | NEWH Student Member

LEADERSHIP

Oklahoma State Dance Company President 2022 - 2025

CHIPOTLE

Studio 3 | Fall 2023| Individual Project | 3 Weeks

Software

AutoCad | SketchUp | Enscape | Procreate | Lightroom

Project Description

Working individually, create a Chipotle Mexican Grill restaurant. Create construction documents and 3D renderings of the dining area.

Deliverables

Rendered perspectives | Furniture Plan | Finish Plan | Reflected Ceiling

Plan | Interior Elevation | Interior Section | Floor Plan

Skills

Creative Thinking | Sketching | 3D Rendering | Space Planning | SketchUP | AutoCAD | Construction Documents

CONCEPT

Drawing inspiration from a harmonious blend of various earth - toned wood stains, dark blues, and leather accents, to create a warm, inviting atmosphere that combines the comfort of rustic elements with the sophistication of modern design; providing customers with a unique and memorable dining experience.

SCHEMATICS

Rendered Furniture Plan

1,450 Square Feet

PRIMARY ADJACENCY

SECONDARY ADJACENCY

UNDESIRED ADJACENCY

PRIMARY ADJACENCY

SECONDARY ADJACENCY

WINDOW

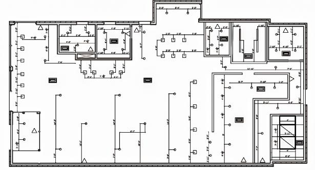
AUTO CAD

LIGHT FIXTURE LEGEND GENERAL LEGEND

RECESSED FIXTURE

PENDANT FIXTURE

SMOKE DETECTOR

AC GRILL

2X4 RECESSED DROP CEILING

DROP CEILING FIXTURE

LED FIXTURE

Interior Elevation

Interior Section Cut

Floor Plan

2,340 Total Square Feet

P . A . C . E .

Studio 5 | Fall 2024 | Group Project | 15 week timeline

Software

Revit

Project Description

Working in a team of 4 to adapt and reuse the Lytton building in Stillwater, Oklahoma, to a PACE (Programs of All-Inclusive Care for the Elderly) center for the citizens of Stillwater. The facility must provide medical services, rehabilitation, dining, and group activities.

Deliverables

Activity Room Perspectives, furniture plans, Reflected Ceiling Plans, mood

Skills

Space Planning | Design Development | Schematic Design | Procreate | Budgeting | Collaboration

CONCEPT

The PACE center offers a home away from home that feels welcoming and inclusive. Colors and textures invite participants into a familiar atmosphere from the entryway to the third floor. The center has the facilities to meet a variety of needs spanning from medical to social. Every space is designed with participants’ comfort and well-being in mind to create a positive environment they want to return to. Clear wayfinding and ample lighting establish a sense of familiarity within the space. Combining all these elements, the PACE center promotes individualism amongst all participants while providing a sense of community.

PROGRAMMING MAIN USERS

- Adults over the age of 55

- Individuals certified by the state as needing day-and-night care

- These participants range in levels of ability and age.

Staff workers

- Medical staff, administrative staff, activity leader, etc

- These are people who are in the space daily alongside the participants

EVIDENCE BASED DESIGN

WAYFINDING | COLOR THEORY | BIOPHILIA | LIGHTING & ACOUSTICS

Evidence-based design was essential to this project. Green-outlined door frames contrast with lighter walls, paired with darker doors for easy identification. Strategic lighting guides participants and accommodates all ages. The color palette adds subtle accents without overwhelming the space. Acoustical elements enhance sound clarity, balance, and communication.

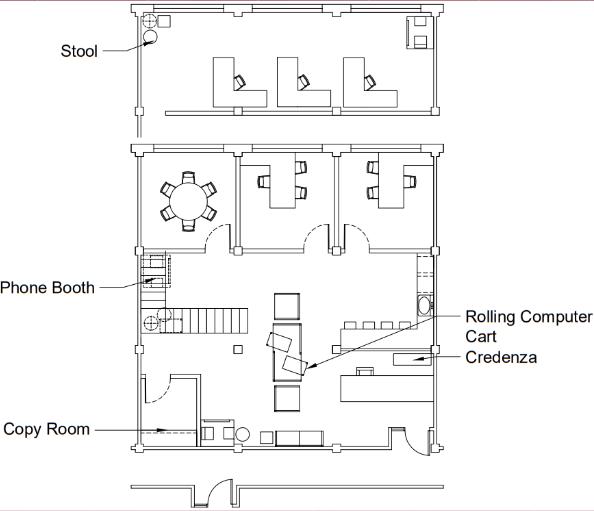
MULTI

PURPOSE

QUIET ROOM

STAIRS HOUSE KEEPING

DATA/ PHONE

RESTROOM

RESTROOM

The furniture on the 3rd floor was thoughtfully selected with aging adults in mind, prioritizing functionality and ease of use. In activity spaces, mobility was key—ensuring that furniture could be easily wheeled away and stored when needed. The quiet room offers a tranquil retreat where both staff and participants can unwind away from the hustle and bustle. For visiting family and friends, the multi-purpose room provides a private, comfortable space to spend time together.

To enhance wayfinding, a contrasting white band runs along the perimeter of the darker wood flooring, guiding participants throughout the space.

RENDERINGS

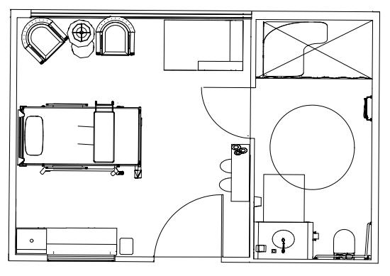
QUIET ROOM BALCONY

PATIENT ROOM

Studio 2 | Spring 2023 | Individual Project | 3 week timeline

Softwares

AutoCad | SketchUp | Enscape

Project Description

Working individually, students were tasked to develop and render a floorplan, elevations, and perspective images. The project brief included elements such as incorporating smart features, a medical specialty to focus our proposed hospital on, and evidence - based design.

Deliverables

Floorplan | Rendered elevations and perspectives | Presentation boards

Skills

Design Generation | Schematic Design | Space Planning | SketchUp Design |

Evidence - based Design

CONCEPT

The purpose of this design is to pull in colors from the sunset over the San Francisco Bay while providing a warm ambiance making the room feel safe and comforting. The design will make children feel as if they are in a fun space, rather than an overwhelming space through the playful color palette. The design uses elements of nature to help aid the healing journey.

EVIDENCE - BASED DESIGN

In children’s hospital rooms, evidence-based design featuring plants, therapy dogs, and natural light enhance the healing environment. Studies indicate that greenery reduces stress, therapy dogs alleviate distress, and natural light promotes a positive atmosphere: contributing to a holistic approach for the well-being of pediatric patients.

Total Square feet | 296

The moveable furniture allows for family members, as well as visitors, to stay comfortable while visiting their loved ones

CONNECT

Studio 2 | Spring 2023 | Group Project | 5 week timeline

Software

AutoCad | Pro Create

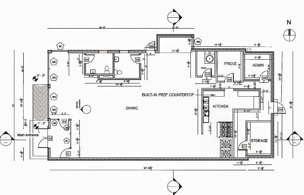
Project Description

Worked as part of a four-person team to design a versatile co-working office space that seamlessly balances functionality for both group meetings and individual work. Our design prioritizes a “work-from-home” atmosphere while maintaining a professional environment. Additionally, we incorporated LEED and WELL building standards to promote sustainability, well-being, and productivity.

Deliverables

3D Model

Skills

Design Generation | Programming | AutoCad | 3D Modeling

PROGRAMMING

CONCEPT & CLIENT

CONCEPT

This inviting and dynamic workspace is designed to foster both individual focus and seamless collaboration. The warm atmosphere, enhanced by soft textiles, ambient lighting, and adaptable furniture, inspires users to step beyond their home office and engage in a productive environment. Whether for independent tasks or group meetings, the space ensures comfort, creativity, and functionality for all who enter.

CLIENT

Our co-working space is designed for professionals in the Advertising and Strategic Marketing industries, offering a dynamic environment that fosters creativity, collaboration, and productivity. Located in Elk City, Oklahoma, this space introduces a fresh, youthful energy while maintaining a smart and sophisticated atmosphere, elevating the city’s professional landscape.

LEED & WELL BUILDING

Features highlighted to showcase LEED and WELL Building Standards

Operable Windows

No use of paints containing lead

Monitor carbon dioxide concentrations within each space

Cleanable environment

ADA-accessible design standards

Sound reducing surfaces

THANK

YOU

Turn static files into dynamic content formats.

Create a flipbook
Issuu converts static files into: digital portfolios, online yearbooks, online catalogs, digital photo albums and more. Sign up and create your flipbook.