CHENG
ARCHITECT Portfolio 2024
ALLISON CHENG
17 FrankAsh Street, Markham, Ontario, L6B 1M6 | 416 616 9867 | allisoncheng.archdesign@gmail.com ArchitecturalExperienceTechnicalSkills
Nov 2021 - Present Digital
Feb 2020 - Sep 2021
Apr 2017 - Sep 2019
Jul 2016 - Sep 2016
Sep 2012 - Apr 2016
May 2015 - Aug 2015
May 2014 - Jul 2014
May 2013 - Aug 2013
Oct 2011
Oct 2010 - Mar 2011
Caricari Lee Architects, Toronto Intern Architect SRN Architects Inc., Vaughan Architect
Kirkor Architects and Planners, Toronto Intern Architect
Studio JCI, Toronto Intern Architect
Daniel’s Faculty of Architecture, U of T (Head) Teaching Assistant
Leckie Studio, Vancouver Architectural Intern
Ensamble Studio, Madrid, Spain Architectural Intern
LukStudio, Shanghai, China Architectural Intern
Philip Beesley Architect, Toronto Model Builder
Rodolphe el-Khoury Architect, Toronto Architectural Research Assistant
FluentLanguages
Revit|Autocad|Rhino|Sketchup|AdobeSuite|Lumion Rendering|3dPrinting|LaserCutting|MicrosoftOffice
Cantonese|Mandarin
Education
Sep2012-Jun2016 Jan2019-Mar2019
Sep2007-Dec2011
UniversityofTorontoSchoolofContinuingStudies OAAAdmissionCourse
UniversityofToronto MasterofArchitecture
UniversityofToronto HonoursBachelorofArts(Distinction)
DoubleMajorinArchitecturalDesign&VisualStudies
July-Aug2010
OxfordUniversity Course:StudiesinBritishArchitecture,UtopianModels&ContemporaryCurrents
Curriculum Vitae
Residential Projects
K eele West Conods , Vaughan
Oak Park Community, Oakville
Atlantis Condos, Markham
Hwy 7 & McVean Master Plan, Brampton
Commercial Projects
Summerhill Development, Toronto
La Coquille Seafood Bistro, Shanghai
Uyu Soft Serve I ce Cream Parlour, Vancouver
Academic Project

Type: Multi-Unit Residential
Location: Vaughan, ON
Architecture Firm: SRN Architects Inc.
Year: 2024


Type: Multi-Unit Residential
Location: Vaughan, ON
Architecture Firm: SRN Architects Inc.
Year: 2024


“TheOakParkCommunitydevelopmentfostersurbanizationwithintheUptownCoreofCentralOakville.”
OakParkCommunity
Type:ResidentialDevelopment
Location:Oakville,ON
Size:2,702,522ft2
ArchitectureFirm:Kirkor
Architects&Planners
Client:Ballantry
YearofRezoningSubmission: 2019
TheOakParkCommunityDevelopment isaresidentialdevelopmentwithinthe bustlingUptownCoreofCentralOakville. Theproposeddevelopmentincludes12 high-risecondosand80stackedtownhouseunitswhichareathigherdensities thanthetypicalsuburbanneighborhood withintheGreaterGoldenHorseshoearea.
Thegroundfloorretailexistswithin a network of existing amenities such as community centres, schools,shopsandrestaurants,which promoteswalkingandahealthylifestyle. The3blocksofresidentialbuildings andstacktownhousesallsurrounda centralpark,andafewparkeesatthe corneroftheblocks.Theseparksexistwithinalargercontextofgreen andopenspaceswithintheneighborhoodwhichhelpconnectandmovethe localresidentsbyfootoronbicycle.
Lastlythesiteishighlyaccessible throughanumberoftransitstops, whichconnectslocaltransittothe nearbyOakvilleGOstationterminal.























































































































































BLOCK4:MASTERPLAN
BuildingC
Scale1:2,500














































































BLOCK4:BUILDINGC
SitePlan
Scale1:750









































































































BLOCK4:BUILDINGC
TypicalPodiumPlan
Scale1:750



























































































BLOCK4:BUILDINGC
TypicalTowerPlan
Scale1:750








“Thefacadeconsistsofaseriesofundulatingboxeswhichgivesanimageofdynamismandmovement.”


AtlantisCondominiums
Type:ResidentialDevelopment
Location:Markham,ON
Size:255,666ft2
ArchitectureFirm:Kirkor
Architects&Planners
Client:ZonixGroup
YearofRezoningSubmission:2019



ThisproposedHigh-riseMixed-Usewhich islocatedneartheintersectionofYongeand Steeles,willformpartofalargernetwork ofhighrisebuildingswhichaddstothe densityofthisurbanarea.Inaddition,with majorpublicinvestmentsininfrastructure andpublictransit,thisbuildingisanexampleofintensificationandinterestintheredevelopmentoflandsfrontingSteelesAve.
Thebuildingconsistof300residential unitsand7000sfofgroundfloorretail and2500sfofgroundflooramenityspace. Thefacadeconsistsofaseriesofundulatingboxeswhichgivesanimageof dynamismandmovement.Throughout thedesignprocess,thenumberofboxeswereminimizedforvalueengineeringandtoprovideclarityforthedesign.
East-WestSection
Scale1:400
North-SouthSection
Scale1:400
SouthElevationFacingSteeles Rendering
“TheCentralParkwillprovidealivelyanddynamicopenandgreenspaceforlocalresidents.”












Type:Mixed-UseDevelopment
Location:Brampton,ON
ArchitectureFirm:Kirkor
Architects&Planners
Client:Mand
YearofSPASubmission:2019
Theproposeddevelopmentislocated onatrapezoidshapedlotinaprimelocationinBrampton.Themixed-usedevelopmentconsistsof8high-risebuildingswhichincluderesidential,hotel, officeunitsand3one-storyrestaurants.
Tothenorthofthelotareexistinglowriseresidentialunits,totheeastof thelotaremultipleretailplazasand tothesouthofthesiteisahugepark.
Thesiteishighlyaccessiblewithtransit stopslocatedatallfourcornersofthesite, whichshulelocalresidentstotheVaughan Metropolitan Centre subway station.
Inthecenterofthedevelopment,thereisa triangularcentralpark,whichwillprovide openandgreenspaceforthelocalresidents. Theparksarealsoconnectedtothe3 restaurantswhichwilladdtothelivelyand dynamicatmosphereofthefuturepark.

PerspectivefromSouthEast Rendering
“TheSummerhillDevelopmentfocusesonaddressingthemainstreetby investigatingdifferentlevelsofporositythroughlouver,meshandmetalpanels."


SummerhillDevelopment
Type:Office+Retail
Location:1133YongeStreet Toronto,ON
ArchitectureFirm:StudioJCI
Client:OldStonehenge
YearCompleted:2019
TheSummerhillDevelopmentinvolvesan additiontoanexistingmixed-usebuildingonYongestreetbesideSummerhill StationinMid-townToronto.Themain additiontothisbuildingisthefacade, wheretheoldstonefacadehasbeenredesignedwithcontemporarymaterialssuch asmetalandglasstogiveitamodernexterior.
Myinvolvementinthisprojectincludes research,visualization,renderingmarkups,presentationlayout,anddeveloping differentfacadeoptionsusingdifferent materialsfortherestaurantontheground leveltoaddressthemainstreet.The differentoptions forthenewfacade includelouver,meshandmetalpanels.






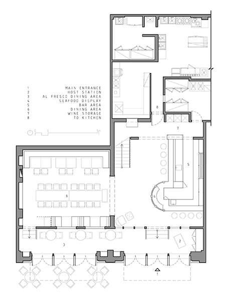
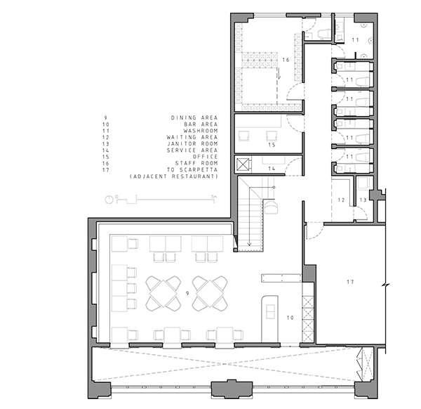
“LaCoquilleisaclassicFrenchbistro,wherethesubtletactileand visualcuessettheoverallmoodoftherestaurant.”



LaCoquilleSeafoodBistro
Type:Restaurant
Location:Shanghai,China
Size:287squaremeters
ArchitectureFirm:Lukstudio
Client:JohnLiu
Design:May-Jul2013
Construction:July-Nov2013
Year:Internship,Summer2013
restaurantwithasecondaryinterior façade.Doubleglazeddoorsallow theexteriorfaçadetoopenup completelytoallowforpatioseating tospilloutfromtheinnerpatioin thesummer.Thisblurredboundary betweeninsideandoutsidesoftens thetransitionfromthebanalstreet tothelushinteriorandalsosets theoverallmoodoftherestaurant. Locatedonacommercialstripon MengzhiLuinShanghai’sHuangpu district,LaCoquilleaimstocreate auniquediningexperiencetothe surroundingmiddle-classcommunity. Sincethemundanebrickandglazing envelopecouldnotbealtered,theintent wastocreateasmoothtransitioninto theFrenchseafoodbistrobyextending thestreetlevelintotheoriginalsunken



1.(korean)milk;anopaquewhitefluidwhichisrichinfatandprotein.



Type:Retail
Location:Vancouver,BC
NetArea:650squarefeet
Design:Apr-Jul2015
Construction:May-Aug2015
ArchitectureFirm:LeckieStudio
Client:NamgilLee
Year:Internship,Summer2015
UYUisasoftserveicecreamparlour locatedon433AbbottStreetinthe historicsiteofGastown,atthenortheast endofDowntown,Vancouver.
Thedesignfocusedonappropriating thebrand'sexistingicecreamlogo, tocreateasurfacevolumewhich wrappedaroundthestore.Thepanels
weredesignedparametrically andadjustedbasedonaesthetic andeconomicfactors.Themetal panelslasercuttedandthen powdercoatedwithwhitepaint. Thescopeofworkfortheproject alsoincludestheinstallation oftheservicecounter,food serviceequipmentandlighting.



















































“TheDufferinGroveCommunityCenteriswheretheintersectionofcommunityandsportmeets.”

Type:CommunityCenter
Location:Toronto,Ontario
Professor:BradyPeters
Partner:MohiulMotasim
Year:ComprehensiveStudio,Winter2014
Thestackingofprogramaimstointensifythe programofawell-usedparkthrough establishingaconcentratedhubofactivityfor thecommunitytogather.Theshiftingofform creates a recognizable landmarkthat strengthenstheidentityoftheDufferinGroveneighborhood.Thisprojectis comprisedoftwovolumes;atransparent glassvolumeappearstofloataboveanopaque volumethatissunkenintotheground.
Thelowervolumeisorientedtowardsthe north-southaxiswhichcontainsmainly sportsfacilitiesthatsupporttheoutdoor recreational areas, while the upper volumecontainscommunityprograms orientedalongtheeast-westaxistoprovide expansiveviewstowardsthepark.Avoid throughthetwovolumeswherethestructural elementsalignfunctionsasanatrium, lobby,andcentralcirculationspace.
Theproject’slocationatthecornerof DufferinStreetandDufferinParkAve. intendstoactasagatewayintothepark andallowstheparktoremainas freeas possible.Thecantilevered configurationreinforcestheobjectivesofthe designthroughthefollowingthreeways:
1.Theshiftedformestablishesaxes withintheparkwhichformsasymbolic connectionbetweenthecityandthepark.
2.Theuppervolumecreatesasheltered areafortheexteriorprogramspacewhich includestheoutdoorfarmer’smarket, recreationalspace,outdoorskatingrinkand pleasureskatingrinkontheeastside.Theotherendofthecantileverprovidesashielded gatheringspacewhichdirectsandwelcomes visitorsintothemainentranceofthebuilding.
3.Thestackedvolumesmaximizethe park’susagethroughmultiplyinglevelsof occupationforoutdoorprogramatgrade andfortheaccessiblegreenroofabovegrade. DufferinGroveCommunityCentre






ConceptualDiagrams
SitePlan
Scale1:1,600


02SecondFloorPlan
Scale1:700
02.5MezzaninePlan
Scale1:700


CentralAtrium&Lobby












































































































ExplodedAxonometric
Scale1:700





