

Content
01-04 Industrial Silos // Longueuil Quebec, Sotecma Inc 2023
05-10 Volvo Campus // Ridgetown NC USA, Albert Kahn Associates 2021
11-14 Dental Office // Windsor ON, Independent Work 2025
![]()


Content
01-04 Industrial Silos // Longueuil Quebec, Sotecma Inc 2023
05-10 Volvo Campus // Ridgetown NC USA, Albert Kahn Associates 2021
11-14 Dental Office // Windsor ON, Independent Work 2025
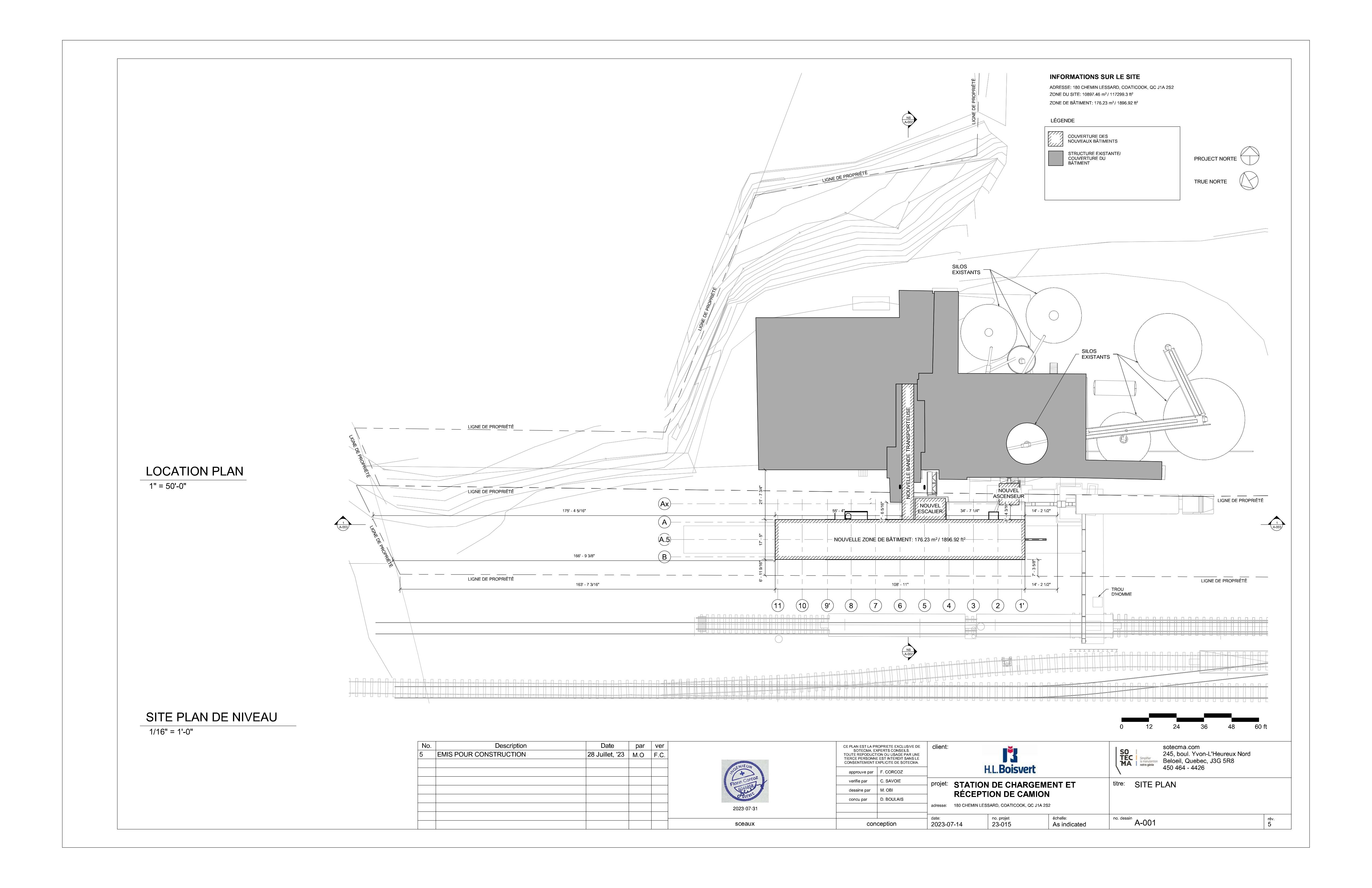
Sotecma Engineering
Status: Completed 2024
Location: Beloeil, Québec
Tools// Revit/Twinmotion/Photoshop
The following project is an industrial Silo used to mix and distribute grains.
My role in this project included 3D modeling and BIM coordination within different trades. I also produced architectural details, rendering, and presentation material.






























Albert Kahn Associates
Status: Completed 2021
Location: Ridgetown NC, USA
Tools// Revit/Sketchup/Photoshop/Hand Sketch
The following project is a Volvo Master plan and Office design in Ridgetown NC USA. My involvement in the project included designing and developing the facade of the office building, as well as designing the overall master plan of the Volvo Campus.
























































































































































Independent Work
Status: Under Construction- August 2025
Location: Windsor ON Tools// Revit/BlueBeam/Photoshop/Twinmotion
The following project is a 2500 SF dental office. My role in the project as a design consultant included developing design options for fixtures, furniture, and equipment. As well as provide permit consulting and construction administration consulting.





