Alisa Lau | 2023 Architecture Portfolio

Page 1

ALISA LAU

University of Waterloo School of Architecture

Selected Works 2022

Hello there!

My name is Alisa, and I am a second-year student at the University of Waterloo, School of Architecture.

This selection aims to bring you along on my journey of growth and development through this collection of my works, showcasing my architecture and evolving artistic style.

Before I am an architecture student, I am also an artist and I hope to create more pieces of architecture that I can truly be proud to call art.

I hope you enjoy this portfolio as much as I enjoyed putting it together, Thank you!

Email: alisalau03@gmail.com

Phone: 416-660-6232

Lowering PersPective Passageway treehouse interLaced terracing additionaL w tabLe of contents 6 16 24 30 36 43

CURRICULUM VITAE

PRofessional exPeRienCe

aRChiteCtuRal assistant | fRyett tuRneR aRChiteCts inC.

Jan 2023 - Apr 2023 | Elora, ON

• Created high quality renderings for project approval and promotional purposes

• Understood and complete a variety of design and administrative tasks

• Quickly adapted to changing priorities while workign on multiple projects

• Positively collaborated with senior co-workers by clearly communicating

• Consistently seeked out new tasks and responsibilites for opportunities to further educational experience

RestauRant WoRkeR | the GReat Wok of China

Apr 2018 - Current | Mississauga, ON

• Efficiently manages workflow in addition to covering multiple positions

• Solves problems under high stress environments when concerns arise to achieve customer satisfaction

skills

DiGital

• Revit

• Rhinoceros

• Grasshopper

• Enscape

• AutoCAD

• Sketchup

• Adobe Illustrator

• Adobe Photoshop

• Adobe Indesign

• Microsoft Word

• Microsoft Excel

• Exhibits leadership through supervising and training junior staff members, improving productivity as a team

• Manages the company website and online profiles as well as using the Adobe Suite to redesign and update menus

• Maintains positive and professional staff relationships through respectful and thoughtful communication in both English and Cantonese

Piano teaCheR | fReelanCe

Jul 2018 - Aug 2020 | Mississauga, ON

• Identifies students’ errors through close observation and provides them with feedback to improve their skills

• Effectively develops individualized lesson plans to target and improve upon their weaknesses

• Displays efficient time management skills through scheduling lessons based on the availability of all parties

• Successfully encourages parents to get involved in their child’s education through regular meetings about their progress

analoG

• Hand Drafting

• Model Making

• Sculpting

• Sketching

• Acrylic Painting

• Watercolour Painting

lanGuaGes

• English

• Cantonese

univeRsity of WateRloo

Candidate for Bachelor of Architectural Studies

Sept 2021 - Current | Expected Aug 2026

aChievements

• President’s Scholarship of Distinction 2021

• Excellent Academic Standing

eDuCation

LOWERING PERSPECTIVE

aLternate LeveLs of

buiLding tyPe: Pedestrian

cLassification: 2022 cisc

coLLaborators: JacqueLyne

adobe PhotoshoP

adobe iLLustrator

7

Overlooking the Don River in Toronto Ontario, this structural steel bridge invites one to lower their persepctive and experience the river from a different level. The bridge offers a straight path through the middle, while allowing one to venture beneath the main level and enjoy being closer to the water.

8 //RENDER

The upper half of the bridge is encased with an array of overlapping steel arches, allowing moments and views of the river, while the lower half allows pedestrians to view the river from either side of the bridge and even directly below their feet.

9 LOWERING PERSPECTIVE//
10 //PLAN + SECTION + ELEVATION
11 LOWERING PERSPECTIVE//
12 //EXPLODED AXO + CONNECTION DETAILS
13 LOWERING PERSPECTIVE//
14 //RENDER
15 LOWERING PERSPECTIVE//

PASSAGEWAY

a shortcut through

buiLding tyPe: Library +

cLassification: 1b finaL P

suPervisor: david correa

adobe PhotoshoP

adobe iLLustrator

17

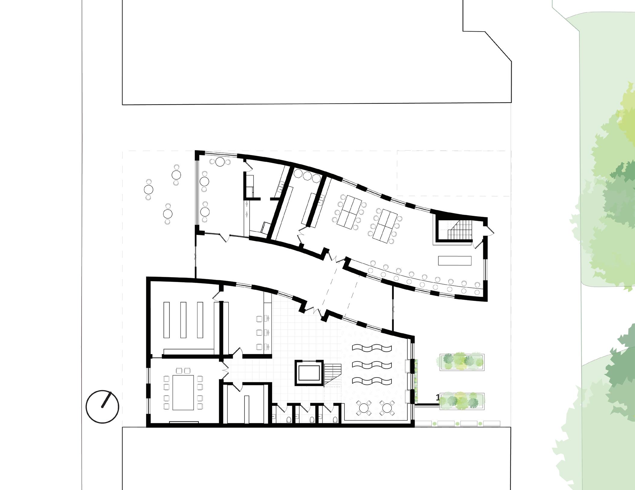
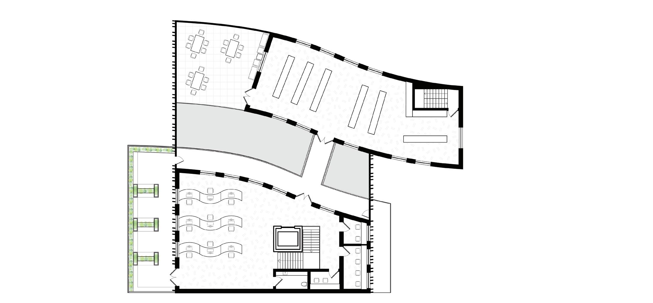
a shortcut through the city

Connecting a busy street to a relaxing walk through nature, a new library overlooks the Don River in the heart of the city. This new library is built upon an old parking lot that many people used as a way to cut through the block of buildings.

The curving structure of the library, mimics the curving pattern of a path, inviting passerbys into the building and allowing them to experience a sample of what the library has to offer as they cut through the library, making their way to the park behind it.

18
//SECTIONAL PERSPECTIVE + PARTI + PROGRAM

cafe

chiLdren’s area

ceramics studio

bookstacks

reading/viewing

staff/admin

19 PASSAGEWAY//
20 //SECTIONS + PLANS
21 PASSAGEWAY//
22 //EXTERIOR RENDER
23 PASSAGEWAY//

TREEHOUSE

an off-grid oasis for

buiLding tyPe: temPorary

cLassification: environmenta

coLLaborators: tina Lin

adobe PhotoshoP

adobe iLLustrator

25

an off-grid oasis for two

Sustainability has always been a problem in both the world and in architecture, the Treehouse provides an environmentally friendly look to the neighbourhood, using reclaimed wood for a large part of the structure while also being self-sustaining in terms of energy and water.

The tree like structure on the front facade of the house mimics nature while providing facinating shadows and views. The building also uses deciduous trees for natural shading in the summer and a solar chimney for heating in the winter.

26
//DIAGRAMS + RENDER + DETAIL SECTION Daylight + Airflow
27 TREEHOUSE//
28 //PLANS + SECTION + DETAIL SECTION
29 TREEHOUSE//

INTERLACED

a viewPoint in the forest

buiLding tyPe: Pedestrian

cLassification: 1b first P

suPervisor: isabeL ochoa

adobe PhotoshoP

adobe iLLustrator

31

a viewPoint in the forest

Replacing an old worn out pedestrian bridge, Interlaced, bridges the two sides of the Bruce Trail in Hamilton, Ontario, and provides partial cover from the surrounding nature while offering a perfect view of the Sherman Falls.

The shape of the bridge takes inspiration from coiled ribbons interlaced with one another. The swirling pattern of the ribbons is designed with human proportions in mind, while the widened center allows for someone to appreciate the view without obstucting the path.

32
//PROCESS WORK + RENDERS
33 INTERLACED//

TERRACING

terraced connection

buiLding tyPe: suPPortive

cLassification: 2a finaL P

suPervisor: vaL rynnimeri

adobe PhotoshoP

adobe iLLustrator

35

terraced connection to the city

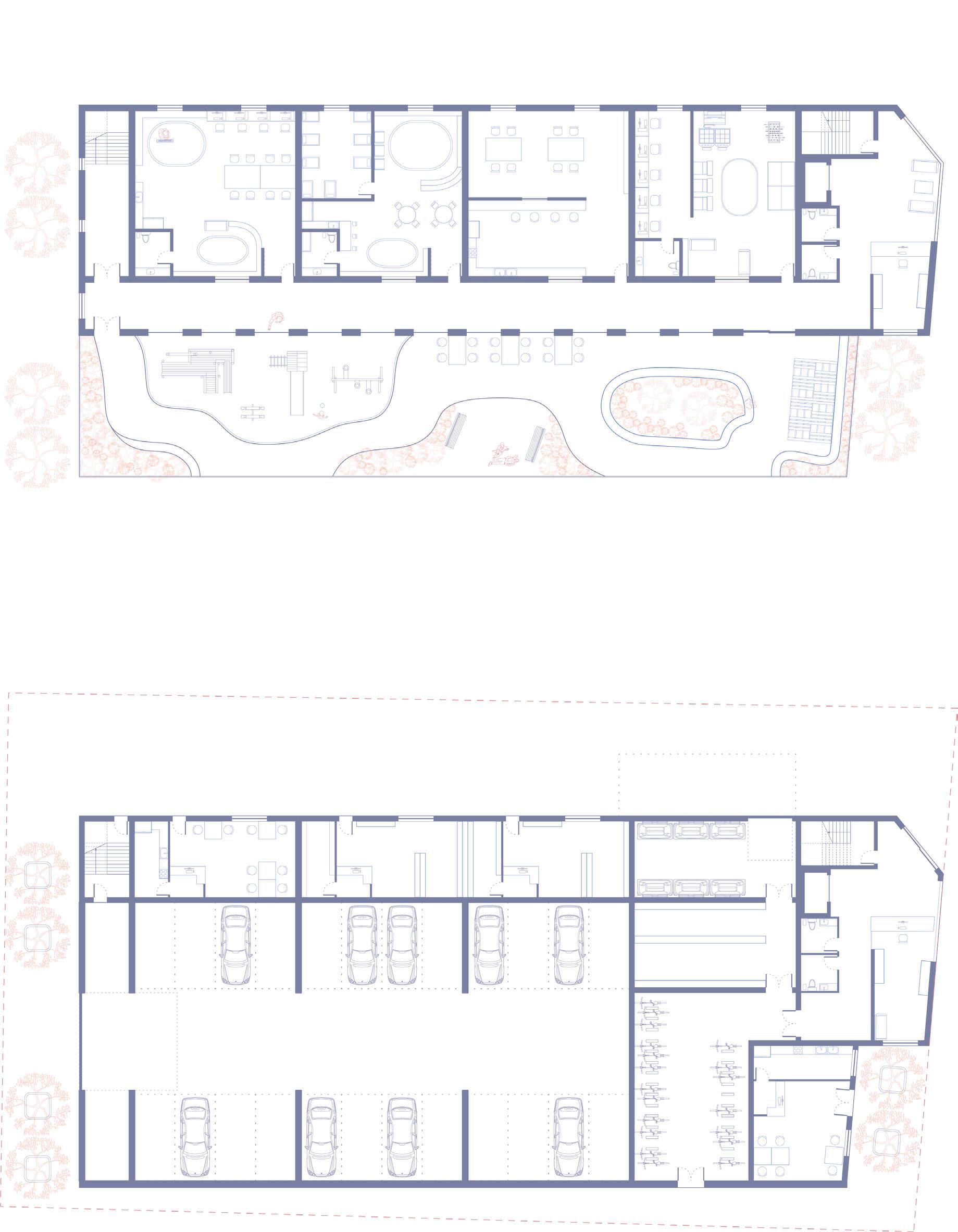
Terracing creates deeply affordable housing for women, children, and youth by connecting its residents through the shared exterior hallways, overlooking the south facing courtyard that provides a sense of privacy and protectiveness in an open exterior space.

36
//RENDER

The building bridges the gap between old and new by providing semipublic parking in place of the previous parking and surrounding businesses that allow for the existing traffic and flow of pedestrians to continue utilizing the space. The south facade uses lightweight composite panels while the north facing side uses brick to mimic the older style of surrounding buildings.

37 TERRACING//
38 //FLOOR PLANS
39 TERRACING//
40 //EXPLODED AXO + SECTION
41 TERRACING//

additionaL works

Precedent anaLysis modeLs /scuLPtures renders

Precedent anaLysis of urbn dry dock no. 1

LandscaPe tyPe: Post industriaL remediation

cLassification: 2b Precedent anaLysis

suPervisor: tracey reid winton

44 //ISOMETRIC DRAWINGS
adobe PhotoshoP adobe iLLustrator rhinoceros 3d
45 CASE STUDY//

extendabLe wing scuLture

cLassification: PersonaL ProJect

46 //SCULTURES

museum board modeL

cLassification: 1a first studio ProJect

suPervisor: rick andrighetti

47 MODELS//

ProfessionaL renders done for fryett turner architects inc.

48 //RENDERS
49 RENDERS//
ALISA LAU : : alisalau03@gmail.com (416) 660-6232 ontact me

Turn static files into dynamic content formats.

Create a flipbook
Issuu converts static files into: digital portfolios, online yearbooks, online catalogs, digital photo albums and more. Sign up and create your flipbook.
Alisa Lau | 2023 Architecture Portfolio by alisa_lau - Issuu