Arquitectura y diseño interior




Apto Rincón de Granada
Bogotá | 2022
Descripción
El apartamento
Vivienda familiar ubicada en Bogotá, Colombia. Área: 112m²
Diseño para remodelación de estudio, habitación principal, vestieres, baños y terrazas. Propuesta de mobiliario.
El proyecto
Los clientes de este proyecto viven en otro país, pero anhelan volver a Colombia. Tienen requerimientos específicos y comodidades con las que han vivido a lo largo de su estadía en este otro país. Logramos cumplirlas todas a través de cada detalle, con los tonos utilizados y el mobiliario propuesto para que cuando habiten el espacio logren sentirse inspirados y creen recuerdos acogedores
Responsabilidades
Acompañamiento virtual al cliente en todo el proceso.
Diseño en 2D (Autocad)
Diseño en 3D (Sketchup + Vray)
Selección de acabados / proveedores
Diseño de mobiliario especial (carpinteria + ornamentacion)

















Casa IBG
Ibaguè | 2020
Descripción
La casa
Vivienda familiar ubicada en Ibagué, Colombia. Área: 295m²
Se diseñó cocina, baños, habitaciones, sala, comedor y cubierta - remodelación completa (no incluye mobiliario).
El proyecto
Entendiendo que esta casa va a ser el lugar de envejecimiento de su propietaria, se diseño todo en una sola planta para simplificar su vida (las escaleras llevan al jardín). Esta nueva casa se adaptó a las necesidades de una mujer mayor que le permitirá vivir libre e independientemente.
Responsabilidades
Acompañamiento al cliente en todo el proceso
Diseño en 2D (Autocad)
Diseño en 3D (Sketchup + Vray)
Selección de acabados / proveedores
Diseño de mobiliario especial (carpinteria)
Residencia de obra













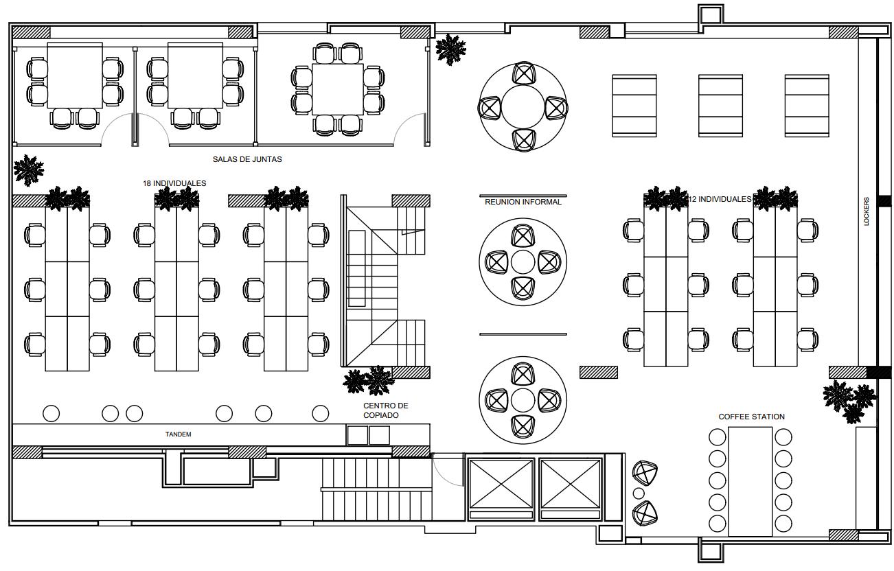
Platzi
Bogotá | 2021
Descripción
El espacio
Oficina tipo coworking con espacios de trabajo, auditorio, cocina abierta + cafeteria y estudios de grabación
Área: 530m²
El proyecto
El requerimiento más importante y el que da la pauta para el diseño es que todo sea un mismo espacio, es decir, sin muros. Así que con algunos elementos (paneles con rieles) se podría dividir el espacio entre auditorio y zona de trabajo (coworking). Las salas de grabación con especificaciones técnicas especiales y una cocina + cafetería amplia, cómoda y separada del resto de espacios.
Responsabilidades
Acompañamiento al cliente en todo el proceso
Diseño en 2D (Autocad)
Diseño en 3D (Sketchup + Vray)
Selección de acabados / proveedores










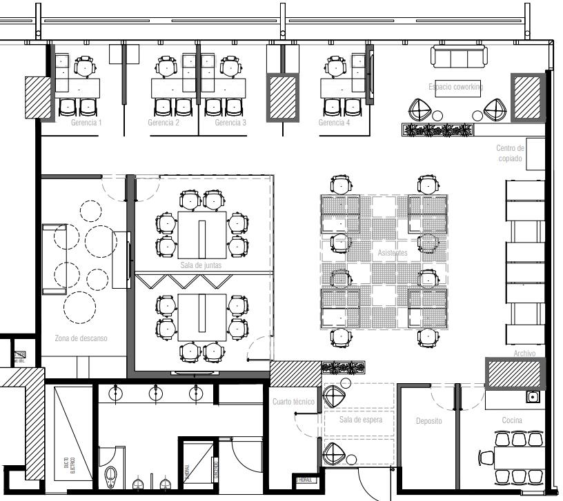
Cobb
Bogotá | 2020
Descripción
La oficina
Oficina principal ubicada en Bogotá, Colombia. Área: 190m²
El diseño incluye oficinas gerenciales, puestos operativos, sala de juntas, espacio para coworking, sala de descanso y cocina.
El proyecto
El espacio ofrece amplias circulaciones y espacios de trabajo demarcados. Sobre la fachada (ventanas) se ubica el espacio coworking y las oficinas gerenciales, hacia adentro de la oficina los puestos de asistentes, las salas de juntas, servicios adicionales y una zona de descanso.
Responsabilidades
Acompañamiento al cliente en todo el proceso
Diseño en 2D (Autocad)
Diseño en 3D (Sketchup + Vray)
Branding (Photoshop + Illustrator)
Selección de acabados / proveedores
Diseño de mobiliario especial
Residencia de obra












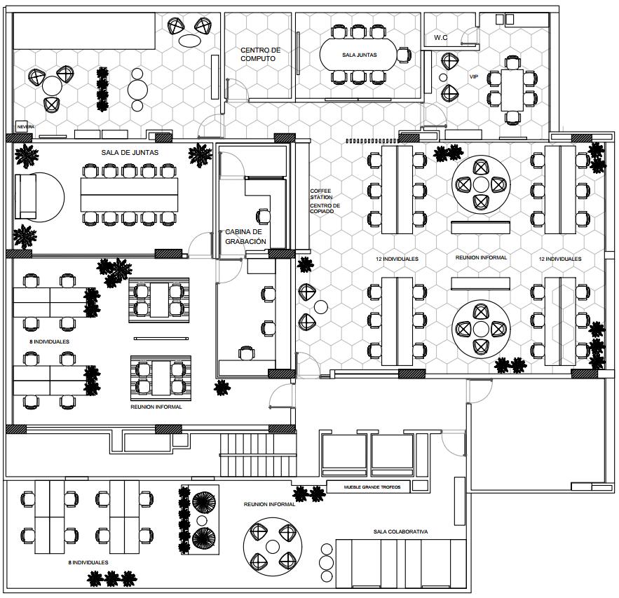
Mullen Lowe
Bogotá | 2020
Descripción
El espacio
Diseño interior oficina principal Mullen Lowe Group.
Área: 1350m² - 5 pisos
El diseño incluye puestos operativos, zonas de coworking, grabacion, cocina, loby y reuniones.
El proyecto
Se diseñan espacios con circulaciones fluidas y bien definidas, logradas mediante cambios en los materiales del piso y mobiliario funcional, adaptable a las necesidades de cada equipo. Al tratarse de un espacio para creativos, se combinan colores vibrantes con tonos neutros, mientras que la iluminación en cada zona está diseñada para estimular la creatividad, productividad y fomentar la interacción entre los usuarios. La incorporación de vegetación aporta frescura y bienestar al ambiente.
Responsabilidades
Acompañamiento al cliente en todo el proceso
Diseño en 2D (Autocad)
Diseño en 3D (Sketchup + Vray)
Selección de acabados / proveedores














Homies
Ibagué | 2022
Descripción
El restaurante
Restaurante en Ibagué, Colombia.
Área: 32m² Interior - 50m² Terraza
Diseño para adecuación con cocina, zona de lavado, barra de atención, baño, mezzanine y zona exterior.
El proyecto
La zona de servicio, que incluye cocina, barra de atención y baño, está ubicada en el interior, mientras que la zona social, al aire libre, ofrece diversos ambientes para sentarse, comer y disfrutar de experiencias únicas. Se diseñaron espacios diferenciados para evitar la monotonía. Los detalles como la iluminación, el terrazo, los arcos, la vegetación, las nubes en el exterior y la paleta de colores contribuyen a darle personalidad al lugar y atraer a nuevos usuarios.
Responsabilidades
Acompañamiento al cliente en todo el proceso. Diseño en 2D (Autocad)
Diseño en 3D (Sketchup + Vray)
Selección de acabados / proveedores
Diseño de mobiliario especial (carpinteria + ornamentacion)
Residencia de obra*










































