



![]()




Diseño de arquitectura e interiores
Por Alexandra Rosales

Soy arquitecta con 5 años de experiencia en diseño, coordinación y gestión de espacios retail, corporativos y residenciales, desde el layout hasta la construcción, asegurando coherencia y calidad en cada fase del proyecto.
Cuento con conocimientos en gestión de proyectos, diseño de interiores y detalles constructivos. Manejo herramientas como AutoCAD, Revit, Ms Project, SketchUp, renderizado y diseño gráfico. Estoy capacitada para la compatibilización de expedientes, la elaboración de presupuestos, la planificación y coordinación de proyectos con equipos multidisciplinarios.
Me enfoco en manejar una visión integral, sin perder la atención al detalle, y en aplicar el trabajo colaborativo en distintos entornos. Considero fundamental aportar soluciones creativas y estratégicas que cubran las necesidades operativas como estéticas de clientes y empresas, teniendo como base una comunicación oportuna.

arosalesarenas@gmail.com
Alexandra Rosales Arenas

Edificio multifamiliar Surco
Edificio mixto Miraflores
Vivienda La Punta
Vivienda Boca León
Diseño de interiores residencial
Taco Bell Miraflores
Haagen Dazs Salaverry
Cafetería Wong 2 de mayo
Oficinas Seidor HCC Perú



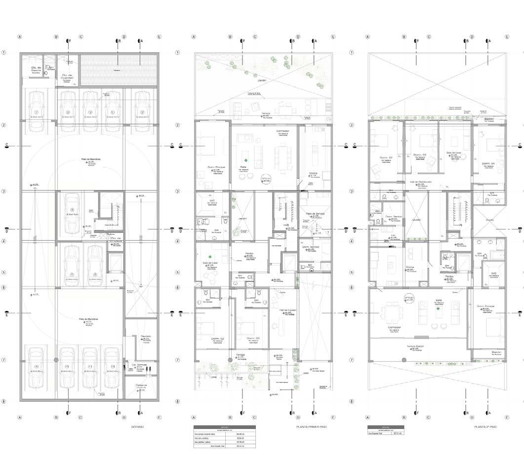
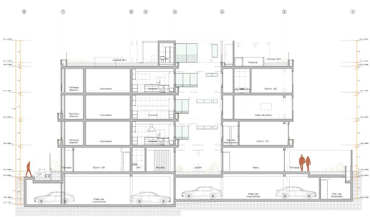
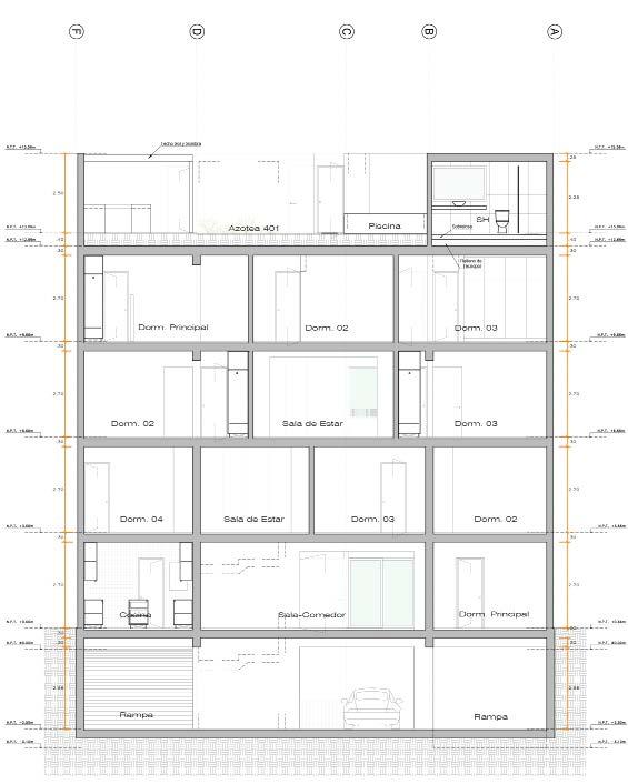
Ubicación: Tipología:
Surco Vivienda multifamiliar
Desarrollo de cabida y anteproyecto para edificio multifamiliar bajo las necesidades y requerimientos de cada familia, así como la normativa y parámetros correspondientes. Se realizó compatibilización de estructuras y propuesta de materiales en fachadas.






Concreto caravista gris claro
Baranda de fierro en acabado negro mate
Ladrillo rococho
Mampara de vidrio templado, marco aluminio
Bloques de concreto
Jardinera corrida prefabricada tipo cemento
Viga de acero en “I” pintado en negro




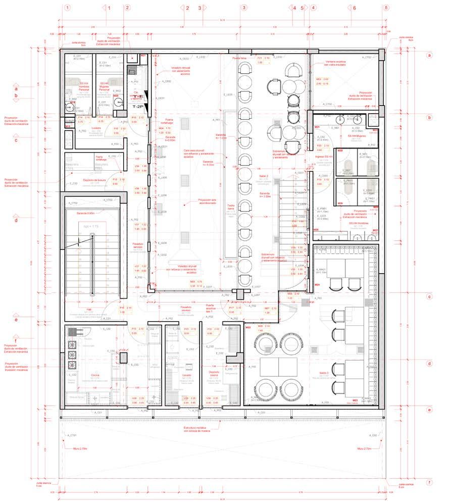
Ubicación: Tipología:
Miraflores
Edificio comercial, oficinas y vivienda

Diseño y desarrollo de espacios en edificio mixto en etapa de proyecto municipal y de obra, priorizando los conceptos y necesidades del cliente, junto al estándar de calidad requerido.

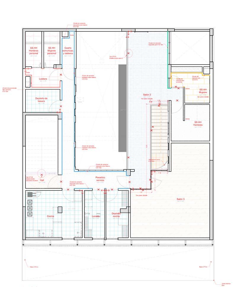
Distribución 2do nivel. Se ubica área comercial y área de servicio.

Pisos y zócalos. Distintos acabados y encuentros en piso.

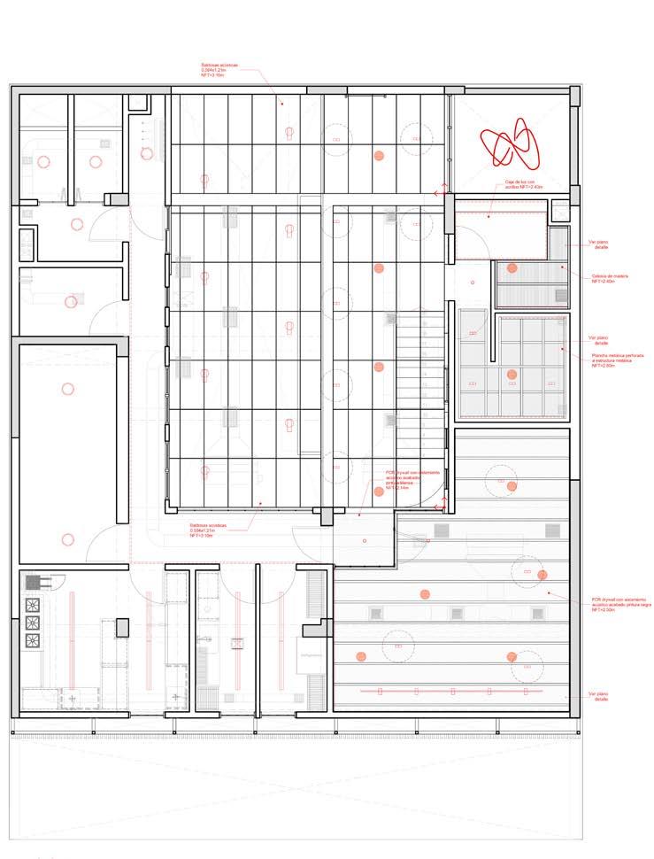
Cielos rasos y equipos. Según compatibilización de ingenierías.


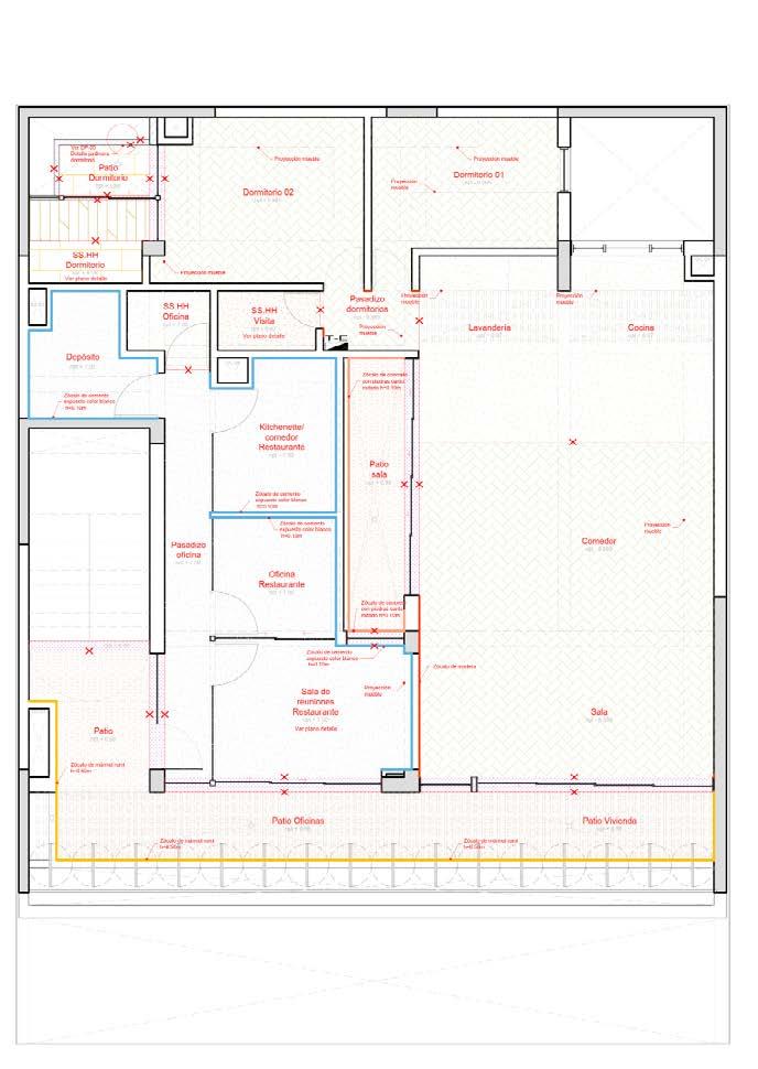
Distribución 3er nivel. Se ubica área de oficinas y vivienda unifamiliar. Pisos y zócalos. Distintos acabados y encuentros en piso.

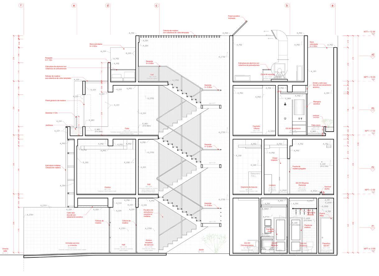
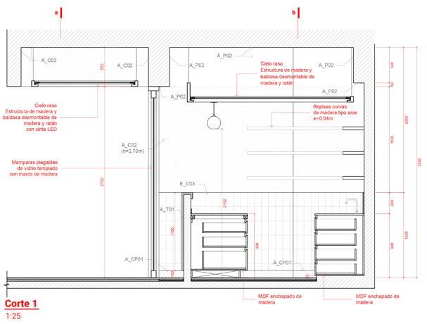
Corte a. Detallado según acabados y especificaciones a considerar en obra.



Detalles de piso y encuentros.






Área de departamento en 3er nivel.








Hombres. Planta y cortes detallados acorde a acabados y materiales a emplear.






Mujeres. Propuesta en planta y cortes detallados acorde a concepto.


Mobiliario clóset departamento. Detalle de clóset a medida y según requerimientos del cliente.


Ubicación: Tipología: La Punta, Callao Residencial

Desarrollo de vivienda en área monumental de La Punta en etapa de proyecto, con distintas áreas sociales y zona de terraza y piscina en planta inferior.

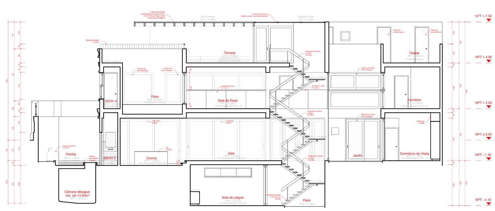
Corte transversal. Vista de área social y zona de dormitorio principal.

Corte longitudinal. Sección de escalera integrada y ambientes alrededor.


descanso piscina. Detallado según acabados y especificaciones a considerar en obra.

descanso piscina. Secciones según acabados y cambios de material.

Ubicación: Tipología: San Antonio, Cañete Residencial

Desarrollo de detalles de constructivos para vivienda de playa en condominio.


Plantas generales. Área de habitaciones en primer piso y social en segundo nivel.


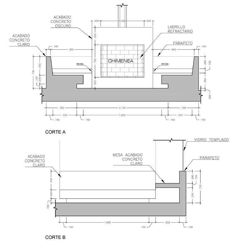
Terraza y chimenea. Mueble de concreto con mesas y chimenea con revestimiento de ladrillo.

Modelado y renderizado de diversos proyectos, con el fin de facilitar la visualización del espacio a implementar y construir, en particular en los acabados planteados como parte del conjunto.


Dormitorio. Detalle de cabecera y mueble lateral junto a velador.

Dormitorio. Diseño de clóset empotrado acorde a especificaciones del cliente.

Dormitorio. Implementación de mobiliario y elementos en departamento La Molina.

SH principal. Diseño para remodelación de baño principal con acabados modernos.





Implementación depa. Diseño de paredes y mobiliario para sala de departamento.


Baño playa. Aplicación de acabados de mármol y terrazo en baño principal.

SH Departamento. Diseño para remodelación de baño pequeño tipo industrial.







Remodelación Casa Casuarinas. Propuesta de acabados para terraza y frontis.


Taco Bell Miraflores
Ubicación: Tipología: Calle Independencia 130, Miraflores Comercio

Desarrollo de remodelación de local existente para implementación de cadena Taco Bell ubicado en Miraflores. Se realizó distribución acorde a requerimientos mínimos y línea de producción, así como vistas con propuesta de acabados.

Planta distribución y obras. Acorde a intervención con muros a demoler y nueva construcción.

Corte J. Ingreso a local desde calle y área de mesas en distintos niveles.

Corte D. Área de preparación, al lado mobiliario en área de mesas.

Counter de atención y área de preparación posterior.

Área de mesas de salón principal.

Ubicación: Tipología: C.C. Real Plaza Salaverry Comercio

Desarrollo de proyecto comercial de cadena Haagen Dazs, en el cual se contempla un área de preparación, un almacén y un área de mesas. Se desarrolló expediente de planos y los detalles para su ejecución.

Plano de distribución. Nueva implementación de local en centro comercial.
Elevación frontal.



Mueble equipos.

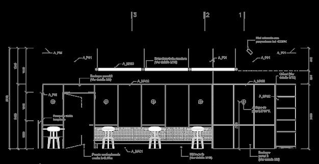
Ubicación: Tipología: Av. 2 de mayo, San Isidro Comercio

Se realizó desarrollo de remodelación para cafetería de cadena. Se elaboraron planos generales y detalles de mobiliario y acabados en general.

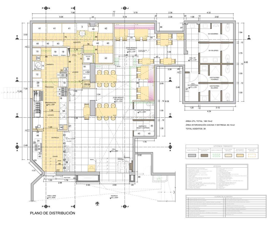
Layout. Desarrollo de distribución y detalles de remodelación de cafetería.

3. Zona de ingreso con exhibición de productos y área de atención para comensales.

A.
de elevación interior de zona para clientes.

Corte B. Área de preparación con equipamiento.

Mesada de atención. Desarrollo de detalle de mueble fijo para caja y vitrinas.





Sala de reuniones.




