Revista Vislum - nº01, 2022

Page 1


A escolha do nome "Vislum" se dá a partir da ideia de que a arquitetura deve que ser vislumbrada. Visto isso, todas as edições da revista são pensados de tal modo.

Nessa edição, o tema a ser abordado será: DIFERENTES USOS E TIPOLOGIAS EM UM MESMO ESPAÇO. No qual foram evidenciadas soluções adotadas para edifícios de uso misto. Sendo esses projeto modernos/contemporâneos da arquiteturabrasileiraoudomundo.

Além das análises projetos em si, há uma breve biografia dos seus respectivos autoreseasdevidasperspectivasdosmesmosconsolidadasapartirdosedifícios.

A seguir estão os editores responsáveis pela revista e toda a ideia que ela proporciona.

AlannaGonçalvesdaSilva 20100943

JoãoPedroGarciaMichelon 20100638

GabrielLuizdeMattos 20101374

JoãoPedroRibasPiardi 20100552

Capa: Edifício Narkomfin. Fonte: CALVERT

MariaIzabelLamariRuette 20100261

05 NARKOMFIN

Edificadoem1932,naRússia,o complexo Narkomfin traz em sua essência uma nova perspectivadehabitaçãosocial, naqualvalorizaáreasintimase deixa as comuns de modo coletivo.

09 CASA RUSTICI 13 ESTHER

Sendo originalmente uma pequena edificação de 2 pavimentos, a Casa Rustici virou um prédio de apartamentosqueatraiaoutros projetos de préstigios, brincando com a forma e a volumetria.

Inaugurado em 1938, iniciou a verticalizaçãonocentrodeSão Paulo, em frente a Praça da República. Trazendo modernidadeapartirdoscinco princípiosdeLeCorbusier.

19 EIFFEL

Construídonadécadade50,foi idealizadoeimplantadoapartir do recuo progressivo exigido. AlémdeservoltadoàPraçada República, em São Paulo e abrigar em seu programa apartamentosduplex.

25 LE MONOLITHE 29 TRANSITLAGER

Visando a unificação europeia, o edificio Le Monolithe busca integrar diferentes propostas arquitetonicas em um só, tais quais definem uma singularidadeaocomplexo.

Revitalizadoem2017acimade umantigoarmazémdadecade de 1950, o Transitlager transformou em um edifício multiuso com comércios, escritórioseresidências

OscarNiemeyer

37 RESIDENCIAL SANTO AMARO V

A transformação de uma comunidadecarenteeprecária em um conjunto habitacional derenome,oresumomaisque ideal que como o Novo Residencial Parque Santo Amaroéfeito.

41 RESIDENCIAL IO MENINO DEUS

UmdosprimeirosprojetosTrue ViewaserimplantadonoBrasil, trazendoumconceitodecomo a edificação se encaixa ao entorno e mudando a perspectivadosmoradores.

EDIFÍCIO EDIFÍCIO NARKOMFIN NARKOMFIN

A Holodomor, que significa morte por fome, foi uma crise e manifestação na União Soviética que gerou muita repercussão, em 1932, devido ao governo exigir demais dos camponeses e agricultores. Esses que na época voltavam grande parte de sua produção para o Estado,demodoobrigatório.Apartirdisso, tem-se uma maior transição dos trabalhadores para a cidade que por sua vez incentivou novos experimentos e métodosdeedificações,comooNarkomfin. (UPM,2015,n.p.).

Edificado em 1932 e localizado em Moscou, capital da Rússia, o prédio de apartamentos é visto como uma forma de transformar a sociedade, tornando-a mais justaeigualitáriaatravésdaarquitetura.De acordo com pesquisa realizada pela Universidade Politécnica de Madrid (UPM) o Narkomfin é um complexo residencial que foi feito de modo detalhado para que posteriormente,fossevistocomoumponto de referência para futuros projetos de habitaçãosocial.

Autor: Moisei Ginzburg

Localização: Moscou, Rússia

Ano: 1932

"O MODO DE HABITAR É FUNÇÃO PRECISA NAS NOVAS RELAÇÕES SOCIAIS; INTERAGEM INTERESSES E PROBLEMAS QUE O ARQUITETO, SOZINHO, NÃO RESOLVE. O DISCURSO É AMPLO: ECONÔMICO, SOCIAL E POLÍTICO."

(ARQUITETURACONSTRUTIVISTA,2005,P.56).

Ainda referente à história do edifício, o Narkomfin foi marcado pelo abandono e negligência devido aos ideais emancipatórios que a obra trazia durante o regime de Stalin, dessa maneira, a construção era vista como “esquerdista” ou “trotskistas”. Entretanto, uma comunidade heterogênea acolheu o edifício, que se tornou um íconedearquiteturadevanguardanoiníciodoséculoXX.

(JOURNALOFTHESOCIETYOFARCHITECTURALHISTORIANS,1998,57(1),p.30–45).

“ASUPERFÍCIEDEHABITAÇÃOÉESTABELECIDAEMUMMÍNIMODE6,3M²POR HABITANTE, ONDE É PRECISO LEVAR EM CONTA O FATO QUE, COMO SUPERFÍCIE HABITÁVEL, AS ESTATÍSTICAS RUSSAS LEVAM EM CONTA, EXCLUSIVAMENTE, OS APOSENTOS PARA DORMIR E ESTAR, E NÃO OS DE SERVIÇO.”

(ARQUITETURACONSTRUTIVISTA,2005,P67.)

Aosolhosconstrutivos,ocomplexoresidencialprocuroucriarummodelopadronizado,o qualbuscavaestratégiasparaeliminaroudiminuiráreassociaiseauxiliarescomocozinha educha,asquaissetornavamcoletivas.

De acordo com o livro Arquitetura Construtivista, o edifício era separado por tipos e células, nomenclaturas que definiam a tipologia do apartamento em específico. Por exemplo, na seção do “tipo F” um único corredor coletivo, no andar intermédio dava acesso a apartamentos que não possuíam chuveiro nem cozinha, os quais eram localizadosemoutroblocodoprédio,numaáreasocial.

Portanto, o complexo habitacional Narkomfin foi um projeto de experimentaçãosocialaosolhossocialistas de viver, dessa maneira o edifício busca trazer áreas sociais em ambiente coletivo de modo que a única privacidade do apartamento seria para descanso e necessidades higiênicas. Assim, o prédio tornou-se um marco da arquitetura e demonstraumanovasoluçãoparaprojetos dehabitaçãosocial.

MOISEI MOISEI GINZBURG GINZBURG

Nascidonodia04dejunhode1892,na cidadedeMinsk-CapitaldaBielorrússia, em uma família formada por arquitetos judeus, com nacionalidade Soviética. Formou-se,em1914,naMilanoAcademy e, em 1917, no Instituto Politécnico de Riga.

Juntou-se ao corpo docente da VKHUTEMAS (Escola Superior de Arte e Técnica) e do Instituto de Engenheiros Civis. Ginzburg foi fundador do Grupo OSA (Organização dos arquitetos contemporâneos), que propôs um novo modo de vida comunista. Em 1924, publicou o livro Estilo e Epoch, tendo algumas semelhanças com as ideias de Le Corbusier. Além disso, também possuíaasuaprópriarevistachamadaAS (Sovremennaya ArkhitekturaArquiteturacontemporânea).

No ano de 1932, o Estado assumiu o controledaprofissãodearquiteto,afavor de uma arquitetura estalinista eclética. Com isso, ele nunca mais projetou em Moscou ou Leningrado, mantendo sua própriaoficinadearquiteturanaCrimeia e Ásia Central. Como legado, deixou sua obra mais famosa, o Ed. Narkomfin. (ARTLARK.2022.n.p.)

EDIFÍCIO EDIFÍCIO

CASA RUSTICI CASA RUSTICI

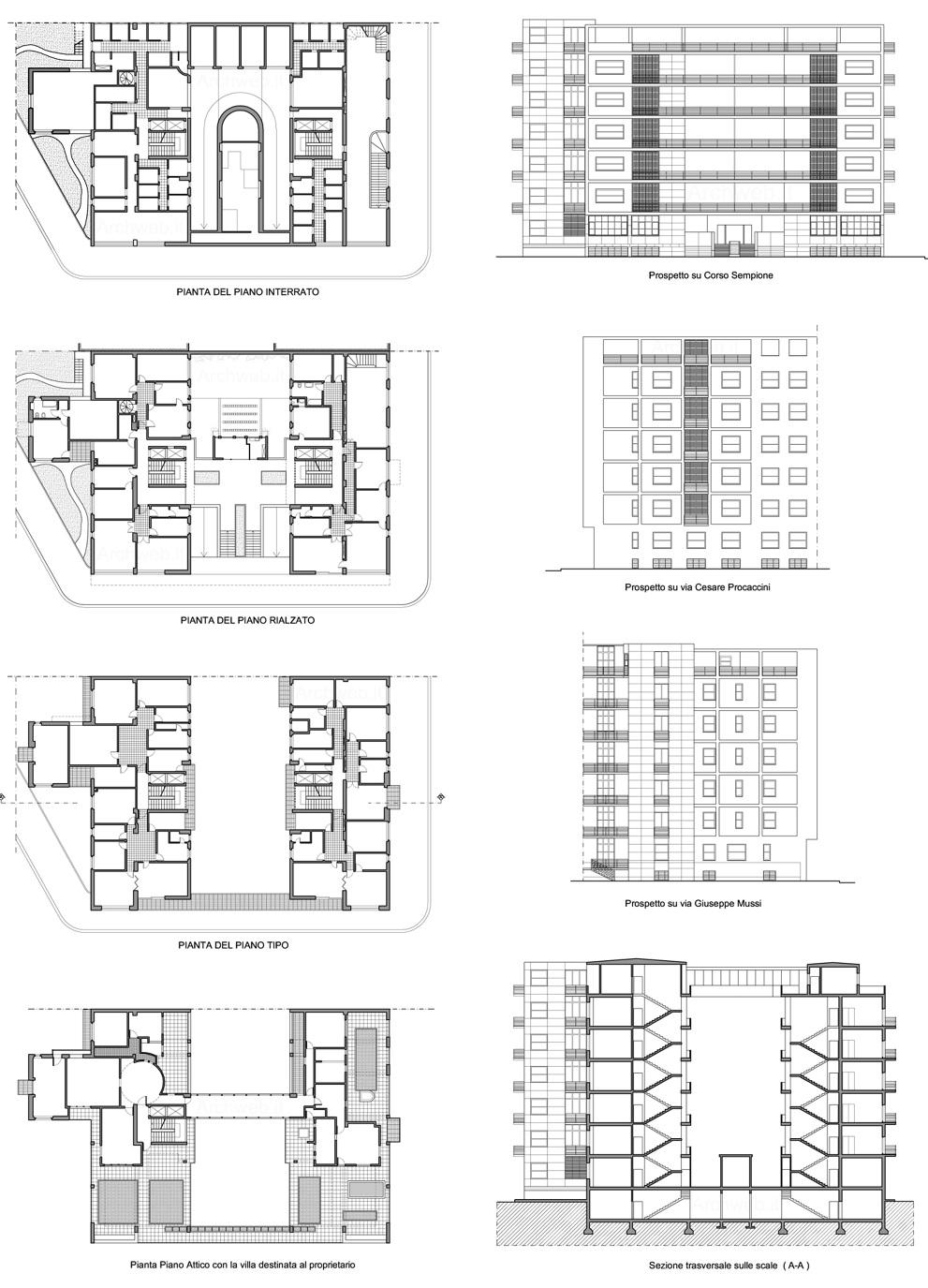
O desenvolvimento imobiliário gerado devido à remoção de duas linhas ferroviárias, que envolviam o bairro Corso Sempione, tornou a região alvo para implantar construções residenciais de prestígio. O que antes seria um pequena edificação de dois pavimentos se tornou umprédiodeapartamentos,oEdifícioCasa Rustici.

Aobraemsiécompostapordoisblocos, que fazem uma ligação entre si por varandas suspensas e com um pátio internoentreeles.

Nos requisitos construtivos, a edificação conseguiu, por meio de soluções relativamentesimples,realizarseuobjetivo de unir o lote com o volume, utilizando elementos dos próprios blocos para compor a fachada. Sendo um deles as varandassuspensas,quealémdecriarum jogo de cheios e vazios, durante o dia faz umjogodeluzesombranaedificação.

Autores: Giuseppe Terragni e Ignaty Milinis

Localização: Milão, Itália

Ano: 1936

"AGRANDEMOLDURADA FACHADA

TORNA-SE

UM MOTIVOMUITOORIGINAL QUE, POR SUA VEZ, DENUNCIA SINTETICAMENTE A GRANDE NOVIDADE DA CONCEPÇÃO DO EDIFÍCIO." (FONTE)

A Casa Rusticci assim como outras construções de sua época, foi uma reinterpretação da relação entre o lote e o volume, utilizando como base de sua volumetria as antigas linhas férreas. Inserindo também sublinhadamente a sua fachada galerias alinhadas, tendo seu acesso principal realizado por uma escadaria ondeseencontratambémacasadocaseiroealgunsescritórios.

A construção geral da obra, além do uso de concreto armado para seu estrutural, foi utilizado também diversos revestimentos como mármore Lara Branco, acabamentos em gesso e vidros moldados no interior de sua fachada. Tal materialidade proporciona uma maior harmonia enquanto circula pela edificação, ficandomaisperceptivonopátiointerno.

GIUSEPPE TERRAGNI GIUSEPPE TERRAGNI

Nascido em Meda - Itália, em 18 de abril de 1904, Terragni é considerado um dos destaques da arquitetura moderna na Itália. Formou-se na faculdade de Arquitetura Politécnica de Milão em 1926. Antes disso, Terragni já foi vencedor de uma competição para escolha do “Monumento aos caídos na guerra”, com seu projeto feito na praça da catedral.

Além disso, fez parte do “Grupo 7”, que se tratava de novos arquitetos com o desejo de renovaraarquiteturaitaliana,sendoessegrupomuitoinfluenciadopeloCIAM,tempodepois iriafundaroMovimentoItalianodaArquiteturaRacional,oMIAR.

Um dos seus primeiros projetos, o bloco Novocomum foi a primeira habitação coletiva modernaitaliana,sendoconsideradaumescândaloparaaarquiteturadacidadedeComo.A obra de mais famosa de Terragani é a Casa del Fascio, também em Como, 1932-37, porém, nãoésuaúnicaobradegrandedestaquetendotambémaVillaBiancaemSeveso,1936-37e oAsiloSantoEliasemComo,1936-37.(DURANTE,2015n.p.)

PIETRO LINGERI PIETRO LINGERI

NascidoemBolvedro-Itália,em25dejaneiro de 1894, foi um dos principais nomes do racionalismo italiano. Formado na Academia deBelasArtesdeBreraem1926.

Antes de começar a estudar arquitetura, frequentou junto aos irmãos Angelo e Giacomo, a escola de artesões da Academia de Belas Artes de Breba. Através disso, trabalhou como decorador, gesseiro e escultor.(BAGLIONE,2005n.p.)

PietrofoiumdosfundadoresdoMIARjuntamentecomTerragnie,entre1926e1930,osdois fazemumaassociação.

Suaarquiteturafoiinovadoraporusarnovosmateriaisparaaconstrução,comooconcreto reforçado,grandesjanelaseousodeperfisdeaçoparafazerosparapeitos. Dentresuasprincipaisobrasestão:asededo“ClubMotonauticoAMILA”emTremezzo,1926; Prédio de apartamentos Ghiringhelli em Milão, 1933. Por fim, vale destacar que muitas tiveramaparticipaçãodeGiuseppeTerragni.(THUROCZY,2017n.p.)

EDIFÍCIO EDIFÍCIO

ESTHER ESTHER

Foi um ícone para a primeira fase da verticalização na região da Praça da República, consequência do aumento populacional desgovernado na década de 1930 na cidade de São Paulo. Com isso, o edifício ocasionou grandes transformações tanto no quadro residencial, quanto no urbano, já que foi criada a Rua Gabus Mendes, entre os Edifícios Esther e Arthur Nogueira, modernizando a cidade com a introduçãodoscincopontosdaArquitetura Moderna, desenvolvidos em 1926 pelo pintor/ arquiteto suíço Le Corbusier. (BACOCCINA, 2019, n.p.) (PEREIRA, 2018, n.p.)(ATIQUE,2004,P.152-155).

O edifício Esther foi projetado pelos arquitetos Álvaro Vital Brasil e Adhemar Marinho, ganhadores do concurso organizadopelosproprietáriosdaUsinade AçucareiraEsther.Noprojetoapresentado, os arquitetos optaram pela divisão do programa em dois blocos: o Esther e o ArthurNogueira.Oprimeiro,possuisalasde tamanhos distintos para abrigar profissionaisdediversasáreas,alémdealo-

Autores: Álvaro Vital Brasil e AdhemarMarinho

Localização: SãoPaulo-SP

Ano: 1938

"AS

POUCAS REALIZAÇÕES DA ARQUITETURA MODERNA, ATÉ ENTÃO, ERAM DE ESCALA REDUZIDA OU OCUPAVAM LOCALIZAÇÕES

PERIFÉRICAS; O EDIFÍCIO ESTHER SURGIA NO CORAÇÃO DE SÃO PAULO, ANUNCIANDO O CARÁTER IRREVOGÁVEL DA REVOLUÇÃO ESTÉTICA EM CURSO"

(CONDURU,2000,P.121)

car o escritório da Usina Esther. Também é presente no projeto, apartamentos residenciais e comércio. Esse vasto programa acontece com a limitação de apenas 10 pavimentos, de acordo com a legislação urbana exigida na época. Tornando o edifício Esther pioneiro no uso de armação de concreto e do uso misto, permitindo uma melhor qualidade urbana, espacial, ventilação e iluminação, projetando então os edifícios Esther e o Arthur Nogueira, entre os anos de 1935 e 1938. (PEREIRA, 2018, n.p.).

“O

EDIFÍCIO DE APARTAMENTOS NÃO SIGNIFICOU, PORTANTO, APENAS UM OUTRO TIPO DE MORADIA OU OUTRO INGREDIENTE NA CONFIGURAÇÃO DO ESPAÇO:ONOVOMODELOCRISTALIZAVAUMAGRANDETRANSFORMAÇÃOEM MUITASESFERASDOMORAR”(VAZ,1994,P.153).

Osacessosaoedifícioocorrempelasruas laterais: Rua Sete de abril e Brasílio da Gama e, a entrada principal, pela Avenida Ipiranga. O pedestre é conduzido à galeria central, onde localizam-seoselevadoresquepossuem diferentes portarias distribuídas. Este possuiumsubsoloquehojeégaragem, umtérreoeoutros10pavimentos,sendo do1ºao3ºandarcomercial,do4ºao10º residencial. A sua área de 8 mil metros quadrados foi distribuída em 103 unidades de escritórios e apartamentos, comdiversostiposdeplantas,contando com dimensões mínimas e até em duplex, novidade para aquela época. Equipamentos coletivos inspirados em Le Corbusier destacam-se, como o restaurante no topo do edifício, lavanderia e academia. (PEREIRA, 2018, n.p.)

A circulação social e de serviço interna vertical foram solucionadasapartirdecincoelevadoresquechegamatéo terceiropisodoedifício,paramelhorseparaçãodopúblico e privado, distribuídos linearmente pelo corredor e três escadas que possuem uma forma cilíndrica com fechamentos de vidro colocadas nas faces menores, que permitem a entrada de luz natural. (ATIQUE, 2004, P. 166168)(PIERRE,n.p.).

Com influências de Le Corbusier, ele também foi o primeiro a utilizar os princípios racionalistas, como as janelas em fita, térreo sobre pilotis, pilares circulares, plantalivre,3colunasdeescadasemformatocilíndricoe comvidros,terraço-jardimnacobertura,oferecendouma visão 360º da cidade, as plantas dos apartamentos mudavam de acordo com a renda do futuro morados. Comisso,quantomaioropoderaquisitivodocliente,mais próximodoprogramaestavadeLeCorbusier,apartirdas distribuições de funções. Para o subsolo foi usado vidros redondos, colocadas nas calçadas que geram iluminação naturalparadentrodoedifício.

Já em fachada, destaca-se o emolduramento de vidrolite preto (atualmente retirado) que marca claramente a estrutura, oferecendo uma simetria e rigor geométrico. A horizontalidadeédestacadaatravésdoformatodasjanelas,eassacadasgeramcheiose vazios.Alémdisso,escadasdevidroquefavorecemavistaparaapraçalocalizadabem emfrente,destacando-seporpossuirumvolumeindependentedoperímetrodaquadra. (XAVIER,LEMOS,CORONA,2017,ficha4).

Em 1970, o edifício passou por um processo de decadência, porém após o seu tombamento pelo CONDEPHAAT em 1990, onde foi declarado como “(...) um marco importantenapaisagemenahistóriadaarquiteturapaulistana(...)”-(SPPatrimônio).

ÁLVARO VITAL BRAZIL ÁLVARO VITAL BRAZIL

Nascido em São Paulo no dia primeiro de fevereirode1909,formou-senoestadodoRio deJaneironocursodeengenharianaEscola Politécnica e em arquitetura na Escola Nacional de Belas Artes, no ano de 1933, participando do “Grupo Carioca”. Em seus primeirosanosdecarreiraespecializou-seem projetos residenciais, associando-se ao engenheiro-arquitetoAdhemarMarinhoentre os anos de 1934-1936, ex-companheiro de turma. Além de afiliar-se ao CIAM(CongressosInternacionaisdeAquiteturaMo-

na),aoClubedeEngenhariaeaoIAB(InstitutodeArquitetosdoBrasil),trabalhandocom váriosnomesdaarquiteturabrasileiramodernista. AmaioriadosseusprojetosforamexecutadosnacidadedeSãoPauloenoRiodeJaneiro, onde viveu parte da sua vida, destacando-se devido aos seus princípios racionalistas e funcionalistas,inspiradosemLeCourbusierenasvanguardaseuropéias.Algunsdeseus importantes projetos na cidade do Rio de Janeiro foram os Instituto Vital Brazil (1942), EdifícioSededoJockeyClubBrasileiro(1947),EdifícioResidencial(1960);jáemSãoPaulo foi o Edifício Esther (1936-1938), sendo o pioneiro a verticalização da cidade, além de possuir um importante obra na cidade de Belo Horizonte - MG, o Edifício Clemente de Faria(1946).(COLIN,2012,n.p.).

ADHEMAR MARINHO DA CUNHA ADHEMAR MARINHO DA CUNHA

Nasceunodia19dejaneirode1911,nacidade doRiodeJaneiro,ondeviveuamaiorpartede sua vida. Formou-se em engenheiroarquiteto na Escola Nacional de Belas Artes. Afiliou-se ao arquiteto e engenheiro Álvaro Vital Brazil, entre os anos de 1934- 1936, excompanheirodeturma,comquemexecutou muitosprojetospeloBrasil,destacando-seno concurso do Edifício Esther, em 1936. Este é considerado um grande modernista da arquitetura brasileira, sendo conselheiro do CREAem1942.

EDIFÍCIO EDIFÍCIO EIFFEL EIFFEL

Oscar Niemeyer possuia críticas severas quanto à arquitetura paulistana, principalmentedevidoàlegislaçãovigente naépocaqueatuoupelacidade(décadade 1950, principalmente), que limitava sua linguagemeplasticidadearquitetônica.No edifício Eiffel, o recuo exigido pela prefeitura foi utilizado como partido para andamento do projeto. (GIMENEZ, 2012, n.p.).

Diferente do edifício em questão, no edifício Triângulo (inaugurado em 1955), que é de uso comercial e localiza-se no centrohistóricodeSãoPaulo,Oscarprevia brisesnoprojetooriginal.Essesavançariam o recuo, devido a isso, o elemento foi vetado pela prefeitura da época. Desse modo, o edifício teria elementos arquitetônicos semelhantes ao Copan, por exemplo, com arredondamento e brises que acentuam a curva. Porém foi adotado somente o arredondamento da esquina principal, deixando a fachada completamenteexpostaaosol.(BRANDÃO, 2022,n.p.).

Autor: Oscar Niemeyer

Localização: São Paulo - SP Ano: 1955

"NO

INÍCIO DOS ANOS 1950, OSCAR NIEMEYER PROJETOU UMA SÉRIE DE PRÉDIOS EM SÃO PAULO, TODOS MUITO ABERTOS E CONTÍNUOS À CIDADE, CRIANDO SEMPRE UMA SITUAÇÃO INTERESSANTE PARA O ENTORNO."

(VALENTIM,2019,P.100-101).

Esse elemento vetado no Edifício Triângulo pela legislação da época, refletiu-se na fachada do edifício Eiffel, isso se dá principalmente pelo fato de as aberturas, de modo geral, estarem voltadas para face oeste. Em conjunto aos vidros das janelas, foram adotados elementos vazados, criando linearidade quanto ao tamanho das aberturas e evitando discrepância, por exemplo, entre a janela do banheiro, cozinha equartos,bastantepresenteemedifíciosresidenciaisatuais.

“AIMPLANTAÇÃODOEDIFÍCIOEIFFELÉGENUINAMENTEMODERNAPORQUEO MODELO,NÃOIMPORTAMAISSEHISTÓRICOOU'CORBUSIANO',ENCONTRAUM AJUSTEFORMALENEXOPRECISONAESTRUTURADACIDADE,UMACONDIÇÃO IMPECÁVEL.”

(GIMENEZ,2012,N.P.)

Complementando-seaoprismaformado,oedifícioestáassentadoemumembasamento (térreo) que envolve a rua com transparência, por estar sob pilotis, tratando-se de uma formasintética.AssimcomooEsther,oEiffelpossuidestaqueurbanisticamentefalando, visto que foram implementadas soluções como o térreo ativo e o respeito do recuo de modoasetornarcaracterísticaplásticadoedifício.(VALENTIM,2019,p.100).

"ÉnapraçadaRepública,com58metros de frente, que se acha situado o Edifíio Eiffel. A área construida dêsse prédio é de 12.800m² e a área útil de 9.940m². Possue 54 apartamentos, todos tipo duplex e de frente, com absoluta separação entre as partes nobres e de servoço. As lojas, em número de 16, acompanham o estilo geral do grande empreendimento. 8 lojas são externas, enquanto que as demais têm entrada pela galeria principal, onde se encontram os 4 elevadores sociais. O elevador de serviço tem entrada independente.

O bloco central do edifício possue 12 andaresduplex.Assobrelojassãounidas de janelas pequenas e têm, cada uma delas, escadas próprias para as respectivas lojas. No sub-solo está localizada ampla garagem; no primeiro pavimentorestauranteeterraço.

O tempo da construção do empreendimento foi de 30 mêses. Acompanham o presente texto, à guiza de ilustração, fotos com aspectos dos 3 corpos do prédio e plantas dos andares tipos até o 11º andar. Os andares restantes do corpo central continuam com a mesma distribuição interna, porém sem as duas alas laterais."

(REVISTAACRÓPOLE208,1956,p.135)

Além disso, a alternância entre os programas de apartamentos, que variam deamplosaduplex,oscaixilhospiso-teto,o teto-jardim e o revestimento de pastilhas brancas também são soluções características do arquiteto. (VALENTIM, 2019,p.100).

Os caixilhos piso-teto e a adoção da tipologiaduplexpartedoconceitodeabrir as unidades habitacionais para a Praça da República, para onde são direcionadas as janelas dos dormitórios e salas. Segundo um dos moradores, Luciano Margotto, no ArquitextosdaVitruvius,aindaháunidades triplex, que mal são reverenciadas quando sefalanoedifício.

NIEMEYER NIEMEYER

NascidonoRiodeJaneiro,em1907,OscarNiemeyer se formou na Escola Nacional de Belas Artes e tornou-se engenheiro arquiteto em 1934. (FRAZÃO, 2019,n.p.).

A parceria de maior importância para a vida profissionaldoarquitetoemquestãofoiacomLúcio Costa,emqueNiemeyersequereramonetizado,seu maiorinteresseeranoaprendizado.Apósumtempo, a mesma dupla participou da Semana de Arte Moderna,em1922.

Além disso, sempre buscou parcerias com artistas comopintoresouescultores,porexemplo,paraque a construção crie sua própria essência através da plasticidade,semprepresentesemsuasobras.

A ousadia de Niemeyer sempre tinha uma racionalidade subjetiva. Contudo, pensava nos projetosalémdesimplesmentefísicos, seuobjetivo era tornar seu respectivo monumento em uma marcalocal,alémdasuafuncionalidade.

Segundo Oscar, no documentário "A vida é um sopro", os prédios públicos enriquecidos com a beleza da arquitetura era uma das poucas possibilidades de pessoas que moram nas favelas comtemplarem da arquitetura. Isso é o que ocorre noEdifícioEiffel,ondeaocriarumafachadaativa,a arquiteturatornaoprédio,queéparafamíliasmais abastadas,emarquiteturainclusiva.

LE LE MONOLITHE MONOLITHE

Auniãoeuropeia,formadapelotratadode Madrid, em 1992, atualmente consta com 27paísesmembros,quetemcomoobjetivo mútuo a integração econômica e política. Namesmalinhadepensamento,oedifício Le Monolithe, como o próprio nome diz define-seaumaestruturaformadaporum único bloco, buscando representar, de acordo com o escritório MVRDV, a integraçãoeuropeia.

(TOSTES,ANAPAULA.2017.N.p.)

OedifícioLeMonolitheconstruídoem2010 e localizado em Lyon, na frança, reúne habitaçõessociais,residências,escritóriose comércios em seu programa de necessidades.Ademais,oprojetotevefoco na sustentabilidade, sendo 80% de sua energia,renovável.

(BRITTO,2012.n.p.)

Autores: Escritório MVRDV

Localização: Lyon, França

Ano: 2010

"A UNIÃO É FUNDADA NOS VALORES DO RESPEITO À DIGNIDADEHUMANA,LIBERDADE,DEMOCRACIA,IGUALDADE, O ESTADO DE DIREITO E O RESPEITO PELOS DIREITOS

HUMANOS, INCLUINDO O DIREITO DAS PESSOAS QUE PERTENCEMÀSMINORIAS.ESSESVALORESSÃOCOMUNSAOS

MEMBROS DE ESTADO EM UMA SOCIEDADE EM QUE O PLURALISMO, A NÃO-DISCRIMINAÇÃO, A TOLERÂNCIA, A

JUSTIÇA,ASOLIDARIEDADEEAIGUALDADEENTREMULHERES EHOMENSPREVALECEM"

(PRIMEIROARTIGODACONSTITUIÇAODAUNIÃOEURPOEIA)

“NÓS GOSTAMOS DE OLHAR PARA DENTRO DA HISTORIA E RECONSTRUIR COMOERAANTES,VENDOTODAVIVÊNCIAQUEACONSTRUÇÃOPASSOU,MAS COMUMOLHARNOVOSEGUINDOASNORMASDASCIDADES.” (MVRDVAOVIVOEMCONVENTRYUNIVERSITYARCHITECTURESOCIETY,2021.)

Oprojeto,emsuaessência,éumgrandeblococomaberturacentraldesenvolvidoemum grandequarteirãoetendoumaestruturadeáreatotalde32500m2.Seuvolumedivide-se emcincopartes,quaisforamplanejadasporarquitetosdiferentes,cadaumacomcaráter único e independente, sendo a MVRDV como a fachada sul, e seguindo com Gautier; Gautrand;ECDMeporfimefachadanorteEEAassimavariedadedearquitetosemum mesmoedifíciotrouxeumaideiaúnicaaoprojeto.

(MVRDV,2018.n.p.)

Quanto ao olhar construtivo, o bloco Le Monolithe, apresenta ventilação natural e cruzadaemtodooseucomplexo,alémde buscar integrar-se ao entorno através da edificação. Proporcionando uma visão privilegiada da cidade, da nova marina e de um parque próximo. Assim, o edifício busca, de modo natural, favorecer a experiência de moradias, comércios e circulaçõesnocomplexo. Portanto, é notório a existência de um significado histórico em partido do complexo habitacional que é o Le Monolithe. Em que traz a questão social da União Europeia através da forma, cor, materialidadeemodeloparaaedificação.

''AMVRDVfoifundadaem1993porWiny Maas,JacobvanRijseNathaliedeVries. Com sede em Rotterdam, na Holanda, tendo um escopo global, fornecendo soluções para questões arquitetônicas e urbanas contemporâneas em todas as regiões do mundo. O método de design altamente colaborativo e baseado em pesquisa envolve clientes, partes interessadas e especialistas de uma ampla gama de áreas desde o início do processo criativo. Os resultados são projetos exemplares e sinceros que permitem que nossas cidades e paisagens se desenvolvam em direção a umfuturomelhor.''

.(MVRDV,2013,n.p.)

EDIFÍCIO EDIFÍCIO TRANSITLAGER TRANSITLAGER

O Transitlager é um projeto que transformou um antigo armazém em um prédio multifuncional, trazendo dois tipos de arquitetura em um prédio. Embaixo o antigoarmazémcomumaformalinear,ea intervenção feita sobrepondo-se à antiga estrutura. Resultando no uso misto do prédioatravésdearte,comércio,trabalhoe residências, sendo o galpão para uso público e a intervenção superior privado. (HASSEGAWA,2022,n.p.)

Autores: Bjarke Ingels, Andreas Klok

Pedersen,FinnNorkaereJakobHenke

Localização: Basel,Suíça

Ano: 2017

Localiza-senobairrodeDreispitz,emBasel-Suíça,um bairro industrial que nos últimos anos vem sofrendo mudanças,tornando-seumbairrovoltadoàarte. Oarmazémpré-existentepossui18.000m²,comnome de Transitlager foi construído no final dos anos 1960, com uma forma mais linear e simples. A reforma que foi proposta a partir de um concurso, ganhado pelo escritório de arquitetos da BIG, visava acrescentar alguns andares com formas lineares porém trabalhando com vazios ao longo da fachada, evidenciando as mudanças feitas no armazém. (JORDANA,2011,n.p.)

"PROPOMOS UMA TRANSFORMAÇÃO DO TRANSITLAGER QUE SE BASEIA NA LÓGICA INDUSTRIAL DO EDIFÍCIO EXISTENTE E DA ÁREA CIRCUNDANTE.AEXTENSÃODOBRAOTAMANHODOTRANSITLAGERESE TORNAUMGÊMEOOPOSTO-BASEADONAMESMAESTRUTURA,MASCOM UMA GEOMETRIA DIFERENTE. O EDIFÍCIO COMBINADO TORNA-SE UM ESPECTRO DE CONDIÇÕES IDEAIS: DESDE PLANOS ABERTOS E FLEXÍVEIS A UNIDADES SOB MEDIDA, PROGRAMAS PÚBLICOS A RESIDÊNCIAS PARTICULARES, ESPAÇOS URBANOS VIBRANTES A JARDINS VERDES PACÍFICOSEDEINDUSTRIALFRESCOAQUENTEEREFINADO." (ANDREASKLOKPEDERSEN-ARCHDAILY,2011,N.P.)

“OEMPILHAMENTODEDUASESTRUTURASCOMPLEMENTARES-UMAEMCIMA DAOUTRA-GEROUUMANOVAVISÃODATIPOLOGIADOPÁTIOCOMUM.ONDE O TÍPICO PÁTIO RESIDENCIAL ENCONTRA-SE ENCARCERADO POR MUROS DE PROGRAMA,OSTELHADOSDOTRANSITLAGERCOMBINAMATRANQÜILIDADEE O ESPAÇO COMUM DO PÁTIO COM A LUZ DO SOL E AS VISTAS PANORÂMICAS DACOBERTURA.UMACOBERTURAPARAOPOVO.” (ANDREASKLOKPEDERSEN-ARCHDAILY,2011,N.P.)

Os cortes evidenciam essa mudança do antigo paraonovo,mostrandoos vazios criados pelos arquitetos. Esses que, além de trazer uma mudança plástica ao projeto,fazemcomqueos espaços envoltórios sejam convidativos às pessoas que utilizam o prédio. Além disso, os vazios podem abrigar áreas verdes.

Aquebracausadaentreolineareasformasirregulareséfeitadeumformamuitobem pensada.Mostrandoqueháintervençãonaqueleedifício,porémsemsesobressairdapréexistência,propagandoapremissadequehámodosderenovarumaantigaconstrução semqueumasedestaquequantoaoutra,possibilitandooequilíbrioentreasduas.

Além da mudança, a simplicidade da fachada que foi trazida do próprio armazém aumenta esse equilíbrio do edifício inteiro. Com o uso inteligente de poucos materiais paraeconomizaretornaroprojetoharmoniosoeluxuoso.

A relação do edifício com o entorno é bem trabalhada, não destoando do pré-existente. Trabalhandocomalinearidade,queébastantepresenteporserumbairroindustrialantigo,os edifíciosnãopossuíamcomplexidadenassuasformas,masapequenamudançanaorientação dosnovosandaresjáproporcionaumdestaqueaoprojeto.

Umpoucoacimadolocalexisteumjardimbotânicoqueépresentenapaisagemdobairropor ter uma grande concentração de árvores em meio ao bairro industrial, aspecto trazido pelos arquitetosatravésdetelhadoverdeeospequenosjardinsnosvaziospresentesnafachadado Transitlager.

Aoladodoprojeto,localiza-seumalinhadetremquecriaumaimagembastanteindustrial, alémdecomporumgrandepátiopublico.Dessemodo,afachadaativadoTransitlagertornao ambienteagradável,criandoumaconexãoentreoedifícioeasáreasverdesdacidadedeforma implícita.

Através dessa grande variedade de usos, a área recebe uma grande quantidade de pessoas circulandopeloprojeto,em diversos horários distintos, proporcionando segurança ao entorno, além de ir de acordocomatransiçãoque o bairro está submetido. Transformando o lugar industrial em um bairro mais jovem e criativo. Onde, além de trabalhadores, há novos moradores, como estudantes que chegaram recentementenobairropor contadesuasmudanças.

O edifício conta com 7 tipologias de apartamentos em decorrência de seu formato. Mesmo com essa grande variedade, o projeto solucionou bem as plantas com a relação de áreas, insolaçãoedistribuiçãodosespaços,alémdarelaçãodointernocomoexterno.

Em decorrência da geometria do prédio novo, a insolação nunca fica totalmente virada ao norteentãoafachadainteirarecebeiluminaçãonatural,evidenciandoaidealizaçãoquantoà geometriautilizada.

Alémdasunidadesconvencionaishá,umconceitodeexperimentarnovastipologiasdecasas ouatémétodosconstrutivosparaumacasa,chamadasde"Experimentalhousing".Noprojeto existem 10 tipologias voltadas a esse uso, executadas para trazer tipologias diferentes do comum na maioria dos projetos, trabalhando com um pé direito duplo para aumentar ainda maisessadiferenciação.

A maioria das "Experimental housing" consistem em descobrir novos modos de morar, trabalhando muito ao lado da inovação e sustentabilidade dos projetos, trazendo novos métodosconstrutivos,buscandonovassoluçõesquesejameficazesemfrenteaproblemasde insolação,iluminaçãoeventilação,porexemplo.

Através da proposta do uso de materiais de baixo custo, as "Experimental Housing" são evidenciadas, por possuírem grande papel na sustentabilidade e, por estarem presentes na transformaçãodobairro,podemincentivarpositivamentenovosprojetosdaregião.

Imagem 58: Plantas "Experimental Housing". F

Esse projeto renovou o entorno trazendo vida a um antigo bairro industrial. Sendo assim, os arquitetos do BIG fizeram um projetodestaquequantoàpré-existênciae sustentabilidade.

Bjarke Ingels Bjarke Ingels Group (BIG) Group (BIG)

Bjarke Ingels um arquiteto dinamarquês, formado pela Real AcademiaDinamarquesadeBelasArtes, emCopenhague,noanode1999. Noanode2005juntodeJuliandeSmidt fundou o escritório PLOT, e no ano seguinte em 2006 abriu sua empresa a "BjarkeIngelsGroup",ouBIG.

Bjarke também foi professor na universidades de Harvard, Columbia e Yale.Alémdissopublicoutrêslivros,"Yes Is More: An Archicomic in Architectural Evolution", "BIG, HOT TO COLD: An Odyssey of Archtectural Adaptation" e "BIG-BjarkeIngelsGroup"

Também já foi bastante premiado, em 2004recebeuumleãodeouronaBienal de Arquitetura de Veneza, em 2010 foi vencedor do European Prize e entre outros.

Sua arquitetura é bastante conhecida por trazer formas muito diferentes do comum. Além de ser de grande proporção, trazendo singularidade aos seus projetos e tornando-se destaque quanto ao entorno. Seus principais projetos são: a "8 House", "Via 57" e o pavilhão dinamarquês da exposição mundial de Sangai em 2010. (VIVA DECORAPRO,2018,n.p.)

Residencial Residencial Parque Novo Parque Novo

Santo Amaro V Santo Amaro V

O projeto está localizado na cidade de São Paulo, em uma região conhecida área dos mananciais da represa de Guarapiranga. O lugar onde o parque se alocaé umfundodevale,comumcórrego sendo seu curso de água, com margens ocupadasporhabitaçõesirregulares.

Durantetodoopercursodocórrego,era despejado o esgoto das casas que ocupavam sua encosta, além de lixo e entulho. Com isso, grande parte da vegetação local veio a ser extinta e em brevetransformariaolocalemumgrande aterro.

Adiretrizdoprojetofoide criaraolongo do córrego um eixo central verde, como tentativa de resgatar aquela vegetação prestes a sumir. Procurando soluções de aproveitaromáximopossíveldasnascentes do córrego, além de usá-las, principalmente,parafinspaisagísticos.

Autores: Vigliecca & Associados

Localização: São Paulo, Brasil

Ano: 2012

"MAISDOQUECRIARMORADIASPARAFAMÍLIASQUEVIVIAMDEFORMA PRECÁRIA EM ÁREAS DE RISCO, SUJEITA A ENCHENTES E DESABAMENTOS. O PROJETO TROUXE MELHORIA URBANA PARA A COMUNIDADE, SITUADA EM UMA REGIÃO DE MANANCIAIS NA ZONA SUL DESÃOPAULO,MAIORCIDADEDAAMÉRICALATINA."

(VIGLIECCA&ASSOCIADOS,2012,N.P.)

Para que um local como o intuito de abranger e restaurar uma comunidade, é necessário a implantação de pontos atrativos por seu percurso, fazendo com que não somente os moradores mas também as pessoas de fora venham a visitar e circularpeloprojeto.

Umdospontosatrativosmaismarcantespossivelmenteéocampodefutebol,que não somente usufrui os moradores do local, mas também como a Escola Estadual JoséPorphyriodaPaz.Alémdoprópriopercursodoparque.

“O PROJETO CONSTRÓI VÁRIOS “PORTAIS” AUMENTANDO O NÚMERO DE ACESSOSAOPARQUELINEAR,EDIMINUINDOOISOLAMENTODOINTERIOREM RELAÇÃOAOSEUENTORNO.COMOMESMOINTUITOINCLUEM-SENOPROJETO DUAS PASSARELAS METÁLICAS QUE CONECTAM OS DOIS LADOS DA ENCOSTA PASSANDOACIMADOPARQUE.” (VIGLIECCA&ASSOCIADOS.2014.N.P.)

Antes da implantação do projeto as crianças que moravam lá precisavam passar pelo córrego poluído para conseguirem acessar a viaeiremparaaescola,com isso em mente, o projeto criou as passarelas elevadas que ligavam os blocos dos prédiosetambémosligavam diretamente a via, sem a necessidade de ter que passar pelo córrego novamente. Contudo, não descartando ele como um meio paisagistico, sendo o córrego,atualmentetratadoe com esgoto canalizado, uma das identidades visuais do projeto.

Os diversos blocos contam com diversas tipologias de apartamentos, mas até mesmoomaissimplesébem projetadoecombonsfluxos

Talvezumadasgrandesimportânciasde um arquiteto seja não somente se preocupar com o projeto mas as pessoas que iram usufruir dele. Nesse quesito o ParqueSantoAmaroVcompreessafunção de uma maneiro quase que impecável, abraçando a comunidade e deixando o localconvidativo.

Pistasdeskate,playgroundseumcampo de futebol são vistos ao longo do parque, além de contar com a presença de uma escola, tais elementos acabaram criando um novo ambiente complexo e complete queabraçaeconvidaseusmoradores.

HÉCTOR HÉCTOR

VIGLIECCA VIGLIECCA

Héctor Vigliecca nasceu na cidade de Montevidéu, no Uruguai, no dia 16 de outubro de 1940. Graduou-se em arquitetura pela Faculdade de Arquitetura da Universidade da República (UDELA), em Montevidéu, em 1968efezsuapós-graduaçãoem1970na Universidade Degli Studio di Roma, retornandoparaMontevidéuem1972.

Sofrendo com perseguição militar em seupaís,ViglieccafugiuparaoBrasilem 1975, escolhendo aqui por causa da grandedemandadearquitetoseporsua vez, passou a trabalhar no escritório de JoaquimGuedes.

Em 1989 fundou seu escritório, conhecidocomoPadovano&Vigliecca,o mesmo que em 1996 virou Vigliecca & AssociadosE.

Fazendoparaleloàcarreiraprofissional, Vigliecca também dedicou-se ao meio acadêmico na década de 1970. Sendo professor do curso de Arquitetura da UDELAR, em Montevidéu, e das universidades Mackenzie e UNIP de São Paulo até o ano de 2012. Atualmente somente está como professor de pósgraduaçãodaUniversidadeMackenzie.

iO Menino iO Menino Deus Deus

Sendoumdosprimeirosprojetoscoma ideiadeTrueView,aedificaçãofazparteda curadoriadaWikihaus,localizadonobairro MeninoDeusemPortoAlegre.

O grande foco do edifício é o fato da expansão de seus apartamentos, trabalhando com uma plástica mais "reta", montando sua volumetria e silhueta a partirdeseusprópriosapartamentos.Além de possuir um padrão de escalonamento entre as tipologias, conseguindo assim explorarmaisáreasprivativas.

Abasedoprédioabrigaasáreascomuns (salão de festas, academia e lobby) e também estacionamento. Viver dentro e fora se manifesta na integração total do contexto: da unidade individual ao edifício emsiedoedifícioaosseusvizinhos.(OSPA. 2019.N.P.)

Autor: OSPA

Localização: Porto Alegre, Brasil

Ano: 2019

"O QUE ACONTECE SE VOCÊ MUDAR SUA PERSPECTIVA SOBRE AS COISAS? SE ENCARAR O QUE ESTÁ A SUA VOLTA COMO UMA EXTENSÃO DA SUA CASA? NESSE SENTIDO, UM EMPREENDIMENTO NUNCA É SÓ UM EMPREENDIMENTO. ELE CONVERSA COM O ENTORNO, DEIXA A REGIÃO MAIS BONITA E PODE, SIM, AJUDAR A AMPLIAR O SEU OLHAR SOBRE O LUGARONDEVOCÊVIVE." (WIKIHAUS.2019.N.P.)

OescritórioOspafoifundadaem2006 com foco em arquitetura e que com o tempo se expandiu para atender outras demandas da construção civil. Atualmente o Grupo Ospa é composto porquatroempresasepossuimaisde40 membros ativos, sendo eles pertencentes a diversas áreas do conhecimento.(PROJETO.2021.N.P.)

"SOMOS UM GRUPO DE ARQUITETOS, ENGENHEIROS E CIENTISTAS DE DADOS QUE VISA RESOLVER OS PROBLEMAS URBANOS ATRAVÉS DO DESIGN E DATECNOLOGIA." (OSPA.2006.N.P.)

REFERÊNCIAS

Adhemar Marinho. Arquivo Arq, 2022. Disponível em: <https://arquivo.arq.br/profissionais/adhemarmarinho>.Acessoem:06junho2022.

Álvaro Vital Brazil. Arquivo Arq, 2022. Disponível em: <https://arquivo.arq.br/profissionais/alvarovital-brazil>.Acessoem:06junho2022.

ATIQUE,Fernando;MEMÓRIAMODERNAatrajetória doEDIFÍCIOESTHER.Ed.RiMa,2004.

BACOCCINA, Denize. Edifício Esther, o primeiro modernista de São Paulo. A vida no centro, 2019. Disponível em: <https://avidanocentro.com.br/cidades/edificioesther-historia-predio-historico/>. Acesso em: 03 maio2022.

BAGLIONE, Di Chiara. LINGERI, Pietro. Treccani. Disponível em: <https://www.treccani.it/enciclopedia/pietrolingeri_%28Dizionario-Biografico%29/ >.Acessoem:06junho2022.abril

BARATTO, Romullo. Projeto Transitlager do BIG na Suíça,pelaslentesdeLaurianGhinitoiu.ArchDaily. Disponível em: <https://www.archdaily.com.br/br/800006/projeto -transitlager-do-big-na-suica-pelas-lentes-delaurian-ghinitoiu?ad_medium=gallery>. Acesso em: 06junho2022.

BIG. Transitlager. BIG. Disponível em: <https://big.dk/#projects-tld>.Acessoem:06junho 2022.

Architectural Desingschool. BIG transforma o Transitlager na Suíça. Architectural Desingschool. Disponível em: https://por.architecturaldesignschool.com/bigtransforms-transitlager-switzerland-87992>. Acesso em:06junho2022.

BRANDÃO, Thais. Edifício Triângulo, mais um pedacinho da história do centro de São Paulo!. SPCity, 2022. Disponível em: <https://spcity.com.br/edificio-triangulo-maisum-pedacinho-da-historia-do-centro-de-saopaulo/>. Acesso em 05 maio/2022.

BRITTO, Fernanda. Le monolithe / MVRDV. ArchDaily. Disponível em: <https://www.archdaily.com.br/br/0125480/le-monolithe-mvrdv>. Acesso em: 06 junho 2022.

COLIN, Silvio. Álvaro Vital Brazil. Coisas da arquitetura, 2012. Disponível em: <https://coisasdaarquitetura.wordpress.com/20 12/02/06/lvaro-vital-brazil/>. Acesso em: 06 julho 2022.

CONDURU, Roberto. Esther e São Paulo –construções culturais entre o edifício e a cidade. Vitruvius, 2004. Disponível em: <https://vitruvius.com.br/revistas/read/resenha sonline/03.031/3184>. Acesso em: 06 julho 2022.

DURANTE, Silvio. Giuseppe Terragni. Enciclopédia Biográfica de Arquitetos Digital. Disponível em: <https://www.ebad.info/terragnigiusepe>. Acesso em: 06 junho 2022.

Edifício Residencial iO Menino Deus / OSPA" 24 Jul 2021. ArchDaily Brasil. Disponível em: <https://www.archdaily.com.br/br/965274/edif icio-residencial-io-menino-deus-ospa> Acessado 10 Jun 2022.

REFERÊNCIAS

FAU-USP. Revista Acrópole. Nª208. Disponível em: <http://www.acropole.fau.usp.br/edicao/208/29> .Acessoem10maio2022.

FRAZÃO, Dilva. Oscar Niemeyer. Disponível em: <https://www.ebiografia.com/oscar_niemeyer/#:~: text=Oscar%20Niemeyer%20(1907%2D2012),de%20 600%20obras%20pelo%20mundo.>. Acesso em 02 junho/2022

GIMENEZ, Luis. Oscar Niemeyer: a arquitetura renegada na cidade de São Paulo. Vitruvius –Arquitextos. Disponível em: < https://vitruvius.com.br/revistas/read/arquitextos/1 3.151/4630>.Acessoem20maio/2022

HASSEGAWA, Benício. 5 edifícios multiuso que todos os estudantes de arquitetura deveriam conhecer. Como projetar. Disponível em: http://comoprojetar.com.br/5-edificios-multiusoque-todos-os-estudantes-de-arquitetura-deveriamconhecer/#>.Acessoem:06junho2022.

JORDANA,Sebastian.BIGTransformsTransitlagerin Switzerland,Archdaily.

Disponível em: <https://www.archdaily.com/179469/bigtransforms-transitlager-in-switzerland? ad_medium=gallery>.Acessado12Jun2022.

Moisei Ginzburg. StringFixer. Disponível em: <https://stringfixer.com/pt/Moisei_Ginzburg>. Acessoem:1abril2022.

MVRDV,about Disponivelem: https://www.mvrdv.nl/about

MVRDV ao vivo em Conventry University Architecture Society, 2021 Diponivel em : https://www.youtube.com/watch? v=2kThhkociUI&t=2668s

MVRDV. Le monolithe. MVRDV. Disponível em: <https://www.mvrdv.nl/projects/109/lemonolithe?photo=1609>. Acesso em: 06 junho 2022.

MVRDV, Monolithe Disponivel em: https://www.mvrdv.nl/projects/109/lemonolithe

PEREIRA, Matheus. Clássicos da Arquitetura: Edifício Esther / Álvaro Vital Brasil e Adhemar Marinho. ArchDaily, 2018. Disponível em: <https://www.archdaily.com.br/br/888147/clas sicos-da-arquitetura-edificio-esther-alvarovital-brasil-e-adhemar-marinho>. Acesso em: 02 abril 2022.

PIERRE, Rosana. Edifício Esther. Condephaat. Disponível em: <http://condephaat.sp.gov.br/benstombados/e dificio-esther/>. Acesso em: 03 maio 2022.

iO Menino Deus / OSPA Disponível em: <https://pt.ospa.com.br> Acessado 08 Jun 2022.

REFERÊNCIAS

ResidencialParqueNovoSantoAmaroV/Vigliecca & Associados" 28 Jun 2014. ArchDaily Brasil. Disponível

em: <https://www.archdaily.com.br/br/623191/residenc ial-parque-novo-santo-amaro-v-slash-viglieccaand-associados>Acessado05Jun2022.

TERRAGNI, Giuseppe. Casa Rustici. CargoCollective. Disponívelem: <https://cargocollective.com/estudio2habitacao/ Giuseppe-Terragni-Casa-Rustici> Acessado 06 Jun 2022

THUROCZY, Maria. Pietro Lingeri. Architectuul. Disponível em: <http://architectuul.com/architect/pietro-lingeri>. Acessoem:06junho2022.

VALENTIM, Fabio; UM GUIA DE ARQUITETURA DE SÃO PAULO: doze percursos e cento e vinte e quatroprojetos.Ed:WMFMartinsFontes,2019.

VIVADECORAPRO.SaibaqueméocriativoBjarke Ingels, considerado o Steve Jobs da arquitetura, Vivadecora. Disponível em: <https://www.vivadecora.com.br/pro/bjarkeingels/>.Acessado12Jun2022.

XAVIER, Alberto; LEMOS, Carlos; Corona, Eduardo; ARQUITETURA MODERNA PAULISTANA. Ed. Romano Guerra,2ª edição,2017.

Turn static files into dynamic content formats.

Create a flipbook
Issuu converts static files into: digital portfolios, online yearbooks, online catalogs, digital photo albums and more. Sign up and create your flipbook.