

PORTFOLIO ARCHITECTURE


PRÉSENTATION
Ce protfolio constitue une synthèse non exhaustive de mon parcours. Marqué par la pluridisciplinarité de mes études et de ma jeune carrière, ce dossier met en avant la diversité des projets auxquels j’ai participé et des rôles que j’ai pu incarner. En cela il ne regroupe pas uniquement des projets conçus entant qu’architecte. Il intègre également des projet que j’ai eu l’opportunité de piloter entant que maître d’ouvrage, ou que j’ai pu construire entant qu’indépendant.
Ensembles, elles constituent des expériences au cours desquelles j’ai pris à cœur d’explorer diverses thématiques et manières de concevoir/produire/ construire de l’architecture.

ALEXANDRE HUM ARCHITECTE - INGÉNIEUR
Date de naissance
Adresse
Téléphone
Permis B
LANGUES
Français: (L.M.)
Anglais: (C2)
Espagnol: (B2-C1)
21 décembre 1995 75019 Paris
+33 6 59 44 08 96
alexandre.hum@neuf.fr
VOYAGES À L’ÉTRANGER
Europe: Allemagne, Belgique,Croatie, Espagne, Grèce, Italie
Asie: Chine
Afrique: Éthiopie, Maroc, Tunisie
Amérique du Nord: Canada, États-Unis, , Mexique
LOGICIELS
Autocad
Sketchup
Indesign
Microsoft Office
Illustrator
Photoshop
Revit
Archicad
Rhinocéros
Adobe Première
Blender
3DS Max
Grasshopper
PASSIONS
Amérique Latine: Colombie, Guatemala, Mexique, Pérou, Salvador Sport
Basket-ball, escalade, randonné
Musique
Guitare classique et électrique
Arts divers
Photographie, dessin, tatouage
FORMATION
2013-2020
2017-2018
2010-2013
École Nationale d’Architecture ENSA Paris La Villette
École d’ingénieur en bâtiment ESTP Cachan
Architecte diplômé d’état - Projet de fin d’étude validé avec félicitations du jury.
Diplôme d’ingénieur Bâtiment.
Échange Universitaire à la UAM Xochimilco - Mexico
Année d’échange universitaire en Master 1 d’architecture
École Active Bilingue Jeannine Manuel
Baccalauréat scientifique - Option International du Baccalauréat (OIB) - validé avec mention «Bien».
EXPÉRIENCES
2022-2023
Chargé d’opérations I Paris Sud Aménagement
- MOA directe / déléguée : Pilotage et coordination de projets d’équipements publics (réhabilitation et neuf), et d’espaces publics.
- AMI : Accompagnement de communes pour le pilotage, la conception et la réalisation d’équipements publics.
2022-2023
2021-2022
2021 (4 MOIS)
2019 (3 MOIS)
2016 (2 SEM.)
2015 (1 MOIS)
FÉV. 2014 (1 SEM.)
Projet «Casa para la vida» I Association Batipod
Conception et construction d’une maison de santé en collaboration avec un collectif habitant en périphérie de Medellin, Colombie.
Activité Free-Lance
- Mission d’architecte / géomètre : Relevés de locaux commerciaux vacants. Esquisses des plans d’aménagements intérieurs suivant le cahier des charges du client.
- Ameublement sur mesure d’appartements pour des particuliers, en collaboration avec un artisan menuisier.
Stage en agence I Agence Alt
Conception de projets architecturaux et urbains. Réponse au concours pour la conceptionréalisation de logements en structure modulaire bois (remporté). Projet de renouvellement urbain à Dugny (93).
Stage conducteur de travaux I Ateliers Perrault
Gestion d’équipes et suivi de projets en charpente et menuiserie bois (de la production à la pose sur chantier).
Stage chantier I Alter Batir
- Conception de projets de logements individuels en Espagne et à Fontenay-sous-Bois
- Réalisation de documents EXE et pose sur chantier d’un atelier d’artiste à Paris.
Stage en agence I VDDT Architectes
Production de documents graphiques, modification et élaboration de permis de construire pour des projets de locaux tertiaires.
Stage chantier I Association «Quatorze» onception et pré-construction de sanitaires modulaires pour un camp de Roms installé à Montreuil..

SOMMAIRE
I. LA DÉMARCHE AU CENTRE DU PROJET
1.1 Projet de fin d’étude - Préserver les terres, créer du lien I ENSAPLV I Bidart, Pays Basque
1.2 La Halle des Grésillons I Paris Sud Aménagement I Gennevilliers (93)
II. CONCEVOIR UNE ARCHITECTURE
À l’échelle du bâtiment
2.1 « Toits temporaires Urbains » I Agence alt I Sites multiples
2.2 Concepción alternativa de vivenda I UAM I San Luis Tlaxialtemalco, Ciudad de Mexico
À l’échelle urbaine
2.3 De/s Montesson I Montesson, les Yvelines
III. PILOTER UN PROJET
3.1 Réhabilitation de l’Ancienne Gare RER de Massy I Paris Sud Aménagement I Massy
3.2 Office de tourisme Paris Saclay I Paris Sud Aménagement I Massy
3.3 Reconstruction d’une halle de marché et ses abords I Paris Sud Aménagement I Villeneuve-la-Garenne
IV. CONSTRUIRE UNE ARCHITECTURE
4.1 Casa Para la Vida I Bello Oriente I Medellin, Colombie
4.2 EcoSan I Montreuil, Seine-Saint-Denis I ENSAPLV, ENSAB, Association Quatorze
4.3 Reconstruction d’une charpente en bois I Projet indépendant I PyrénnéesOrientales
4.4 Ameublement d’un stodio I Projet indépendant I Paris 20e
PRÉSERVER LES TERRES, CRÉER DU LIEN
UNE
PRATIQUE MARAÎCHÈRE ET DES INITIATIVES CITOYENNES POUR GÉNÉRER DES LIEUX DE SOCIABILITÉ
Projet de Fin d’Étude 2019-2020
Atelier «L’opportunité de la banlieue»
Encadrants : Guillaume Baron et Merril Sinéus
Projet en trinôme
Site : Bidart I Pays basque
I. UN PROJET ÉTUDIANT POUR SOUTENIR UNE DÉMARCHE COLLABORATIVE LOCALE
Ce projet de fin d’étude présente le résultat d’une démarche collaborative menée durant six mois à Bidart. Commune fortement impactée par la forte expansion touristique du littoral basque depuis la fin du XXe siècle, le travail réalisé questionne les aménagements futurs d’un territoire à deux vitesses, entre lieu vie locale et zone touristique en période estivale.
Notre volonté était ici d’intégrer la parole des habitants dans la conception des usages et pratiques des projets développés. Il est important de noter que notre compréhension des enjeux locaux de Bidart est le résultat d’un travail d’enquête et d’observation continu sur le terrain, mais aussi d’échanges et de réunions avec des habitants, des employés municipaux et fonctionnaires à la communauté d’agglomération. De plus, une attention particulière était portée sur un travail auprès d’habitants porteurs d’initiatives locales. Ceux-ci étaient sollicités à la fois comme potentiels porteurs de projet, mais aussi comme acteurs de terrains dont les connaissances nous ont permises de mettre en évidence un travail allant au delà de la simple distinction entre localité et tourisme. C’est notamment à partir de cette rencontre avec les initiatives locales que nous avons observé des volontés citoyennes fortement orientées vers la création de lieux de sociabilités locales et la préservation des terres agricoles.

Carte des dynamiques urbaines et touristiques du littoral basque
LES ÉTAPES DU TRAVAIL COLLABORATIF

COMPRENDRE LA ZAD DE LA GARE ET SES ENJEUX

RASSEMBLER AUTOUR D’UNE ALTERNATIVE À L’ARTIFICIALISATION DES SOLS

LA FERME DÉVELOPPÉE SELON TROIS THÉMATIQUES
TRANSMETTRE ET DÉFENDRE LE PROJET

Production agricole locale, agriculture urbaine
QUI
Partagés Gratuiterie
QUI
& Patrimoine
commanditaires
de réparation
Maison des jeunes
Rassembler Bidart autour d’une ferme maraîchère
Rassembler Bidart autour d’une ferme maraîchère
ferme comme paysage cultivé
ferme comme lieu habité
Collectif de jeunes maraîchers
La ferme comme lieu habité La ferme comme paysage cultivé
La ferme comme lieu habité
sociale et pédagogie La ferme comme équipement public
ferme comme équipement public




ENTRE PÔLE LOISIRS ET ZONE RÉSIDENTIELLE, UN QUARTIER DE L’UHABIA DIVISÉ
EPFL Côte Basque
COMMUNAUTÉ D’AGGLOMÉRATION projettent
aide à l’acquisition du montage de projet défend
Espace sport, loisirs et tourisme
Voie verte Gare
Aménagement résidentiel
propriétaire de 0.9 ha de terrains de la ZAD Ferme permacole

ZAD de la Gare
CAMPING DE LA PLAGE vers
II. COMPRENDRE LA ZAD DE LA GARE ET SES ENJEUX
Notre travail s’est rapidement centré sur l’embouchure de l’Uhabia, zone dont le devenir et incertain, mais dont les aménagements réalisés depuis la seconde moitié du XXe siècle sont révélateurs d’une transition d’un littoral basque anciennement agricole à un littoral urbain et touristique. Dans cette transformation, nous constatons que la zone est marquée d’une part, par la préservation des sols le long d’une voie verte destinée au loisir et tourisme et d’autre part, par un projet d’aménagement résidentiel sur des terrains anciennement agricoles, aujourd’hui captés en Zone d’Aménagement Différé (ZAD).
Or l’urbanisation de ces parcelles agricoles ne coïncide pas avec les projets d’un des propriétaires des terrains de la ZAD, Livio Sasco, qui souhaite implanter une ferme maraîchère en permaculture. C’est notamment face à cette controverse faisant écho au discours de nombreuses initiatives citoyennes locales, que nous avons décidé de questionner le devenir de ces terres. Ainsi, plutôt que d’opposer urbanité et préservation des sols, nous avons problématisé notre travail avec les habitants de la manière suivante : «dans le cas d’un aménagement résidentiel pour la ZAD de la Gare, comment la réhabilitation de pratiques agricoles permet elle de générer des lieux de sociabilité ?»

Agriculture & initiatives citoyennes pour générer des lieux de sociabilité

DOMANIALITÉ, LA PROPRIÉTÉ COMME CONTRE-POUVOIR

Plan de desserte prévu dans le PLU
3.7 ha
Occupation du sol prévu pour la ZAD de la Gare dans le PLU.
Accès de desserte prévu depuis la rue de la Gare.

Les propriétaires privés et leurs positions Une contre pression par le foncier privé
Propriété famille Goyenetche
2.8 ha
0.9 ha
Camping de la plage (1.9ha)
Statut quo tant que l’ancien fermier, Jano Goyenetxe, est propriétaire majoritaire. Absence d’héritier direct. Subdivision des terrains puis captation par les collectivité locale envisagée
Propriété famille Sasco
Se positionne pour reconvertir les terre AU (A Urbaniser) de la ZAD en A (Agricole)
Accès bloqués par la famille Sasco
III. RASSEMBLER AUTOUR D’UNE ALTERNATIVE AGRICOLE À LA ZAD
Les thématiques traitées dans ce travail s’inscrivent dans une temporalité discutée lors d’une première réunion virtuelle de regroupement des acteurs. L’installation d’une ferme maraîchère serait la première étape à entreprendre dans la requalification de ces terrains. Viendrait ensuite l’implantation d’équipements publics maraîchers basés sur la pédagogie et la rencontre, en interaction directe avec le camping voisin existant. Enfin, une forme d’urbanisme permettant de générer du logement social et des espaces partagés liés à des pratiques agricoles pourra être envisagé. L’idée est de ne pas opposer les volontés des acteurs et de la mairie, mais plutôt de proposer une stratégie articulant les intérêts de chacun et montrant les synergies et interactions possibles entre volontés politiques et citoyennes. La déclinaison en trois thématiques de la ferme maraîchère est à penser dans un écosystème global dont les interactions et bénéfices s’intègrent dans une logique d’économie circulaire et de circuit court. Le projet pourrait ainsi fonctionner selon la logique suivante : une SCIC (Société Coopérative d’Intérêt Collectif) posséderait un contrat avec la mairie (future propriétaire des terrains) et cette SCIC serait en sous contrat avec le collectif autour du hameau habité et l’association responsable de l’espace pédagogique et d’insertion (l’équipement public). Enfin, un dernier contrat s’effectuerait avec le collectif des deux maraîchers.
Potager commun
Cantine centrale de Bidart
Bidartars
Touristes
Potagers partagés
Magasin
Hangar
LE HAMEAU
21 logements
2 maraîchers
Obser vatoire
LE PARC MARAÎCHER
Serres et blocs de culture
1 - La ferme comme paysage cultivé
Principe : Préservation maximale de l’espace cultivable en parc paysager
- Emilie Mendiboure
2- La ferme comme équipement public
Principe : Implantation d’un équipement public en lien avec le camping et le quartier - Alexandre Hum
Structure associative
Jardin d ’insertion
EQUIPEMENT
PUBLIQUE CAMPING DE LA PLAGE
Bar coopératif
Jardin pédago-gique
Bénéficie de Entraide

3 - La ferme comme lieu habité
Principe : Réhabilitation et extension du corps de ferme existant - Solène Tremblay





Schéma des hauteurs de végétation
Parcours maraîcher
Cabanon
Observatoire
Hangar
Copropriété
Rue de la gare
Blocdeculture
Mare auxaromates Serres
Le cabanon observatoire
Bloc de culture
AccèsruedelaGare
Verger
Accèsdepuisle lotissement

Schéma d’organisation du parcours
Camping de la plage Copropriété

Blocdeculture
Blocdecueillette
Vergercueillette
Accèsdepuislecamping
LA FERME COMME PAYSAGE CULTIVÉ
La ferme comme paysage cultivé traite du rapport de la production maraîchère au territoire. Cette production agricole est envisagée comme un parc ouvert où peuvent s‘initier des usages et pratiques liés à des espaces publics. L’élaboration du projet s’est effectuée en deux phases : dans un premier temps, la conception du paysage cultivé avec l’assolement de la ferme maraîchère et la définition d’une intention paysagère et dans un second temps la projection de pratiques et usages publics en pensant la publication de cet espace agricole. La forêt jardin articule un parcours à la fois pour le maraîcher et les habitants dans un paysage nourricier. Ainsi, le parc maraîcher marque le passage d’un paysage forestier à un paysage agricole et connecte la rue de la gare au camping de la plage et hameau résidentiel autour de l’ancien corps de ferme. Différents points d’arrêt sont proposés : des espaces ouverts de plein air et un cabanon observatoire où les habitants peuvent pratiquer un espace ouvert couvert en rez de chaussé quand celui-ci n’est pas occupé par le maraîcher ou profiter des différents points de vue qu’offre le cabanon. Le maraîcher lui trouve ses points d’arrêt également au niveau du hangar maraîcher ou du cabanon pour stocker ou bricoler.
LE HANGAR MARAÎCHER

Récupérateur d’eau de pluie
Espace de lavage 10m²
Chambre froide 25m²
LE CABANON OBSERVATOIRE
Stockage outils 25m² Hangar 144m²
Serre à semis 196m²
Axonométrie du hangar maraîcher et des serres adjointes

Coupe transversale de l’appréhension des différentes strates végétales
CULTIVER
Jardin pédagogique

SÉQUENÇAGE DES ESPACES CULTIVÉS - DU MINÉRAL AU VÉGÉTA L
Serre pédagogique
SE DIVERTIR / SE RASSEMBLER
Café associatif
Modules autoconstruits (serre à semi, abris couvert, cabane à outils) Serre pédagogique
CONSOMMER LOCALEMENT
Espace de vente directe pour le maraîcher
Épicerie locale ouverte à l’année
Café associatif

Camping de la plage
Aire de jeux
Équipement associatif
Usages courants - Se restaurer / cultiver
LA FERME COMME ÉQUIPEMENT PUBLIC
La thématique de la ferme comme équipement public renvoie à la volonté portée avec les habitants de concevoir la pratique agricole comme le support de lieux de sociabilité, en intégrant ce site dans une urbanité plutôt que de le sanctuariser. De plus, la situation enclavée du site de la ZAD ainsi que sa proximité avec le camping de la plage, nous a mené à intégrer ce dernier à notre réflexion. Il s’agit donc ici d’envisager l’équipement public comme un lieu faisant entrer en dialogue pratique maraîchère, activité touristique et lieu de rencontre pour les habitants.
Usages ponctuels - Se rassembler / transmettre
Pour mener à bien ce travail, une concertation a été effectuée dans un premier temps avec un groupe d’habitants afin de définir les éléments programmatiques à intégrer dans cet équipement. Suite à cet échange, trois grands éléments programmatiques ont émergé: un café associatif envisagé comme espace de reliance sociale, un espace pédagogique et un espace dédié à la vente de produits locaux. Dans un second temps, la spatialisation de ces éléments programmatiques - dans une logique d’interaction entre la ferme et le camping - a été le sujet d’échanges avec le propriétaire du camping en question. Finalement, à travers la visite de jardins pédagogiques et des échanges avec l’association Bio Divers Cité, nous avons défini des principes d’organisation spatiale de cet équipement pédagogique.
L’équipement s’articule autour d’un jardin en continuité avec le paysage arboré qui l’entoure, et les espaces construits se déclinent sous deux typologies. D’une part un corps de bâtiment modulable consolide un noyau associatif, et d’autre part, des modules légers pensés en autoconstruction ponctuent le jardin.
Usages ponctuels - Art et divertissement
Module cabane à outils
Module serre
abris



Outils de jardinage
Parking
Un plan de rez-de-chaussée qui organise la vie commune autour d’une cour centrale
Cour centrale
T5-c (Duplex) - haut
La thématique de la ferme comme lieu habité est l’occasion de penser la réhabilitation de l’ancien corps de ferme en logement et la constitution d’un hameau autour des notions d’agriculture et d’espaces partagés. L’enjeu de ce projet est d’inventer avec les habitants un modèle d’architecture démontrant l’intérêt à condenser et densifier le logement autour du bâti existant plutôt que continuer l’artificialisation de terres cultivables. Il s’agit donc ici d’inventer une architecture que les Bidartars puissent s’approprier, qui réponde à l’architecture du corps de ferme existant et à l’architecture néo basque qu’ils défendent, mais aussi une architecture inscrite dans son époque, qui réponde aux modes de vie, aux évolutions techniques et aux enjeux écologiques actuels. Ici les bâtiments organisent une forme de «hameau» concentrique, qui permet de créer une cour centrale. Le hameau offre une terrasse couverte qui dialogue avec l’espace extérieur commun piéton et la salle commune. De plus, les plans du hameau ont été dessiné, avec pour objectif de définir un plan général puis des typologies qui soient les plus souples possibles.
T5-c (Duplex) - bas
TYPOLOGIES ET USAGES FLEXIBLES SUR UNE TRAME DE 6X12M
REDYNAMISATION DE LA HALLE DES GRÉSILLONS
UNE
PROGRAMMATION OUVERTE SUR LE TEMPS LONG
Projet piloté au sein de Paris Sud Aménagement
Rôle : Maîtrise d’ouvrage I Chargé d’opérations
Site : Gennevilliers I Hauts-de-Seine
I. RÉACTIVER UN PATRIMOINE ENDORMI POUR REDYNAMISER UN QUARTIER
Le projet de réhabilitation et réouverture de la Halle des Grésillons s’inscrit dans un programme plus large de redynamisation de «l’îlot Gandhi», espace urbain progressivement déserté depuis les années 2000. Pour ce faire, la démarche de projet emprunte des méthodes théorisées par l’association Notre Atelier Commun à travers sa démarche de la Preuve Par 7. L’objectif est alors de mettre en évidence une approche expérimentale de projet permettant une appropriation progressive de l’espace par ses occupants via une programmation ouverte. Des démarches de concertation et d’exploitation temporaires du lieux sont alors mises en place afin de tester les possibles et anticiper les questionnements liés à la pérennisation d’une future exploitation.
Pour que cet équipement public participe activement à la redynamisation de son quartier, il est alors proposé une programmation ouverte orienté sur 3 axes principaux : la mise à disposition d’espaces de travail pour des porteurs de projets locaux (associations, petites entreprises, artistes et autres), la création d’un espace traversant intérieur-extérieur permettant un désenclavement du site, la mise à disposition de cet espace central pour l’accueil d’événements organisés par la ville et/ou les occupants.
Fermeture Halle des Grésillons
Phases du projet
2004 Arrivée de la Preuve par 7
2018
Occupations et expérimentations
Etudes aménagements intérieurs
Fevrier 2023
PSAm désignée MOA déléguée
Exposition «Trésors de Banlieues»
Travaux mise aux normes
Nov 22 - Avril 23
Événements de préfiguration
Travaux aménagements intérieurs
Janv. 23
Occupations temporaires
2021

Propriétaire
Délègue
2019
Etudes projet mise aux normes
Janv. 2022
Journée Nationale de l’architecture
2021
Réouverture de la Halle
Mars 23
Occupation saison 01

Accompagnement concertation / programmation


Permanance
Accompagne

Étude occupation temporaire et modèle d’exploitation

MOE mandataire aménagement intérieurs
MOA déléguée
Mandate

MOE mandataire projet mise aux normes
Accompagne

Préventionniste sécurité incendie



II. LA PERMANENCE COMME ESPACE DE CONCERTATION POUR UNE INTELLIGENCE COLLECTIVE
Dans le but d’ancrer le projet dans son territoire et en saisir les subtilités, Paris Sud Aménagement investit la «Maison des projets». Il s’agit d’une permanence ouverte aux habitants du quartier et porteurs de projets locaux, dans laquelle sont organisées rencontres, ateliers et événements, permettant aux futurs usagers d’expérimenter le site et d’être force de proposition. Mettre en place une présence sur site permettant de faire lien entre les différents acteurs du projet s’est révélé être une nécessité. Celle-ci permet de construire sur site une synergie entre les différents acteurs impliqués et de faire lien avec l’environnement existant.

III. LES ENJEUX DE LA RÉHABILITATION
La mise en réflexion autour d’une programmation ouverte répond à une ambition, mais également à la réalité du site. La Halle des Grésillons, ancienne salle des fêtes puis halle de marché, ferme ses portes en 2004. Celle-ci perd son statut d’ERP et ouvre des questionnements quant à son devenir.
Concernant le programme des travaux, la complexité provient de l’histoire et de la situation de la Halle. Patrimoine construit dans les années 1980 et élément constitutif d’un ensemble bâti imbriqué avec le théâtre du T2G et l’actuel marché des Grésillons, les contraintes normatives sont nombreuses. La synergie entre le travail de concertation et celui de la réhabilitation met donc en évidence deux grands questionnements : quels programmes en cohérence avec son quartier et ses habitants la Halle peut-elle accueillir ? Quels travaux sont possibles et sous quel phasage pour permettre une occupation et une pérennisation de l’exploitation de la Halle ? Comment concevoir des travaux frugaux, mais cohérents et sous quel phasage pour permettre une occupation et une pérennisation progressive de la Halle ?
L’objectif étant de créer deux types d’espaces supports (un grand espace central, et des cellules aménageables), la stratégie adoptée fut celle d’organiser les travaux sous deux phases. La première consistant en une remise aux normes de l’enveloppe bâtie afin de redonner à la halle un statut d’ERP ; ici de halle culturelle (type Y) et sportive (X). La deuxième phase consiste en la construction des cellules intérieures, soit des sous-ERP de type bureaux (W), local associatif (L) et administratif (R).


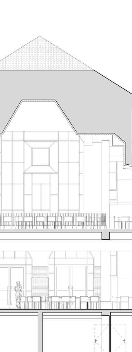
Aperçu de la Halle des Grésillons après travaux de mise aux normes en ERP X et Y
remplacement par des châssis de désenfumage pour création d'une entrée d'air neuf : Surface VB = 28.33m² surélévation de la verrière sur deux parties pour création d'un désenfumage naturel permanent Surface VH verrières : 45m²
Remplacement et surélévation de la verrière - création d’un désenfumage naturel permanent
Remplacement des vitrages existants par des châssis de désenfumage


Projet aménagements intérieurs - Perspectives réalisées par YA+K
Locaux divers 30m²-69m² (ERP type L,R,W)
Local commun 55m² (ERP type L)
Hall central (ERP type Y)
Réemploi container in situ
IV. LA HALLE COMME
Les aménagements intérieurs ont été conçus de sorte à répondre à une urbanité qui s’est progressivement dégradé autour de l’îlot Gandhi depuis la fermeture de la Halle. En effet, la Halle joue un rôle de pierre angulaire au sein d’un patrimoine bâti imbriqué. De ce fait, depuis sa fermeture et à l’exception du T2G jouissant d’une situation privilégiée, les différents composant de l’îlot Gandhi se sont vu progressivement déserté ; baisse de fréquentation du marché, disparition des commerces en rez-de-chaussée sur la place Indira Gandhi, perte d’usages permettant de créer une centralité sur la place Indira Gandhi.
Pour que le projet redonne à la Halle le rôle de liant urbain, il a été décidé d’y intégrer le concept de rue couverte. Les cellules aménageables disposées de part et d’autre de la Halle dessinent un grand espace centrale faisant lien entre l’entrée du T2G et la place Indira Gandhi. Sont également envisagées des phases postérieures de travaux tel que la création d’espaces mutualisés avec le marché et la requalification de l’entrée du T2G.
éclaté - Un espace de travail Surface = 30m² Panneaux de polycarbonate alvéolaire transparent
Cellules neuves
Panneaux polycarbonate alvéolaire transparents
OSB 18mm Iso. laine de coton
Panneaux bardage monobloc Ossature bois
Câblage
porte vitrée
Plancher douglas
Local commun 55m² (ERP type N)
Projet aménagements intérieurs - Plan réalisé par YA+K

Composition des cellules aménageablesAxonométrie réalisé par YA+K
plancher Ossature plancher
« TOITS TEMPORAIRES URBAINS »
CONCOURS POUR UN APPEL À PARTENARIAT D’INNOVATION
Concours remporté au sein de l’agence Alt Extraits du dossier de concours réalisé en mai 2021
Sites multiples
I. CONTEXTE DU PROJET ET PRÉSENTATION DE SES ENJEUX
Le projet «Toits Temporaires Urbains» (TTU) est un appel à partenariat d’innovation pour la construction de «Bâtiments Mobiles et Modulables» (BMM). Commandité par un groupement représenté par la Société Immobilière des Chemins de fer Français (SICF), le projet vise à proposer des structures dédiées à la revitalisation de terrains nus ou partiellement bâtis. Pour cela, les structures proposées sont démontables, déplaçables et réemployables. De plus, ces structures répondent à trois programmes distingués: un programme de logements (type A), un programme d’hébergement (type B) et un programme de bureau (type C). Ainsi, le système conçu a pour enjeux d’anticiper des transformations permettant d’une part de s’adapter à plusieurs sites, et d’autre part de transformer les usages du bâti.
Pour répondre à ce projet, l’agence alt s’est associée à un groupement représenté par l’entreprise mandataire Selvea, spécialisée en construction modulaire bois. Ce groupement intègre donc une diversité de corps de métier ; bureaux d’études (acoustique, structure, environnement), agences d’architecture et entreprise de construction. C’est donc par le biais d’un travail collaboratif entre un ensemble d’acteurs du bâtiment que nous sommes parvenu à présenter un système constructif en modulaire bois 3D.
Perspective d’un assemblage « rationnel » pour un programme de type A Réalisée par l’agence Virtuel

EXEMPLE DE CONFIGURATION POSSIBLE POUR UN PROGRAMME DE LOGEMENT (TYPE A)
Documents réalisés en collaboration avec l’agence Virtuel
II. RÉVERSIBILITÉ ET ADAPTABILITÉ AUX SITES
Une grande plus-value du système que nous proposions résidait dans la configuration en double carré des modules. Ceux-ci permettaient de réaliser des assemblages en tatami pour générer une diversité de typologies et volumétries. Cela nous permettait ainsi de démontrer deux choses; d’une part, la capacité de produire des formes urbaines très variées à partir de mêmes modules, et d’autre part, de répondre aux enjeux de réversibilité en démontrant la possibilité de produire des bâtiments répondant aux divers programmes. Nous avons poussé ce travail au point de démontrer qu’avec exactement les mêmes modules nous pouvions générer plusieurs formes de bâtiments répondant au programme type B, mais aussi pouvant devenir des programmes type A et C.
Afin d’illustrer le potentiel de notre système à générer une grande diversité de formes urbaines, nous avons réalisé des scénarios d’implantation sur quatre sites proposés par l’équipe mandataire. Ces différents sites présentent des contextes bien distincts et nous permettaient de mettre en exerce la flexibilité de nos modules
ASSEMBLAGES RÉALISABLES À PARTIR DE MODULES IDENTIQUES
Forme initiale
Programme type B
Recomposition 1
Programme type B
Recomposition 2
Programme type A
Recomposition 3
Programme type C
Composants invariant des modules
CONCEPTION DES MODULES
Variation des éléments de toiture
Composition toiture
Variation des éléments de façade
Variation toiture terrasse
Composition façade
Variation des ouvertures
CONCEPCIÓN ALTERNATIVA DE VIVIENDA
RECONSTRUCTION POST-SÉISME DE SAN LUIS TLAXIALTEMALCO
Cours modulaire à la UAM Xochimilco
Master 1 - Semestre 8
Encadrants : Jorge Andrade et Luis Andrade
Projet individuel
Site : San Luis Tlaxialtemalco - Xochimilco I Ciudad de Mexico
I. UN PROJET QUI S’INSCRIT DANS UNE SITUATION D’URGENCE AU MEXIQUE EN 2017
Ce projet effectué lors d’un échange universitaire à la Ciudad de Mexico fait écho à un contexte bien particulier au Mexique. En effet, en septembre 2017, le pays est touché par deux séismes ayant pour conséquence de graves dégâts humains et matériels.
Dans ce contexte, j’ai intégré le TAVI (Taller de vivienda), un atelier universitaire impliqué dans la réponse à des problématiques réelles et spécifiquement liées à la production d’habitats dans les quartiers qualifiés «irréguliers». Ainsi, dans ce contexte d’urgence, le travail sur le terrain effectué avec le TAVI s’inscrit dans un réel positionnement politique, notamment en posant un requestionnement quant aux manières de produire et de concevoir l’habitat dans ces quartiers. Il s’agissait alors de présenter des solutions alternatives aux programmes gouvernementaux qui, selon les directeurs de l’atelier, ne répondent ni à la réalité socio-économique des habitants, ni à leur manière d’habiter le territoire. Pour répondre à cela, l’atelier poursuit la notion de «vivienda en proceso», un processus participatif lié au concept d’architecture progressive expérimenté pour la première fois par le TAVI dans un contexte similaire en 1985.
ÉLÉMENTS PAYSAGERS STRUCTURANT DU TERRITOIRE - LES CHINAMPAS DE XOCHIMILCO


SAN LUIS TLAXIALTEMALCO IMPACTÉ PAR LES SÉISMES DE 2017



PROGRAMME DE RECONSTRUCTION DU GOUVERNEMENT



TAVI - «VIVIENDA EN PROCESO», UNE MÉTHODE ALTERNATIVE

Page de gauche (de haut en bas):
- Chinampas, des radeaux flottant traditionnels de Xochimilco.
- Photographie personnelle lors du visite de San Luis Tlaxialtemalco
Page de droite (de haut en bas):
- Projet du programme de reconstruction postséisme à Xochimilco par la fondation Carlos Slim et le gouvernement de la CDMX.
- Projets antécédents du TAVI suivant la méthodologie de «vivienda en proceso» à Xacalli en 1998 et Cohuatlàn en 1975.

II. PROPOSER UNE ALTERNATIVE
L’implication du TAVI dans le pueblo de San Luis Tlaxialtemalco en 2017 s’inscrit dans le prolongement de recherches antérieures menées par l’atelier et ayant conclu à l’écriture de trois thèses de recherche traitant du contexte écologique de Xochimilco, du contexte socio-économique de ses habitants et du rapport habitant-habitat . C’est notamment en basant nos travaux sur ces sources d’information que nous avons eu pour objectif de proposer aux habitants un processus alternatif pour la reconstruction de leurs habitats suite aux séismes. De plus ce projet a été pensé dans le cadre d’un enseignement modulaire spécifique à l’UAM Xochimilco. Par conséquent nous avons, autour de ce projet de conception d’habitat progressif, mené une réflexion porter sur; le contexte sociologique des habitants et son incidence sur la manière dont se construisent leurs habitats, les moyens constructifs pouvant être appliqués en adéquation avec les traditions locales et le contexte géographique du site, ainsi que sur les systèmes d’installation sanitaire pouvant être employés. Par conséquent ce système d’enseignement modulaire avait ici l’avantage de nous permettre de restituer aux habitants des dossiers se voulant les plus complets possible en l’espace d’un trimestre.
Planos Estructurales
PRINCIPE STRUCTUREL
Couverture en tuile de terre cuite
Charpente bois avec isolation
Planos Estructurales
Plan de sous-face du R+1
Plan de sous-face du RDC
Réseau eaux usées
Réseau eau froide
Réseau eau chaude
INSTALLATION SANITAIRE
Mur à ossature bois
Solive bois de type pin (10x15cm)
Poutre en béton armé (15x30cm)
Mure en brique d’adobe (type pisé) de 6x12x25cm.
Finition en terre et peinture blanche (int. et ext.)
Dalle en béton armé
Fondation en «piedra braza» (type cyclopéenne)
ÉTAPE 1
CONCEPTION DES ESPACES ÉVOLUTIFS

ÉTAPE 2 ÉTAPE 3




DE/S MONTESSON
DES CITÉS DES CHAMPS EN LISIÈRE DE PLAINE
Cours de projet
Master 2 – Semestre 9
Encadrants: Agnès Lapassat et Michel Hoessler
Analyse urbaine en groupe de quatre et projet individuel
Site: Montesson I Les Yvelines
Ce projet porté sur la commune de Montesson pose un questionnement sur la notion de sites dit «peri-urbains» ou «peri-ruraux». En effet, ce territoire ayant pour particularité d’être composé d’une grande plaine agricole maraîchère en son centre et d’un tissu urbain épars en périphérie, celuici pose la question du dialogue entre espaces urbains et agricoles. Bien que ces derniers côtoient un même territoire, il n’en demeure pas moins que ceux-ci se tournent le dos. Aujourd’hui la plaine agricole de Montesson fait face aux problématiques de spéculation foncière sur les parcelles originellement considérées comme agricoles, posant ainsi un enjeu quant à la préservation de la plaine et de ses pratiques. Ici, le travail effectué à l’échelle de la commune questionne donc la stratégie pouvant être adopté afin de préserver la plaine et envisager une interaction entre espaces agricoles et bâtis. Pour cela nous avons choisi de nous intéresser aux espaces dit «délaissés» - généralement d’anciennes terres agricoles en attente de revente pour des lots immobiliers - comme espaces privilégiés pour imaginer des alternative d’urbaines. Suivant cette intention, chaque membre du groupe de travail s’est intéressé spécifiquement à un espace de transition, ce qui nous a permis de traiter quatre formes de dialogue entre agriculture et urbanité. Ces quatre propositions tendent à voir le schéma de l’étalement urbain de manière inversée, à savoir; comment concevoir une intégration des espaces agricoles vers les espaces bâtis, plutôt que d’envisager l’empiétement des espaces bâtis sur d’anciennes parcelles agricoles ?
Page gauche - Investir les espaces délaissés
1. Quatre territoires étudiés, quatre identités.
2. Investir de nouveaux espaces autour d’une identité partagée, à l’intersection des espaces urbanisés et la plaine agricole de Montesson.
Page droite - Master Plan
3. Stratégie urbaine.
4. Vue axonométrique du territoire.
2.










Morcellement du territoire en identités distinctes la plaine agricole, la Seine, les espaces naturels et les zones urbaines.
Des villes qui envahissent peu à peu la plaine agricole par l’appropriation des espaces délaissés.
Redéfinition d’espaces délaissés en lieux de rencontre et de pratiques alternatives urbaines et agricoles.
Émergence d’identités spécifiques à chaque entre-deux.
Extension de l’identité de la plaine via les espaces de transition.

Les délaissés
Urbanité
DE LA PLAINE AU LOTISSEMENT
Ce travail traite d’un site juxtaposé au lotissement «Terre Blanche» et faisant face à la pression d’une potentielle extension de ce dernier. Il s’agissait ici de questionner la notion du vivre ensemble dans la manière dont sont conçus ces lotissements, en suggérant une alternative tirant profit d’une commune centrée sur la pratique agricole comme plus-value pour offrir une certaine qualité de vie.
À travers ce projet il a donc été imaginé un équipement positionnant le lotissement comme un potentiel lieu de vie, en proposant un programme faisant interagir milieu associatif, habitants et agriculteurs. Tous ces éléments programmatiques sont traités suivant un principe de modularité de sorte à permettre aux usagers d’avoir un impact sur le lieu qu’ils habitent. À cela s’ajoute un questionnement sur l’habitat en lui-même en proposant des logements pour agriculteurs basés sur un principe de progressivité et donc adaptables à la situation des habitants.

AGRICULTURE / PERMACULTURE
AGRICULTURE PERMACULTURE
AGRICULTEUR KIOSQUES MARCHE
AGRICULTEURS KIOSQUES / MARCHÉ
HABITANTS LOGEMENT STOCKAGE
/
RECYCLERIE

Axonométrie générale - spatialisation du programme
LA HALLE HABITÉE

Coupe longitudinale de la halle habitée

Coupe transversale - structure de la halle Principe constructif des modules manuportables






Logement 1 : Couple sans enfants.
Logement 2 : Couple et un enfant.
Logement 3: Colocation de deux personnes.




profite donc pour installer un jardin d’hiver. De plus, le père de famille est à présent en télétravail. Il lui faut donc un bureau.
Logement 2 : La famille s’agrandit, une troisième chambre est aménagée à l’étage. Une pièce est alors utilisée comme bureau. La famille étant nombreuse, ils décident de construire une extension du séjour.
Logement 3: Une chambre d’amis pouvant servir de bureau est aménagée.
Logement 4 : Le couple a un enfant, ils aménagent une chambre supplémentaire.
TRANSFORMATION DE L’ANCIENNE GARE DE MASSY
RÉHABILITER UN PATRIMOINE
REMARQUABLE
Projet piloté au sein de Paris Sud Aménagement
Mission : Maîtrise d’ouvrage I Chargé d’opérations
Site : Massy I Essonne
I. TRANSFORMATION D’UN PATRIMOINE REMARQUABLE EN ÉQUIPEMENT ANCRÉ DANS SON TERRITOIRE
La transformation de l’ancienne Gare RER de Massy met en évidence la complexité de réactiver un patrimoine remarquable endormi. Ce bâtiment, marqué par un style Art Déco imaginé par l’architecte Louis Brachet, constitue un patrimoine remarquable de la ville de Massy. Bien que non protégé au titre des monuments historiques, sa présence au sein du quartier Atlantis est un marqueur historique de la ligne de Seaux et du passé industriel du quartier. C’est à ce titre que nous avons inscrit ce patrimoine au label patrimoine d’intérêt régional d Île-de-France.
Ce label est marqueur de la subtilité du projet, résidant dans la volonté d’offrir de nouveaux usages à ce bâtiment tout en préservant son identité architecturale. En 2020, Paris Sud Aménagement et la ville de Massy décide d’intégrer l’Ancienne Gare dans une démarche de redynamisation de l’entrée de ville de Massy en y proposant une programmation de tiers lieux culturel. Dans un souci d’allier la conception aux futurs usages, les futurs occupants sont sélectionnés sur la même temporalité qu’Olivier Palatre, architecte en charge de la réhabilitation. Le programme imaginé à l’issue d’échanges entre maîtrise d’ouvrage, maîtrise d’œuvre et occupant repose sur une offre principal de restauration, autour de laquelle s’articule un espace événementiel, une salle de conférence et un espace de fab-lab.
A l’image de nombreux tiers-lieux, la flexibilité des usages est privilégiée, en proposant un plan libre préservant la géométrie singulière des espaces existants, ainsi que les éléments décoratifs d’origine.



Lié par une Convention d’Occupation Temporaire

Propriétaire de l’Ancienne Gare

MOA des travaux de réhabilitation / exploitant principal du futur bâtiment
Lié par une sous-Convention d’Occupation Temporaire

Futur occupant de l’Ancienne Gare

MOE mandataire pour le projet de réhabilitation









OFFICE DE TOURISME PARIS SACLAY
Projet piloté au sein de Paris Sud Aménagement
Rôle : Maîtrise d’ouvrage I Chargé d’opérations
Site : Massy I Essonne
Dans la continuité du projet de transformation de l’Ancienne Gare RER (cf. page 46), la construction de l’office de tourisme fait partie intégrante de la redynamisation de l’entrée de ville de Massy. La volonté pour ce projet fut de concevoir un bâtiment signal, dont la singularité repose sur son mode constructif. C’est dans cette approche que l’agence Lanod a conçu un bâtiment en brique de terre crue (BTC) porteuse et charpente bois. Les espaces sont conçus de concert avec la programmation souhaitée par l’office de tourisme de la communauté d’Agglomération Paris Saclay. Il s’agit d’un programme relativement simple, intégrant un grand espace d’accueil, un espace de repos pour le personnel et des bureaux en mezzanine.




































Insertion du projet au sein du pôle des Gares de Massy
Panne lamellé collé sapin
Panne en lamellé collé sapin
Toiture métallique
Toiture métallique au profil ondulé, finition en acier galvanisé18 mm
Iso. laine de bois + sous-plafond
Isolant laine de bois 220 mm + Sous plafond en laine de bois 15mm, non demontable, fixation mécanique invisible
Façade opaque : - Tôle acier galvanisé
- Isolant laine de bois
Main courante en sapin
- Intérieur contreplaqué
béton Solives sapin
Fenêtre de toit motorisée
Façade translucide : - Polycarbonate alvéolaire en applique sur tasseaux de bois
Poteaux en sapin
Poteaux en sapin
Murs porteurs en BTC : - Iso. laine de roche
- Pare-pluie + lame d’air
- Parement extérieur en brique de réemploi
Soubassement en béton
Poutre sapin
Bavette en acier
Menuiseries fixes
Façade opaque :
- Tôle acier
galvanisé
- Isolant laine de bois
- Intérieur contreplaqué
Escalier en sapin
Poteaux en sapin
Façade translucide :
- Polycarbonate alvéolaire en applique sur tasseaux de bois
Murs porteurs en BTC :
- Iso. laine de roche
- Pare-pluie + lame d’air
- Parement extérieur en brique de réemploi
Cloisons coupefeu 1h + portes coupe-feu 30 min
Murs intérieurs en BTC
Espace personnel
Revêtement de sol en brique de réemploi
Menuiseries fixes Salle
Poteaux en sapin
Accès principal
RECONSTRUCTION D’UNE HALLE DE MARCHÉ
Projet piloté au sein de Paris Sud Aménagement
Mission : Assistance à maîtrise d’ouvrage I Chargé d’opérations
Site : Villeneuve-la-Garenne I Hauts-de-Seine
Pour ce projet, Paris Sud Aménagement accompagne la ville de Villeneuve-la-Garenne pour la programmation et la conception de sa future Halle de marché. Pour sa nouvelle Halle, la ville souhaite un bâtiment à l’identité architecturale forte. L’agence Atelier du Pont a été sélectionnée en proposant une Halle oblongue en charpente bois, et une requalification des espaces urbains.
Le programme comprend la destruction de la Halle existante, la construction d’une Halle de marché intégrant deux locaux commerciaux, la construction d’un parking souterrain, la transformation de la rue Gaspart Appert longeant la Halle et en interface avec la rotonde voisine, la requalification du parvis extérieur et la création d’un parking extérieur.
De par l’emprise importante du projet, un grande part de complexité repose sur la gestion de nombreuses interfaces ; traitement des espaces mutualisés avec les emprises voisines, gestion des emprises foncières, dévoiement des réseaux, etc. En cela, le rôle de la maîtrise d’ouvrage est ici essentiel dans la gestion d’un organigramme particulièrement étendu des différents acteurs environnant le projet.



Création d’un parking extérieur
Construction d’une nouvelle
Halle de Marché + parking souterrain
Requalification du parvis extérieur
Nivellement de la rue Henri Barbusse Local technique

Requalification de la rue Gaston Appert

CASA PARA LA VIDA
Association Batipode
Site : Bello Oriente I Medellin, Colombie
Batipode est une association créée pour expérimenter des modes de conception et de construction participatifs en promouvant une architecture locale et écologique. C’est dans cet objectif que le projet Casa Para la Vida a accompagné la création de l’association. Ce projet a émergé d’un travail de recherche sur le site de Bello Oriente, mené par la doctorante Victorine Dréau (membre de Batipode) et d’une nécessité portée par les habitants de construire une maison de santé dans leur quartier.
Le projet Casa para la vida est le fruit de deux ans de travail pour le portage, la conception et la construction du bâtiment. Le travail de concertation, à la fois contrainte et nécessité, fut un paramètre indispensable pour créer un projet ancré dans son territoire, tant dans ses usages que dans sa matérialité. Durant un an et demi, Batipode s’est donc investi dans un travail de conception à travers de nombreux échanges avec les habitants de Bello Oriante, ainsi qu’avec des artisans et architectes de Medellin. Cette première phase fut également dédiée à la collecte de fonds pour le financement du projet, porté directement par Batipode. La seconde phase fut dédiée, quant à elle, à la mise en place dans chantier école sur site pour la construction du projet. Pour ce dernier Batipode a fait appel à des artisans colombiens pour l’encadrement du chantier ainsi qu’à des bénévoles locaux (habitants et universitaires) et internationaux.
Les principaux besoins exprimés par les habitants ont posé la nécessité de créer un espace d’accueil pour la santé (médecine préventive et premiers secours) et d’aide sociale. Dans l’organisation programmatique du bâtiment cela s’est traduit par la création de trois types d’espaces : un espace de consultation pour les patients, une grande salle polyvalente et appropriable par les habitants, et un jardin dédié à la culture de plantes médicinales.
Pour les modes constructifs, à l’exception d’un soubassement en béton, l’accent a été porté sur l’usage de matériaux et de savoir-faire locaux. D’une part, dans l’objectif d’adopter une approche écologique et économique, mais également pour donner sens au chantier école. La structure principale a donc été réalisée en guadua (bambou endémique de la région) avec un enduit en terre crue.





ECOSAN
Cours de Projet
Licence 1 – Semestre 1
Encadrants : Emmanuel Mourier - Benjamin Dias Lino
Site : Camp de Roms à Montreuil I Île de France
Concepteurs : Groupe de projet de 1ère année de licence (ENSAPLV), Groupe d’intensif construction en 3ème année de licence (ENSAPB), Association QUATORZE
Réalisé dans le cadre d’une première année de licence, ce projet démontre avant tout la possibilité pour de jeunes étudiants de s’impliquer dans une démarche concrète. Il s’agissait ici de réaliser une construction à échelle humaine dans un site précis - avec des contraintes et des habitants qui lui sont propre - et cela à travers un travail collaboratif mené avec des acteurs de terrains, ici représentés par l’Atelier Quatorze.
La nature même du projet étant d’offrir un équipement pour une communauté vivant dans des conditions difficiles, il s’agissait ici de concevoir une structure avec la meilleure économie de matière possible, tout en permettant une certaine diversité d’usages. Ainsi, le projet étant constitué de deux modules sanitaires séparés d’un espace central ouvert, cela permet dans son contexte, non seulement d’offrir une meilleure condition de vie aux habitants en termes de salubrité, mais aussi de créer un lieu de vie communautaire. Finalement afin de ne pas empiéter sur la vie quotidienne des habitants sur une longue période, le projet a été préconstruit dans la cours de l’ENSAPB, puis remonté directement sur le site. Il s’agit donc d’une structure démontable qui se veut la plus simple possible, et accessible aux habitants.

Page gauche
- Aperçu de la structure pré-montée / pré-construite dans la cour de l’ENSA Paris Belleville.
Page droite
- Montage de la structure sur site..
- Schéma de montage de la structure.






Pré-fabrication et pré-montage dans la cours de l’ENSA Paris Belleville
Étape 1
Pose des plots
Démontage et remontage sur site
Étape 6
Pose de la toiture
Étape 2
Pose du platelage bois
Étape 3
Pose des premiers modules d’angle en ossature bois
Étape 5
Pose de façade et bardage bois extérieur
Étape 4
Pose de façade et cloisonnement intérieur
RECONSTRUCTION D’UNE CHARPENTE BOIS
Projet indépendant
Mission : Conception I Construction
Site : Domaine I Pyrénées-Orientales
Projet de reconstruction d’une charpente bois pour la création d’un espace de dégustation au cœur du domaine Paul Meunier dans les Pyrénées Orientales.

Aperçu de la grange avant réhabilitation



Assemblage de l’arbalétrier


AMMEUBLEMENT SUR MESURE D’APPARTEMENT
Projet indépendant
Mission : Conception I Construction
Site : Paris 20e
Création de mobiliers sur mesure en contre-plaqué pour un studio de 25 m² à Paris.

Planches contre-plaqué en bouleau