BA (HONS) ARCHITECTURE - PORTFOLIO 2022
LIVERPOOL JOHN MOORES UNIVERSITY
SCHOOL OF ART AND DESIGN


![]()
LIVERPOOL JOHN MOORES UNIVERSITY
SCHOOL OF ART AND DESIGN



I’m an architecture graduate July 2022 from Liverpool John Moores University with a strong passion for designing functional, community-driven spaces that enhance user experiences. My architectural journey has been fueled by a commitment to problem-solving, creativity and continuous learning.
Proficient in various architectural software’s, I enjoy pushing my creative boundaries to develop innovative design solutions. During my 2nd year, I served as a year representative, strengthening my leadership and communication skills by voicing student concerns in board meetings, during the challenges of online blended learning during lockdown.
Beyond architecture, my experience in real estate as a clerk has refined my attention to detail, client relations, and professional presence. Conducting property inspections and viewings for sales and lettings has enhanced my ability to assess spaces critically and understand client needs.
• 2019 - 2022 Liverpool John Moores University:
BA (Hons) Architecture = (Grade 2:1)

• 2016 - 2019
Newcastle College:
Level 3 National Extended Diploma in Mechanical Engineering = (Grade DDD)
Level 2 General Engineering = (Grade Double Distinction DD)
GCSE Maths = (Grade C)
• 2011 - 2016 Mortimer Comprehensive College:
English = (Grade C)
Product Design = (Grade C)
Level 2 ECDL in IT Application Skills QCF = (Grade Distinction D)
• DESIGN AutoDesk AutoCAD AutoDesk Revit



Location:
Liverpool, Merseyside, UK
Email: archiportfolio26@gmail.com
LinkedIn:
linkedin.com/in/ahmad-abdulqadir-416b98185/

Instagram:
instagram.com/ahmad_ archi_aa

SketchUp Pro ArchiCAD
Ultimaker Cura - 3D Printing
VELUX Daylight Visualizer
Morpholio Trace QGIS
Adobe InDesign
Adobe Photoshop
• RENDER Lumion
Twinmotion
Enscape V-Ray
• MEDIA
Adobe Photoshop
Adobe Premier
Adobe After Effects


• 2023 - 2024 - Reeds Rains Estate Agency Clerk in Liverpool City. Carrying out Property Inspections and Sales/Lettings Viewer at
• 2022 - 2023 - Part 1 Architectural Assistant at John McCall Architects in Liverpool City.
• 2020 - Student representative my 2nd year study in university.


• OFFICE


• 2016 - Supermarket Assistant (volunteer).
• PHYSICAL Drawing using drafting board
Physical model-making
Sketching
Microsoft Office Word
Microsoft Office Excel
Microsoft Office OneNote


Microsoft Office PowerPoint

During times of reflections, writing my goals onto paper to visually observe and manifest, allows me to control the day with purpose and meaningful habits.



Lake District, Gummers How South Shields, England Liverpool City



• BA Year 3 Semester 2 - Comprehensive Design Project - (The Art of Senses)
• BA Year 3 Semester 1 - Experimental Design 2 - (The Weather Through Senses)
• BA Year 2 Semester 2 - Experimental Design 1 - (Elements of Yin Yang Energy)
• BA Year 2 Semester 1 - Urban Design Project - (Rejuvenating The Fabric Community)
• BA Year 1 Semester 2 - Architectural Design 1 - (Tandoori Naan Bread (Bakery))
• BA Year 1 Semester 1 - Architectural Design 2 - (Temple of Stars)

My CDP project is about creating a higher education art school connecting this to the sites context and community in which this would be located in Birkenhead close by Hamilton Street. The role of education has always been important to the development of society especially when focussing in onto art schools. The spatial hierarchy for the interior occupants uses such as students and teachers is critical, creating a more coherent and a psychological comforting learning environment. The quality of how spaces are designed can only be appreciated once the manifestation of the education setting is accomplished through sensitivity towards the human emotions, reactions, responses and thoughts. The proportions and scale of how a space is laid out has a direct relation to the quality of teaching that can be shared as well as how much positive impact is reflected upon a student learning development. This in result would create an informed outcome for the architectural building as these differences would inevitably spark a desire for signifying the level of design decisions committed such as the cultural, philosophical, technological, functional and formalities.
A simple sketch yet symbolises the essence of natural north daylight entering the art display illuminating art pieces. This draws attention to the textures, colours, forms of the space thus helping architecture achieve its true purpose.





VOLUME DIVISION
VIEWS
SPALYED GLAZING















CRYSTAL BALL - VIEWS MATERIALS







Georgian style architecture
Rear elevation of listed buildings


Square Mersey Rail
Different elevation height to listen buildings












1) Fab lab
2) Library / social learning
3) South side escape stairs
4) Emergency exit
5) Printing space
6) Communal leisure
7) Elevator
8) Disabled W/C
9) Gender neutral W/C
10) Spiral staircase to ground floor
11) Hallway to 3d workshop
12) Staff room / storage
13) North side escape stairs
14) CNC machine room
15) Delivery entrance

16) 3d workshop work station
17) Delivery entrance
1) Front courtyard seating area
2) Central outdoor walk through arcade
3) Cafe
4) Public Pavilion space
5) Exhibition display
6) South side escape stairs
7) Light-well to lower ground
8) Private School
9) Foyer
10) Spiral staircase to upper or lower floor
11) Elevator
12) Entrance to lower ground
13) Disabled W/C
14) Gender neutral W/C
15) North side escape stairs


16) Basketball rear half-court
17) Entrance to lower ground
1) Central atrium
2) Open study space
3) South corner balcony
4) Fashion studio
5) South side escape stairs
6) Photography studio
7) Cleaning store room for W/C
8) Disabled W/C
9) Elevator
10) Gender neutral W/C
11) Technician room
12) CAD suite
13) North side escape stairs
14) Digital Graphics and media room
15) Spiral staircase to ground and lower ground floor
16) North corner balcony


17) Staircase to second floor
18) Staircase to first floor

1) Central atrium
2) Staircase to first floor
3) Staircase to third floor
4) Open hallway
5) Security office
6) Elevator to third floor mezzanine
7) Printing room
8) Fine arts studio
9) South corner balcony
10) Elevator to lower floors
11) Seating space
12) Disabled W/C
13) Gender neutral W/C
14) Hallway space for PC access
15) Hallway seating

18) Staff room
19) South side escape stairs
16) North corner balcony
17) North side escape stairs

1) Central atrium
2) Staircase to third floor mezanine
3) Staircase from third floor to second floor
4) Open hallway / seating spaces
5) Elivator to lower ground floors
6) Disabled W/C
7) Gender neatural W/C
8) History of Art and museum studio
9) North side escape stairs
10) Quite studio space
11) Storage space
12) Spiral staircase to rooftop terrace


1) Central atrium
2) Staircase to third floor
3) Architecture studio open space
4) Staircase to rooftop terrace
5) Lecture teaching space
6) Physical model space
7) South side escape stairs
8) Studio group tutorial bays with pin up
partition walls surrounded
9) Storage space
10) Elevator to second floor




Structural 500mm concrete columns
Concrete 400mm lower ground retaining wall
Lower ground 300mm concrete slab
Pile concrete foundation 2000mm deep and 900mm x 900mm conrete sqaure slab head













“The connection between Weather and Senses is the core focus during ones experience”
A weather station located within Lake District at Gummers How intending to provide a strong reminder regarding climate and weather. This can be done by heightening the senses and changing their fixed habits through their journey of experiences educating visitors the connection between architecture and the natural world. A curved rooftop that allows rainwater to naturally flow filling up checkpoints of pools then gushing down the hillside streams as a symbolic architectural element respecting nature upon the hilltops. Also an exhibition space in which this can significantly expose extinct rare animals and species due to humans daily decisions as well as an education space.


























Vertical timber columns Arched structural beams



Buildings
LAKE DISTRICT - GUMMERS HOW
Weather Station
Hiking routes
Streams
Public limit
Trees
Lake
Contours
Terrain















Situated near Chinatown by Queen’s Dock, this research centre embraces its waterfront setting, using water as a key design element. The space invites the diverse community and researchers to explore traditional Chinese wisdom, promoting psychological and physical well-being.
Inspired by Chinese medicine, the design incorporates healing practices like cupping therapy, acupuncture, herbal remedies, and martial arts. It also integrates the five Yin Yang elements—Water, Wood, Fire, Earth, and Metal— each essential to life.
By highlighting Yin Yang philosophy, this project fosters cultural awareness and well-being, creating a harmonious space for learning and healing.
Cupping therapy on my body





VOLUME ON BASE DIVISION










1) Damp proof membrane covered in a layer of asphalt material mixed with water repellent coating
2) Liquid rubber concrete 25mm layer.
3) Reinforced curved concrete 400mm.
4) Thermal roof insulation layer 150mm.
5) Metal panel 20mm.
6) Water drip from rain.
7) Acoustic ceiling tile 12mm.
8) Drainage path.
9) Pressure plate.
10) Double glazing 6mm thick.
11) Insulation board 15mm.
12) Damp proof memebrane.
13) Break in rigid insulated sheathing board filled with flexible fire stop with cavity tray over it.
14) Small gap filled with acoustic sealant.
15) Baseboard trim 3mm x 10mm.
16) Marble flooring 3mm thick.
17) Screed 10mm above this is vapour control membrane.



18) Insulation board 15mm.
19) Reinforced floor concrete slab 200mm thick.
20) Rigid insulation 50mm thick.
21) Ceiling gypsum board 12.5mm
22)Acoustic ceiling tile 12mm.
23) Light steel panel separating the concrete wall to the room 5mm.
24) Gypsum board last layer internal wall 12.5mm.
25) Additional thermal insulation as well as for acoustics against external noise 50mm thick.
26) Detail break line.
27) Brick 215mm x 102.5mm x 65mm.
28) Mortar between bricks 10mm thick.
29) Partial fill cavity 30mm.
30) Insulation board 50mm thick.
31) Damp proof course.
32) Timber separation block
37.4mm x 51.8mm.
33) Foundation block 102mm x 215mm.
34) Reinforced concrete footing 500mm x 200mm.
35) Structural concrete blocks 100mm x 220mm.
36) Insulated plasterboard 40mm with 3mm skin finish.
37) Marble flooring 3mm thick.
38) Screed over the concrete floor slab 10mm thick.
39) Rigid insulation above the concrete slab 25mm thick.
40) Damp proof membrane.
41) Reinforced steel rods 12mm within the concrete slab.

42) Concrete raft foundation slab.
43) Sand.
44) Earth.
































































































Ground Floor - Restaurant and cafe space




(Fabric District, Liverpool City)
This project enhances community experiences by integrating a multi-functional outdoor space. A rising public seating step expands visitors’ views while concealing a parking area beneath, optimizing space efficiency. As pedestrians ascend beside Kempston Street, each landing offers a new perspective, culminating at a crescent-shaped moon bridge supported by two concrete columns. This bridge leads to an hourglass-shaped rooftop garden, inspired by the Black Widow Spider, offering a serene escape from street noise.
At night, the garden becomes a prime stargazing spot due to minimal light pollution, allowing clear views of celestial events, including the North Star. Architecturally, Liverpool’s crescent-shaped coastline enhances this experience, reinforcing the city’s deep connection to its marine environment. With Polaris set to shift by 2100 (Rao, 2017), this rooftop serves as a timeless space for the community to witness rare astronomical events, creating a truly unforgettable experience.


















Landscape and seating steps






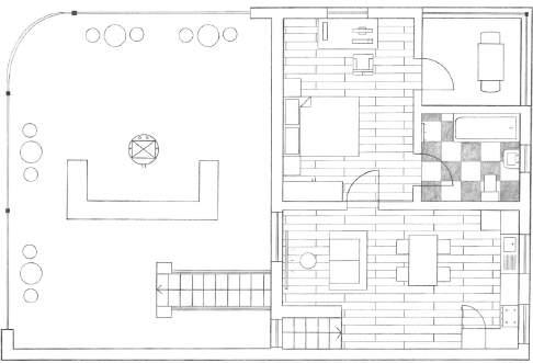
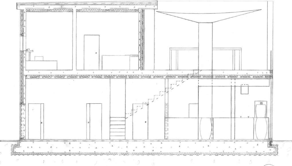
For my crafting design project, I focused on baking naan bread, inspired by the cultural significance of tandoori ovens in my Kurdish heritage. Located on Myrtle Street in Liverpool City, the area is home to a diverse community, including many university students. Providing fresh, warm naan offers both a cultural connection and a convenient food option, especially in the mornings when it is often sought after for breakfast.








By using a light meter to investigate the Daylight Factor and lux levels as well as an endoscope, I was able take pictures of key areas of the crafting and living accommodation space as light entered the building when faced north direction.










15)
16)


LIVERPOOL JOHN MOORES UNIVERSITY
SCHOOL OF ART AND DESIGN
AHMAD NIHAD ABDULQADIR


Location: Liverpool, Merseyside, UK

Email:
archiportfolio26@gmail.com


LinkedIn:
linkedin.com/in/ahmad-abdulqadir-416b98185/ Instagram: instagram.com/ahmad_ archi_aa


