Part 4_Ahmed Bakry's Portfolio

Page 1

PORTFOLIO

Ahmed Bakry 2021

BORDERS only exist in mind

2

mind of the people

3

STRUCTURE

4
5 1 Sketching [P. 6:21] Architecture [P. 22:57] Details [P. 58:65] Interior [P. 66:93] Urban [P. 94:101] Landscape [P. 102:115] Planning [P. 116:121] Analysis and extra activities [P. 122:143] 2 3 4 5 6 7 8

U rban 5

96 Project 1 Project type: Residential & commertial compund Location: Jaddah, KSA Contributors: Teamwork My Tasks: Individual urban designer, concept generation, urban analyses, project manager Programs and tools used by me: AutoCAD, InDesign, Photoshop, Sketching
97
98
Concept Generation
99
2
Project
101 Project type: Residential & business compund Location: New Cairo, Egypt Contributors: Teamwork My Tasks: Individual designer, urban analyses, project manager Programs and tools used by me: AutoCAD, InDesign, Photoshop, Sketching

L andscape

6
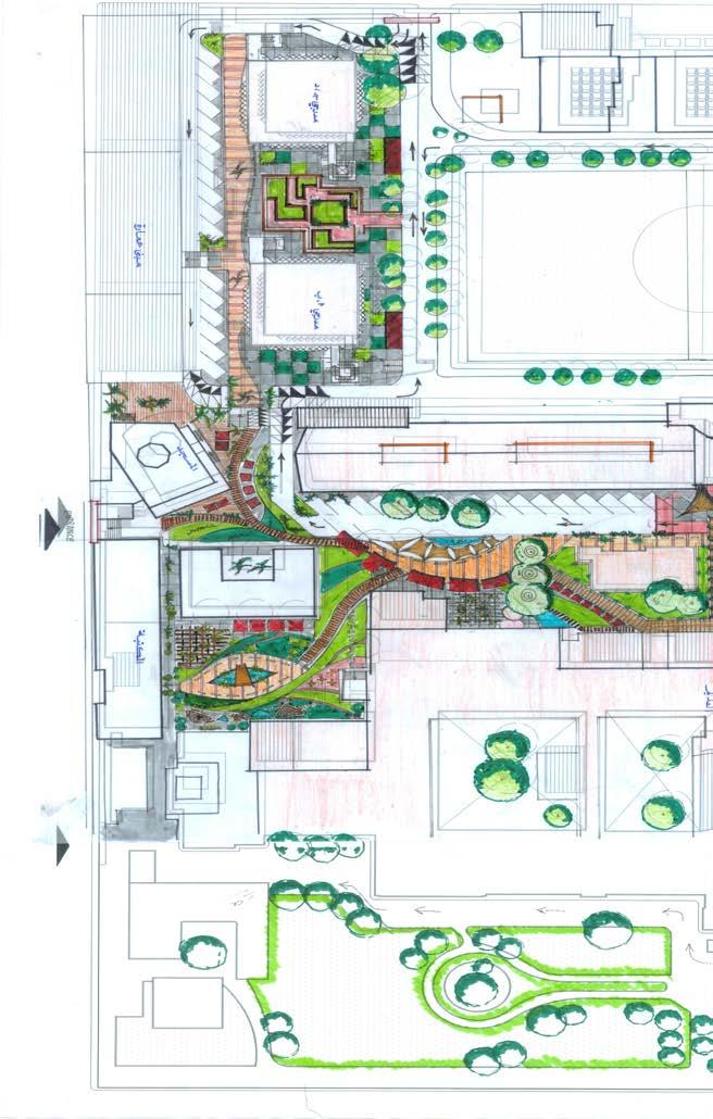
Project 1 Project type: Landscape design for kids area and club entrance Location:Tanta governmental club, Egypt Contributors: Teamwork My Tasks: Individual Landscapedesigner, Conceptgeneration, Landscape analyses, Project manager Programs and tools used by me: AutoCAD, InDesign, Photoshop, Sketching
105
106
107
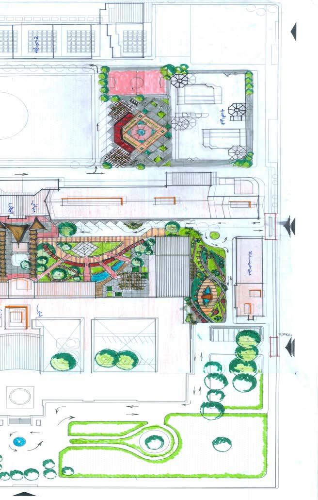
108 Project 2
109
Teamwork
Project type: Landscape design for a Public square Location:Attaba square and Azbakya park, Cairo -Egypt Contributors:
My Tasks: Landscape designer, Concept generation, Landscape analyses, 3D Programs and tools used by me: AutoCAD, Photoshop, Sketching, 3D max, Lumion
110 Project 3 Project type: Landscape design for a residential flat garden Location: New CairoEgypt Contributors: Teamwork My Tasks: Individual Landscape designer, Concept generation, Project manager Programs and tools used by me: AutoCAD, Photoshop, Sketching
111
112 Project 4 Project type: Landscape design for a residential flat garden Location: New CairoEgypt Contributors: Teamwork My Tasks: Landscape designer Programs and tools used by me: AutoCAD, Photoshop, Sketching
113
114 Project 5 Project type: Landscape design for Ain Shams University Location: Cairo - Egypt Contributors: Teamwork My Tasks: Landscape designer Programs and tools used by me: AutoCAD, Photoshop, Sketching
115

Turn static files into dynamic content formats.

Create a flipbook
Issuu converts static files into: digital portfolios, online yearbooks, online catalogs, digital photo albums and more. Sign up and create your flipbook.