

Ahmad El-Anas | Design Porftfolio
We are what we repeatedly do. Excellence then, is not an act, but a habit. - Aristotle
PROJECTS
1. SHARJAH CENTER FOR FILM AND MEDIA
2. STEAMBENT CHAIR
3. PARASITE
4. WRITE & GO
5. THE CATALYST BENEATH THE VEIL
6. VENEER & ACRYLIC 7. ILLSUTARTION AND RENDERING
8. PHOTOGRAPHY
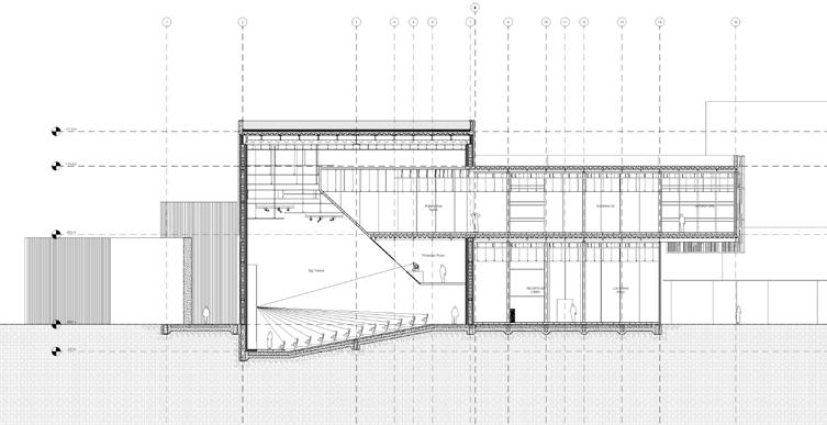
SHARJAH CENTER FOR FILM AND MEDIA
On this comprehensive pair work project, my partner and I explored the zoning possibilities of how to arrange multiple film and media spaces along a multi-use circulatory zone. We utilized the floor area we were given to have as many functional spaces as we could. The strengths of this project are present in how we used nested spaces and introduced halls with multiple functions. Challenges we faced with this project were regarding the construction of these large halls that we overcame by using steel frame construction. We also incorporated an intricate screen shading system appropriate to the site.












STEAMBENT CHAIR
This project taught me alot about woodworking and more specifically how to use the malleable properties of wood to my advantage. I learned the methods of steambending and understood how this is a process that requires patience and discipline. With the amount of time spent preparing the wood, I also had to put a lot of effort into the tools that would allow me to shape the wood. The process of making the molds and the process I had to follow to use these molds was the most important part of the project. I tried many different connection methods and techniques before I arrived at the final one. This discipline paid off at the end when I was left with this final product of a steambent chair.














PARASITE
Parasite is a project that invades the privacy of the existing site and acts as an offensive character to the surrounding site. The project is a synthesis of organic and gridded structures that overlap in a harmonious way to create one building. Ordered in a grided manner, the main fabrication space takes over and acts as the main character. The neighboring organic bridged space focuses more on the learning aspect as it includes the studio and seminar spaces. Parasite uses light and recyclable materials as well as a glazing and screening system to provide a tectonic and naturally lit space for the students to work in.












WRITE & GO
This two part project was my first attempt at woodworking and I learned techniques of preparing different kinds of woods, how each behaves, and the utilization of grain. The project was to create a set of tools for someone to use on the go.








THE CATALYST BENEATH THE VEIL
In the year 3000, Earth underwent a profound transformation due to the irreversible impact of human activities, leading to a fragile state of the planet. With oil-based and non-renewable energy sources depleted, society turned to the last natural mineral available—crystals. Discovered through excavating caves and exploring quarries, these crystals not only sustained human life but also ushered in a new era of utopia where visionary architects harnessed piezoelectricity, a unique property of crystals that converts kinetic energy into electricity. Over the decades, society has integrated crystals into every aspect of life, utilizing their diverse topographic properties and unique identities. This project acts as a celebration of these materials and allows visitors to experience the rich textures and aesthetics of the crystals and the lifestyle they’ve provided.








Wulfenite Rose Quartz Caledonite Pyromorphite









ACRYLIC-VENEER MATERIAL EXPLORATION
This project was part one that focused on exploration of different materials and to what extent we can take them to arrive at the desired result. The malleable properties of the wood veneer contrasted the rigidity of the cast acrylic. However I tried an array of different methods to find a way to connect them in an equally inclusive and holistic way. Using the tools at my disposal I created an abstract structure of interconnected pieces of veneer and acrylic that led me to my final project.












ILLSUTARTION AND RENDERING
Using different rendering softwares, I widened my 3d skills and learned how to model and render projects that I could not do using one software. These projects were just a vessel I used to push my skills to the limit and utilize color, light, and depth in my renders.



THE MISCOMMUNICATIONS OF GENDER
In this series, I aim to capture the complex phenomenon of gender disputes, specifically focusing on miscommunication. Through intentionally hazy and unfocused compositions, I convey the experience of misinterpreting a situation.
Emphasizing the power of storytelling and unfolding narratives within each frame, I transcend traditional compositional norms. Through careful composition and subtle visual cues, I guide viewers on a visual journey that encourages empathy, introspection, and reflection. By shifting the focus from sharpness to narrative depth, I invite viewers to question their assumptions and preconceived notions, fostering a deeper understanding of the intricate web of communication between genders. Miscommunication between genders is a common aspect of human interaction, influenced by various factors such as societal expectations, cultural differences, and individual experiences. In these photographs, the scene is set first, then we see the viewpoints of both male and female characters. Although the characters seem at first to be giving their full attention to one another, we get a glimpse into their minds and see what they are seeing. The intentional haze serves as a metaphorical representation of the fog that often surrounds communication between genders, leaving room for multiple interpretations and highlighting the subjective nature of perception.









INSENSATE
Insensate portrays the story of a character so disconnected from the rest of the world no matter how loud it calls. Taking place in one house, this set of photographs begins to suggest a lonely character that does not feel like themselves even in their own private space. A character that’s constantly wandering through different settings within the house, trying to find anything to hold on to. The interiors themselves portray a space, quiet and devoid of life, leaving the character feeling lonely and disassociated from the world around them. In this composed set, the second inanimate character - the device - is trying hard to attract the person’s attention by being constantly lit, hoping it would consume all of their time, implying that it was capable of that at some point. Not only do these suggest an unhealthy relationship between the device and the character, but they also show the discomfort that the character has with themselves as well as the world around them.




