About.uhpc.

Page 1

( لااب رایسب ییاراک اب نتب ) نارمع بختنم تکرش تادیلوت
01 فیراعت بیاعم و ایازم یگنر فیط تفاب یطیحم تسیز تارثا تاصخشم هسیاقم Uhpc,hpc,nc ییارجا لیتید اب ینیشن مه اه ریالتم اه هنومن
فیراعت فده اب نارمع بختنم هک ییاجنآ زا یاه نامتخاس ندرک هزیتارکومد ام تلاوصحم ،تسا هدش داجیا یشرافس حرط زا یا هدرتسگ فیط رد دنناوت یم یسانش ییابیز و اه تفاب ،اه گنر ،اه دنوش هلومرف . نیا یارب درادناتسا نامز تلاوصحم 12 هب اما ،تسا هتفه دراد یگتسب اه لناپ یگدیچیپ . ام شقن و تفاب اب هداس امن یاهحرط و یرارکت یاههسدنه ،هتسجرب ار دوخ درادناتسا یاهگنر نیرتبوبحم یاهدنیآرف ییاراک هک میهدیم هئارا شیازفا لماک روطهب ار ام راکدوخ و رتنییاپ یاهتمیق هجیتن رد و دهدیم دوشیم رتهاتوک لیوحت نامز . و اهتفاب نیکست اب یشرافس حطس یاهوگلا ،اهلیفورپ ،گرزب یاهلناپ ،رتشیب لاکشا ریاس و رادخاروس یاهلناپ ینابیتشپ و یحارط هب زاین یدعبهس قیرط زا هک دنراد یرتشیب یسدنهم دوشیم هئارا ام یشرافس همانرب ب هک دشاب یم لااب رایسب ییاراک اب نتب ه یلاع ماود و یکیناکم تاصخشم لیلد رد ریخا یاه تفرشیپ زا یکی دوش یم بوسحم نتب یژولونکت . رد نتب عون نیا یور رب هیلوا تاعلاطم لاس ۱۹7۰ رد نیلوا هسنارف و تفرگ تروص کرامناد عون نیا زا هدافتسا هک دشاب یم یروشک هب ار نتب تخانش تیمسر . فایلا ،سیلیسورکیم ،بآ زا یبیکرت ناور قوف ،هنادزیر هسام ،نامیس ،یزلف و هدننک دشاب یم زتراوک ردوپ . ییاراک اب نتب تخاس رد یلصا رایعم شهاک اب ناوتب هک تسا نیا لااب رایسب و زیر یاه کرت یلاگچ اب ییاه طلاتخا حرط هب ییوم تفای تسد نگمه و لااب . تابیکرت uhpc ییارجا لیتید اب ینیشن مه اه ریالتم فیراعت بیاعم و ایازم یگنر فیط تفاب یطیحم تسیز تارثا تاصخشم هسیاقم Uhpc,hpc,nc ییارجا لیتید اب ینیشن مه اه ریالتم اه هنومن 02
03 4 رت یوق ربارب یلومعم نتب زا تب ات تسا دلاوف هیبش رتشیب یراتخاس رظن زا ن 2% یدلاوف فایلا ،یمجح یراشف تمواقم و یریذپ فاطعنا اب هک تسا نتب زا یا هتسد دوش یم فیرعت لااب هداعلا قوف . رتگرزب ،رتکزان رایسب ییاهلناپ رد هک تسا یندعم هدام کی دوشیم هتخاس نتب ای یعیبط گنس زا رتکبس و . 10 تمواقم لاکساپ اگم یشک uhpc hpc uhpc نیاربانب 70 نامه هب یبایتسد یارب یرتمک داوم دصرد تسا زاین دروم یراتخاس تامازلا رجنم هک دوش هدافتسا امن رد نآ زا هک تسا دیفم ینامز نیا دوشیم رتمک هنیزه و تخاسریز شهاک ، یلک نزو شهاک هب یف شم هیلا ود و ییایلق ربارب رد مواقم یا هشیش ربیف اب رب دنا هدش تیوقت یا هشیش ییاه بلاق رد ام یاه لناپ یم داجیا یتاذ یاه تخادرپ و اهوگلا هک دنوش یم هتخیر .دننک ای اههنادگنس ،اهبلاق اب هژیو یحطس یاههولج دنوشیم داجیا تسلابایدم فلتخم یاهکینکت تاقوا یهاگ uhpc یاه لناپ اب ینیشن مه اه ریالتم فیراعت بیاعم و ایازم یگنر فیط تفاب یطیحم تسیز تارثا تاصخشم هسیاقم Uhpc,hpc,nc ییارجا لیتید اب ینیشن مه اه ریالتم اه هنومن
دنمناوت قوف نتب یایازم دامجنا تردق / ندش بوذ رگنل جورخ تردق هبرض ربارب رد تمواقم ؛قارتحا لباق ریغ دنلب یاه نامتخاس یارب شتآ شیامزآ بآ دض و بذاج ریغنییاپ یترارح طاسبنا بیرض دراد ییلااب تمواقم هزرل ربارب رد دوشیم هزاس ماکحتسا و ماود دوبهب ثعاب نتب نیا زا هدافتسا دهدیم شهاک تدش هب ار یرادهگن و ریمعت یاههنیزه . دنکیم رتمک ار یبارخ نازیم ،دراد ار یگتخیسگ مه زا نازیم لقادح نوچ . دهدیم شهاک ار هزاس زا رصنع ره هزادنا و یگدیچیپ . دشخبیم دوبهب ار هزاس یعاجترا تیصاخ شهاک ار هزاس رد اهنوتس و اهریت هزادنا تسلااب نآ یراشف تمواقم نوچ .دهدیم دراد هک ییلااب یریذپفاطعنا تیصاخ تلع هب تسا رتتحار رایسب نآ اب زاس و تخاس . هزاس تخاس تعرس یفرصم داوم شهاک تلع هب دراد یریگمشچ شیازفا و یرادهگن نامز دوشیم مواقم دوز نتب نوچ دباییم شهاک نآ شیاس 04 فیراعت بیاعم و ایازم یگنر فیط تفاب یطیحم تسیز تارثا تاصخشم هسیاقم Uhpc,hpc,nc ییارجا لیتید اب ینیشن مه اه ریالتم اه هنومن
05 تعنص یارب هک دراد دوجو یدرادناتسا یاهگنر، لااب رد یارب تساوخرد تروص رد اما ،دناهدش داجیا نامتخاس زا شیب هک ییاههژورپ 5000 ،دنراد زاین عبرم توف درک هیهت ار یشرافس یاهگنر ناوتیم . یو وی رادیاپ یاه هنادگنر اب هدش عابشا یاه گنر مکارتم سیرتام طسوت و دنا هدش هچراپکی طولخم اب هک دنیآ یم تسد هب ،دنوش یم تظفاحم فیط یگنر uv uhpc فیراعت بیاعم و ایازم یگنر فیط تفاب یطیحم تسیز تارثا تاصخشم هسیاقم Uhpc,hpc,nc ییارجا لیتید اب ینیشن مه اه ریالتم اه هنومن
06 یرصب یاه هنیزگ زا یعیسو فیط یاه لناپ دهد یم رارق ناراکنامیپ و نارامعم رایتخا رد ار . و یحارط لخاد رد ار دوخ یاهبلاق ام هک ییاجنآ زا یسانش ییابیز ره ابیرقت میناوتیم ،مینکیم دیلوت دروم میهد هئارا ار رظن . ییاه تفاب زا هنومن دنچ طقف ریز رد تسا هدش هدروآ مینک دیلوت میناوت یم هک . نادگنس زا رت عونتم و رت کبس یحطس گنیتسلابیدم ه دنک یم داجیا دید ضرعم رد یاه . میناوتیم نینچمه ام رد ار فلتخم یاههزادنا و اهگنر اب ییاههنادگنس میناجنگب اهلناپ هحفص . یم یشرافس حلاصم لیمکت زا شیب ریداقم یارب دناوت 10000 هدافتسا عبرم توف .دوش و اه تفاب یرصب هدودحم uhpc فیراعت بیاعم و ایازم یگنر فیط تفاب یطیحم تسیز تارثا تاصخشم هسیاقم Uhpc,hpc,nc ییارجا لیتید اب ینیشن مه اه ریالتم اه هنومن
حوطس و اه گنر اب و دنوش یم بیکرت رظانم اب یبوخ هب لیصا یاه گنر دنراد تقباطم طیحم و تعیبط . نت کی رد گنر تارییغت یگدنزرس شیازفا ثعاب و تسا هدش هتفرگ رظن رد گنر دوش یم نتب ،ینامتخاس حلاصم . حطس هس رد گنر ره تسا دوجوم . فیراعت بیاعم و ایازم یگنر فیط تفاب یطیحم تسیز تارثا تاصخشم هسیاقم Uhpc,hpc,nc ییارجا لیتید اب ینیشن مه اه ریالتم اه هنومن 07
لاد نیا هب هریت و تشرد هناد ، دشخب یم درف هب رصحنم یرهاظ . کی هژیو حطس نامرد دروآ یم ناغمرا هب . تفاب نآ رصحنم رادلاخ رهاظ اب دنک یم داجیا ار یزیگنا ناجیه تسارتنک هژیو هب هک تسا درف هب یکشم نشور یاه گنر دشخب یم گنر ود یا هولج امن هب . ناشخرد یرهاظ امن هب اکیم ندوزفا م دشخب ی . هب هتسباو نوگچ شبات یگ یاه شور هب تارذ ،دتفا یم دیشروخ رون یم داجیا یدرف هب رصحنم تارثا و دنوش یم سکعنم فلتخم دننک . یگنس هتخت تفاب بوچ راولا تفاب 08 ییارجا لیتید اب ینیشن مه اه ریالتم فیراعت بیاعم و ایازم یگنر فیط تفاب یطیحم تسیز تارثا تاصخشم هسیاقم Uhpc,hpc,nc ییارجا لیتید اب ینیشن مه اه ریالتم اه هنومن
09 رطخرپ داومروضح مدع صاخ داوم زا هدافتسا مدع رمیلپ و زلولس و اه نیزر نوچ تاصخشم هب ندیسر تهج یلاع رتمک بآ فرصم قیرط زارتمک یژرنا فرصم رت کزان یاه راوید تخاس تفایزاب لباق و رتمک تاعیاض اه هاگراک رد تسیز تارثا یطیحم فیراعت بیاعم و ایازم یگنر فیط تفاب یطیحم تسیز تارثا تاصخشم هسیاقم Uhpc,hpc,nc ییارجا لیتید اب ینیشن مه اه ریالتم اه هنومن
NC hpc uhpc 10 فیراعت بیاعم و ایازم یگنر فیط تفاب یطیحم تسیز تارثا تاصخشم هسیاقم Uhpc,hpc,nc ییارجا لیتید اب ینیشن مه اه ریالتم اه هنومن

DATA DRIVEN

11
اکیرمآ 1997: یلامش یاکیرمآ رد یلپ یاه هیاپ یارب هدافتسا نیلوا نونکا مه : هنیمز نیا رد لاعف ، نارمع بختنم تکرش ، ناریا اه ریت رد دربراک
ریذپانذوفن ربارب رد مواقم ،تبوطر ربارب رد بارب رد تمواقم هب رداق و تسا یگدروخ ر بلایس قطانم و یلحاس قطانم رد رصانع ی تسا . فیراعت بیاعم و ایازم یگنر فیط تفاب یطیحم تسیز تارثا تاصخشم هسیاقم Uhpc,hpc,nc ییارجا لیتید اب ینیشن مه اه ریالتم اه هنومن هبرض ربارب رد تمواقم ب هبرض ربارب رد لااب رایسب تمواقم رترب ه ینافوط یاهداب رد یتح تسا ماود و ینمیا ینعم دننک یم لمح ار درباوه یاه هباترپ هک . میلقا مامت نارمع بختنم ییغت اب ییاه میلقا رد تار ییادز خی هدش تباث درکلمع ،امد دیدشبوذ اه ههد لوط رد ار نآ یگچراپکی دنک یم نیمضت . تحت نارمع بختنم یاه لناپ و هدش هتخاس درادناتسا لباق ریغ قارتحا دنتسه یشمخ ماکحتسا اب زیخ هزرل قطانم رترب، رد تحار لایخ اب ناوت یم ار لب یاه جرب یور رب و زیخ هزرل قطانم دن زیگنا تفگش روط هب رگنل طاقن اب ی درک بصن . یا هناخلگ یاهزاگ راشتنا شهاک داوم طولخم و ،یلحم دیلوت ،یا هقطنم ماخ نییاپ نامیس راشتنا شهاک هب رجنم دوش یم یا هناخلگ یاهزاگ . 12
یلح هار دناوت یم دوخ ماود و ماکحتسا لیلد هب دشاب تاریمعت یخرب یارب هنیهب . هک درک هدافتسا یطیارش رد ناوت یم ار یریمعت یاه تلام ای یلومعم نتب زا لاومعم یدراوم رد دراوم یخرب رد و دوش یم هدافتسا دوش یم هدافتسا یا هزاس دلاوف زا هک . پ نیاربانب ،دننکیم ادیپ ماکحتسا تعرس هب اهل ناوتیم ار 24 تاریمعت مامتا زا سپ تعاس درک زاب کیفارت یور هب مزلا . ،نیا رب هولاع تاریمعت ریذپ فاطعنا و تدم ینلاوط ریمعت هب یلومعم یاه شور هب تبسن و دنتسه زاین یرتمک یدعب تاریمعت و رتمک یرادهگن و .دنراد رمع دنناوت یم اهنآ ،دراوم یخرب رد دوخ یلومعم نایاتمه زا و دنشاب هتشاد یرتشیب دننک لمع رتهب - تاریمعت لپ تمسق نیرت ماوداب و نیرت یوق دناوت یم .دشاب uhpc uhpc uhpc uhpc رمع ،رت یوق تاریمعت رت ینلاوط سیورس 13 فیراعت بیاعم و ایازم یگنر فیط تفاب یطیحم تسیز تارثا تاصخشم هسیاقم Uhpc,hpc,nc ییارجا لیتید اب ینیشن مه اه ریالتم اه هنومن
فیراعت بیاعم و ایازم یگنر فیط تفاب یطیحم تسیز تارثا تاصخشم هسیاقم Uhpc,hpc,nc ییارجا لیتید اب ینیشن مه اه ریالتم اه هنومن 14
15 فیراعت بیاعم و ایازم یگنر فیط تفاب یطیحم تسیز تارثا تاصخشم هسیاقم Uhpc,hpc,nc ییارجا لیتید اب ینیشن مه اه ریالتم اه هنومن ورکیم یسدنهم اب داوم بیکرت هداعلا قوف یاه نتب مامت ساسا و تسا لااب ییاراک اب بختنم نارمع یارب ار نآ بیکرت هدرک حلاصا یرامعم رصانع تسا .
• یامن ود ره یارب بسانم یجراخ و یلخاد • تسا ماوداب و مکارتم ،کبس و یکی یتحار هب دوشیم ثعاب یارب حلاصم نیرتهب زا یرامعم هزاس عون ره تخاس دشاب یجراخ و یلخاد . • هک ییاهتیزم زا رگید یکی دراد کشخ یامن , ونان قیاع تسا . 16 زا نارمع بختنم یروانف هدش تابثا و دنک یم هدافتسا و یریذپ فاطعنا ،درکلمع ار نآ یحارط یاه یگژیو یاه نامتخاس یامن یارب دهد یم شیازفا گرزب . فیراعت بیاعم و ایازم یگنر فیط تفاب یطیحم تسیز تارثا تاصخشم هسیاقم Uhpc,hpc,nc ییارجا لیتید اب ینیشن مه اه ریالتم اه هنومن
رد هتخاس شیپ یاه نامتخاس روط هب هتشذگ یاه لاس و تسا هتفای شرتسگ ریگمشچ نامتخاس زا یا هدرتسگ فیط رازاب رد هتخاس شیپ یاه تسا دوجوم ر یزاس هتخاس شیپ دنمناوت نتب ا شرتسگ نامتخاس تعنص رد تسا هداد . ثعاب رما نیمه تسا هدش ارجا تعرس شیازفا . 17 فیراعت بیاعم و ایازم یگنر فیط تفاب یطیحم تسیز تارثا تاصخشم هسیاقم Uhpc,hpc,nc ییارجا لیتید اب ینیشن مه اه ریالتم اه هنومن
18 فیراعت بیاعم و ایازم یگنر فیط تفاب یطیحم تسیز تارثا تاصخشم هسیاقم Uhpc,hpc,nc ییارجا لیتید اب ینیشن مه اه ریالتم اه هنومن ؟دروآ دهاوخ ماود ردقچ امش نامتخاس ینامتخاس یاههویش و حلاصم یلصا هتسه یریذپفاطعنا تسا بوخ . رد ، نارمع بختنم یم ام یامن رصانع هنوگچ هک مینک یم هاگن عوضوم نیا هب ام دنشاب دیفم هدش هتخاس طیحم یارب یسوسحم روط هب دنناوت . ربارب رد تمواقم ،رمع لوط ،ماود ،ییاهن دیفم رمع و ،نزو هب ماکحتسا تبسن ،ژاتنوم نامدنار ،دیدش ثداوح رد ماود ،هبرض دنراد شقن ددجم یاهششوپ و دیدج یاهنامتخاس یریذپفاطعنا هلداعم رد یگمه .
ینیشن مه ریالتم اب کیمارس uhpc شکور زا هک تسا کزان نزو کبس تیزوپماک یامن لناپ کی تسا هدش هتخاس لااب هداعلا قوف درکلمع اب نتب اب یکیمارس . نیا کیسلاک یاهامن داجیا اب ،یکیمارس یامن اب هتخاس شیپ لح هار یرامعم یارب ار یدیدج هدنیآ ،دنراد یکبس نزو هک یکاخ و اه نامتخاس رد ار اهنآ زا هدافتسا و دنک یم داجیا هتخاس شیپ دنک یم رت ناسآ . یایازم نیا :متسیس هتفای دوبهب نبرک یاپدر رتمک نامیس نزو شهاک 30٪ درک کچوک ناوت یم ار اهرگنل هزادنا لمحت لباق فک یاضف شیازفا یراک قیاع یارب رتشیب یاضف قیرح دض یارب رتشیب یاضف هتفای شیازفا ماود هنیزه رد ییوج هفرص 19 فیراعت بیاعم و ایازم یگنر فیط تفاب یطیحم تسیز تارثا تاصخشم هسیاقم Uhpc,hpc,nc ییارجا لیتید اب ینیشن مه اه ریالتم اه هنومن
درک هدافتسا درک هدافتسا نتب رگید عاونا زا هک ییاج ره رد یلک روط هب ناوت یم ار دشاب اهدربراک زا یرایسب یارب هنیهب هدام دناوت یم نآ ماود و ماکحتسا لیلد هب و . یذپ قیبطت یر uhpc شاب یم ذوفن لباق ریغ ابیرقت نتب نیا هک هتکن نیا هب هجوت اب یم د رضم یاه نوی هک لااب یگدولآ اب ییاه لحم تخاس رد نآ زا ناوت تسج هرهب دنا طابترا رد هزاس اب . 20 فیراعت بیاعم و ایازم یگنر فیط تفاب یطیحم تسیز تارثا تاصخشم هسیاقم Uhpc,hpc,nc ییارجا لیتید اب ینیشن مه اه ریالتم اه هنومن
هب دوش یم هدید اه لناپ رد هک چرپ ای چیپ اب ناوت یم ار درک لصتم یزاسریز باق . دلاوف لماش ام یاه هنیزگ یاهدربراک یارب گنر ناسمه یاهرس ای گنز دض تسا راومه ای حطس یور . uhpc یاه لناپ 22 فیراعت بیاعم و ایازم یگنر فیط تفاب یطیحم تسیز تارثا تاصخشم هسیاقم Uhpc,hpc,nc ییارجا لیتید اب ینیشن مه اه ریالتم اه هنومن
23 تلااصتا تاییزج • لیات ره ،لومعم روط هب تخاس شیپ زوپسکا نتب هب ه هزاس هب لقتسم روط زا هدافتسا اب نامتخاس یازجا زا یا هعومجم بصن تلاآ قارب و یزلف دوش یم ینابیتشپ . یاهدنب نتب لیات زا کی ره فارطا معم هتخاس شیپ زوپسکا لاو اب و بسانم یاهریگزرد اب یم رپ یعاجترا تیصاخ .دنوش فیراعت بیاعم و ایازم یگنر فیط تفاب یطیحم تسیز تارثا تاصخشم هسیاقم Uhpc,hpc,nc ییارجا لیتید اب ینیشن مه اه ریالتم اه هنومن

Details

C1 C2 C3 • زا یعیسو فیط نارمع بختنم اهوگلا ،اهتفاب ، اهلکش و یشرافس یاهلیافورپ سوت ار هع تسا هداد 24
فیراعت بیاعم و ایازم یگنر فیط تفاب یطیحم تسیز تارثا تاصخشم هسیاقم Uhpc,hpc,nc ییارجا لیتید اب ینیشن مه اه ریالتم اه هنومن
25 فیراعت بیاعم و ایازم یگنر فیط تفاب یطیحم تسیز تارثا تاصخشم هسیاقم Uhpc,hpc,nc ییارجا لیتید اب ینیشن مه اه ریالتم اه هنومن
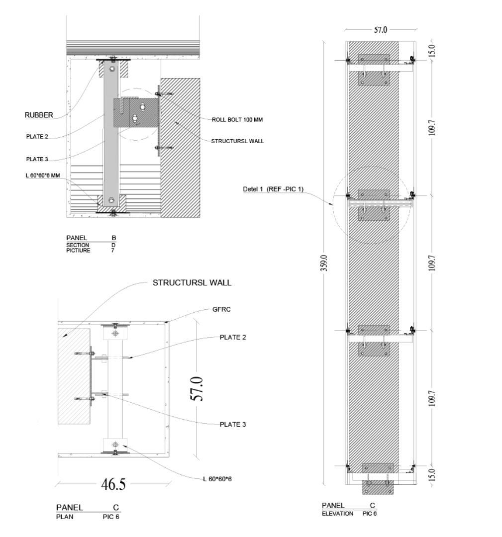
لاصتا یلصا فده راب لاقتنا ، تسا هدنرادهگن هزاس و لیات نیب دیاب تلااصتا ،راک نیا ماجنا رد لیات بصن و یحارط یاهرایعم ار ریز دراوم هلمج زا زوپسکا نتب دشاب هتشاد : • بصن رد تلااصتا رد تمواقم • بصن رد تلااصتا یریذپ لکش • رد تلااصتا مجح رییغت لحم بصن • بصن رد تلااصتا ماود • • تلااصتا شتآ ربارب رد تمواقم بصن رد • اصتقا و زاس و تخاس تیلباق د • بصن رد داب یورین تاظحلام • بصن رد یا هزرل تاظحلام 26 فیراعت بیاعم و ایازم یگنر فیط تفاب یطیحم تسیز تارثا تاصخشم هسیاقم Uhpc,hpc,nc ییارجا لیتید اب ینیشن مه اه ریالتم اه هنومن
27 فیراعت بیاعم و ایازم یگنر فیط تفاب یطیحم تسیز تارثا تاصخشم هسیاقم Uhpc,hpc,nc ییارجا لیتید اب ینیشن مه اه ریالتم اه هنومن
28 فیراعت بیاعم و ایازم یگنر فیط تفاب یطیحم تسیز تارثا تاصخشم هسیاقم Uhpc,hpc,nc ییارجا لیتید اب ینیشن مه اه ریالتم اه هنومن
یارب اه خاروس و دنوش یم هدیرب هزادنا هب اه لناپ دوش یم داجیا ام یاه هناخراک رد اه هدنهد لاصتا . یتح راک لحم رد و داد شرب هزادنا هب ار اه لناپ ناوت یم درک خاروس . رد زاین دروم رتمک رگنل طاقن دوجو اب ره شاب هفرص هب نورقم و دمآراک دناوت یم بصن ،لناپ د . 29 فیراعت بیاعم و ایازم یگنر فیط تفاب یطیحم تسیز تارثا تاصخشم هسیاقم Uhpc,hpc,nc ییارجا لیتید اب ینیشن مه اه ریالتم اه هنومن
30 فیراعت بیاعم و ایازم یگنر فیط تفاب یطیحم تسیز تارثا تاصخشم هسیاقم Uhpc,hpc,nc ییارجا لیتید اب ینیشن مه اه ریالتم اه هنومن
31 پیت 1 پیت 2 پیت 3 لنپ هدنرادهگن یشبن کمک هب عافترا میطنت عافترا میطنت اه ییاجباج ربارب رد تمواقم فیراعت بیاعم و ایازم یگنر فیط تفاب یطیحم تسیز تارثا تاصخشم هسیاقم Uhpc,hpc,nc ییارجا لیتید اب ینیشن مه اه ریالتم اه هنومن
32 فیراعت بیاعم و ایازم یگنر فیط تفاب یطیحم تسیز تارثا تاصخشم هسیاقم Uhpc,hpc,nc ییارجا لیتید اب ینیشن مه اه ریالتم اه هنومن
33 فیراعت بیاعم و ایازم یگنر فیط تفاب یطیحم تسیز تارثا تاصخشم هسیاقم Uhpc,hpc,nc ییارجا لیتید اب ینیشن مه اه ریالتم اه هنومن
بختنم تکرش هژورپ ناریدم و ناحارط لیوحت ،تخاس ات ادتبا زا لاومعم نارمع تکراشم اههژورپ رد بصن یتح و .دنراد ،دنیآرف زا هلحرم ره رد ام یارب هشیمه و مینک یم هئارا صصخت اجنیا ،دیراد زاین امش هچنآ هب کمک .میتسه میت اب زاین تروص رد افطل دیریگب سامت ام ینف ینابیتشپ . :سردا ، تمس هب رهشرذآ هداج ،زیربت لزید ایرآ بنج ،راب هرت نادیم هب هدیسرن ام اب طابترا 34 فیراعت بیاعم و ایازم یگنر فیط تفاب یطیحم تسیز تارثا تاصخشم هسیاقم Uhpc,hpc,nc ییارجا لیتید اب ینیشن مه اه ریالتم اه هنومن 09141154841 www.alyafbeton.com Alyafbeton.tbz@gmail.com
35
ام فده تسامرفراک تیاضر دینک دامتعا ام هب تسیفاک 36

Turn static files into dynamic content formats.

Create a flipbook
Issuu converts static files into: digital portfolios, online yearbooks, online catalogs, digital photo albums and more. Sign up and create your flipbook.