Architecture design and 3D visualisation

Page 1

PORTFOLIO BENHAMZA Abdelmalek +213 (0) 797 657 690 malekbenhamza@gmail.com Architecture, design et visualisation 3D

A propos de moi

Architecte de formation, j’ai travaillé dans des bureaux d’études, une promotion immobilière et des agences de communication, de ce fait j’ai acquis une expérience très diversifiée et enrichissante qui me per met de vous accompagner dans vos projets en vous proposant des services allant du design et esquisse de l’idée, au détails de réalisation, en passant par la visualisation 3D du projet.

INDEX 01 ARCHITECTURE 04-13 02 VISUALISATION 3D 14-20 03 DESIGN evennementiel 21-25

01 ARCHITECTURE

4 Portfolio BENHAMZA Abdelmalek

SALON DE COIFFURE CHERAGA

Projet D’aménagement d’un salon de coiffure en proposant plusieurs variantes d’ambiances et de styles pour aider le client à définir une esthétique qui fera partie de la personalité du salon.

ARCHITECTURE
A A B B C C NF 0 0m 0 5 m 1 m Espace o ure M a n c u e Ac ue Sa on Espace Pho o Sa e de o ma on Make up Sa e d es hé que San a re Cu s ne Champo ng Péd cu e É ng od M b e o C be m 5 Portfolio BENHAMZA Abdelmalek

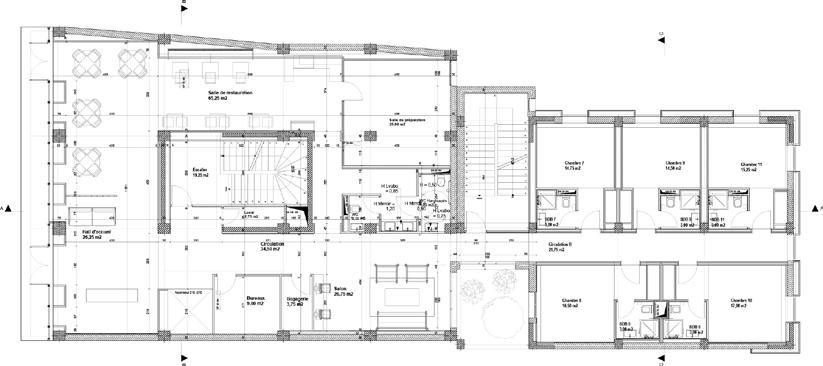
CAFE RESTAURANT SAID HAMDINE

Projet de reconversion d’une anciènne boulangerie en Café réstaurent avec un look plus contemporain et une touche vintage, le tout dans une ambiance cosy.

ARCHITECTURE Espace café Espace VIP Lounge Espace photos Comptoir ESPACE TABLES ESPACE CUISINES STOCKAGE Sanitaires du personnel Banquettes Sanitaures Sanitaires
6 Portfolio BENHAMZA Abdelmalek

SALON DE COIFFURE LYON - FRANCE

Design d’un salon de coiffure dans un conteneur dans un style vintage industriel.

ARCHITECTURE
7
Portfolio BENHAMZA Abdelmalek

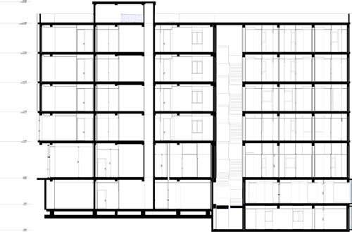
HOTEL AIN BENIAN

Collaboration avec l’architecte Lamine Boussaid pour la réalisation des documents du dossier d’éxécution et des perspectives.

+0,00 +0,10

10 3

7

7

7 9

5

Plaque en résine couleur anthracite

9 7

5

Chassis ouvrant à la française avec verre transparent

7

32 0 1 0

7 23 1 0 1 0

Volumes en plaques de plâtre d éxtérieur fixés sur les parroies de maçonnerie

Vèrre opaque

La corniche remonte à 10cm au dessus du niveau zéro du béton pour border la chappe au so et servire de support pour la fenêtre

Corniche à créer

±0,000 RDC +4,200 1 ETAGE 1 +7,600 ETAGE +11,000 ETAGE +14,400 ETAGE +17,800 5 TERRASSE +20,300 TOITURE
ARCHITECTURE 8 Portfolio BENHAMZA Abdelmalek
ARCHITECTURE 9 Portfolio BENHAMZA Abdelmalek

RESTRUCTURATION VILLA BEN AKNOUN

Projet de modification d’un habitation existante afin de revaloriser son potentiel immobilier.

ARCHITECTURE
10 Portfolio BENHAMZA Abdelmalek

VILLA AKBOU

Maison d’habitation R+1 en demi niveau s’intégrant à la pente du terrain.

ARCHITECTURE 11
Portfolio BENHAMZA Abdelmalek

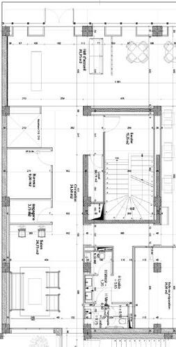
Aménagement d’intérieur d’une cuisine Gué de Constantine «Plus de lumière» était l’axe principale de ce projet d’où le remplacement d’une cloison avec porte et fenêtre par une verrière et le choix des couleur claires et la dominance du blanc.

ARCHITECTURE 12 Portfolio BENHAMZA Abdelmalek
13 Portfolio BENHAMZA Abdelmalek

02 VISUALISATIONS 3D

VISUALISATION 3D
14 Portfolio BENHAMZA Abdelmalek
Maison d’habitation - Alger
15 Portfolio BENHAMZA Abdelmalek
HOTEL RADISSON ALGER Hall de circulation Coffee étage business Escalier RDC accueil / Etage business
16 Portfolio BENHAMZA Abdelmalek
Salles de bains des chambres
VISUALISATION 3D Chambre suite junior 17
Portfolio BENHAMZA Abdelmalek
coffee
coffee Restaurant Accueil - spa Espace détente - spa VISUALISATION 3D
Espace
Espace
18 Portfolio BENHAMZA Abdelmalek
HOTEL RADISSON ALGER
MAISON D’HABITATION ALGER VISUALISATION 3D 19 Portfolio BENHAMZA Abdelmalek
RESIDENCE EN R+3 ALGER VISUALISATION 3D 20 Portfolio BENHAMZA Abdelmalek

03 DESIGN

Evennementiel et Signalétique

21 Portfolio BENHAMZA Abdelmalek
DESIGN Evennementiel 22
CONCEPTIONS DE STANDS DIVERS ALGER
Portfolio BENHAMZA Abdelmalek

CONCEPTIONS DE STANDS DIVERS ALGER

DESIGN Evennementiel 23 Portfolio BENHAMZA Abdelmalek

Design de décorations divers ALGER

Décoration de hall d’accueil Habillage de façades

DESIGN Evennementiel
24 Portfolio BENHAMZA Abdelmalek

Design de signalétique ALGER Portfolio BENHAMZA Abdelmalek

DESIGN Evennementiel
Design d’un totem pour CGMP 25

+213 (0) 797 657 690 malekbenhamza@gmail.com

Merci! BENHAMZA Abdelmalek

Turn static files into dynamic content formats.

Create a flipbook
Issuu converts static files into: digital portfolios, online yearbooks, online catalogs, digital photo albums and more. Sign up and create your flipbook.