Smanga Portfolio

Page 1

PORTFOLIO

Name: Snethemba

Surname: Jiyane

Year of Study: 2nd Year Diploma

Student Number: 222033413

Project: Creating Your Dream House

Year: 2022

Module: Computer in Architecture

This project we were tasked to draw our dream house on revit, this was my first time using revit. The dream house was just a house designed for a family of 4, this was a single story house with an open plan kitchen, dining room and formal lounge, all those spaces are double volume that open into an outdoor chilling spot.

The Dream House 2
Selected Works 3
Selected Works 4
Selected Works 5

Project: Row Housing

Year: 2022

Module: Architectural Design

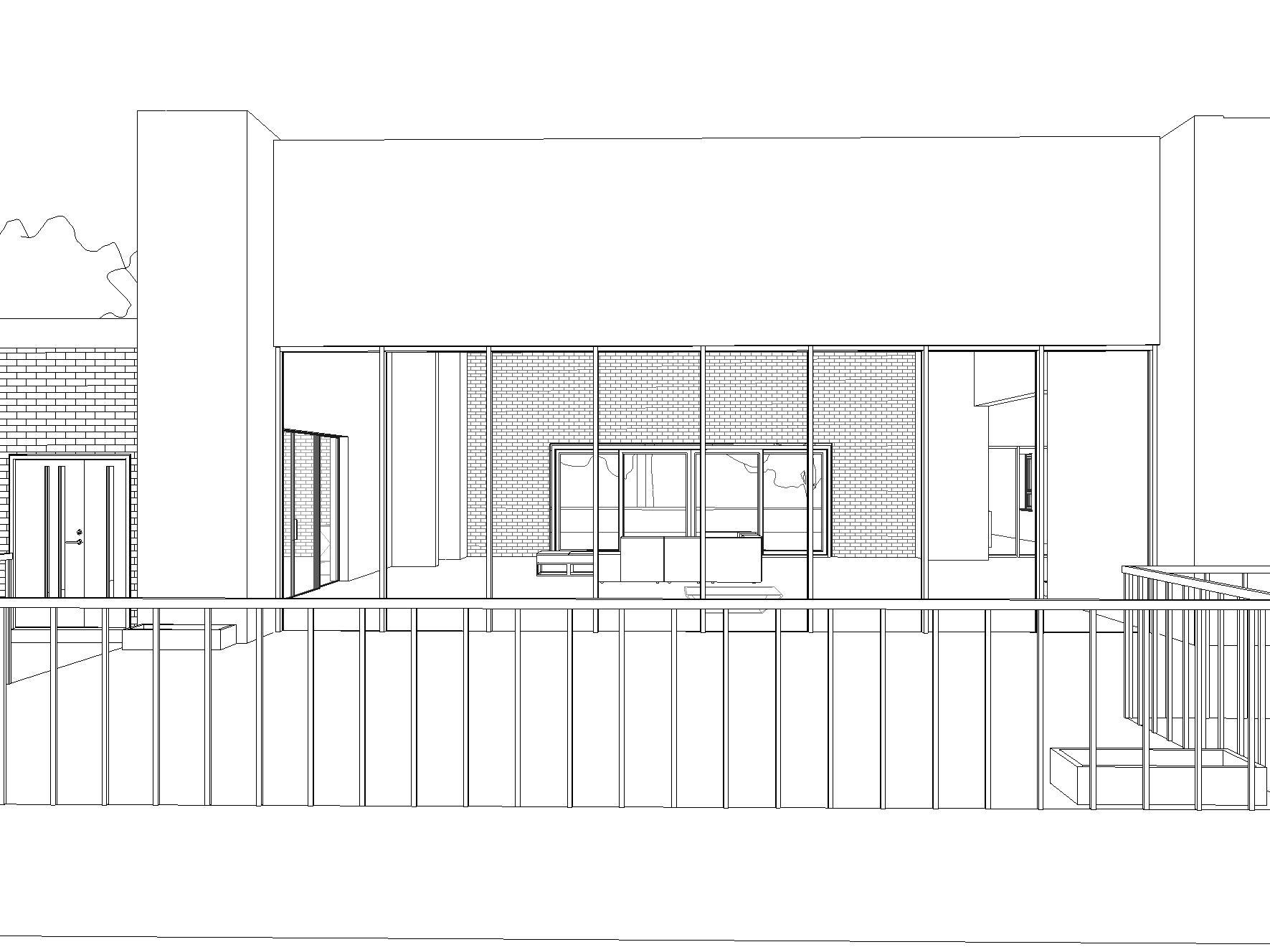
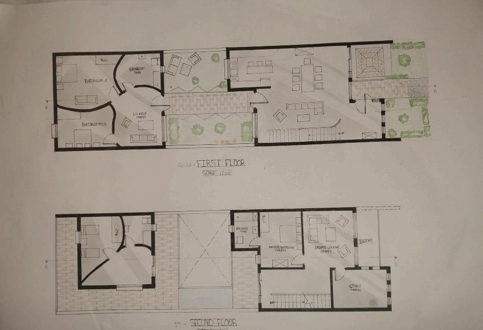
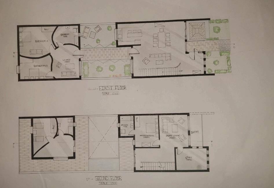
The Row housing project is one of the project we did in 1st year where we were tasked to design a Row house in a context of Sopiatown. My design concept was ( Freedom to Feel ). In row houses where by one house attached to the other, when designing you must think of circulation in the building( the use of natural light, air circulation within the building.

6 Freedom to Feel
7 Selected Works
8 Selected Works
9 Selected Works
10 Selected Works
11 Selected Works

The Past and Present

Project: Creating facade Systems

Year: 2023

Module: Computer in Architecture

12
13 Selected Works

THE Melting Tree

Project: Creating facade Systems

Year: 2023

Module: Computer in Architecture

This project we were tasked to create facade systems on revit. I call this project a ( Melting Tree facade ) . A melting tree facade is a facade system created when all floor slabs overlaps with the curtain wall system by a minimum distance of 2m to create a shadding device inside the building and to control the amount of light coming in during summer and winter. When these floor slabs overlaps, at the starting point of the slap you have a melting point which runns down covering two floor below then where it ends of a melting point you have a Pompon Tree but the plan was to make the entire melting point a small garden to make this building a green building which seeks to improve the lives of the residents living in it. We need sustainable building in order to provide and improve the lives of people as architects we must design with sustainability in mind.

14

accordance with windows and doors

Tiles floor finish

PLASTERED AND PAINTED

Insulation

Tiles floor finish

Insulation

Tiles floor finish

Sill window cut into concrete cut into concrete

Sill window

FACADE DETAIL

ALUMINIUM EXTRUSION

ALUMINIUM EXTRUSION

PLASTERED AND PAINTED

PREFABRICATED STONELITE

SUSPENDED CEILING

MALE BATHROOM PLASTERED AND PAINTED

CONTINUOUS CHANNEL CONCRETE

GAP PROVIDED CAVITY VENTILATION

6mm THICK LAMINATED GLASS

50X180mm MULLION

CURTAIN WALL SYSTEM

SCALE 1:5

15
Selected Works
PANEL
VAPOUR
75mm RIGID INSULATION
FOURTH FLOOR 20478 FIFTH FLOOR 24478 SIXTH FLOOR 28478
16 Selected Works

255mm Concrete roof slab to eng. spec.

Precast concrete coping

Aggregate and flood coat

Water proofing layer

Drip detail cut into concrete

Cant strip

Screed to fall

SUSPENDED CEILING

280mm Cavity wall with 10mm plaster

Tiles floor finish

Insulation

All doors and windows to be in accordance with building regulation. lintel over windows and doors

Tiles floor finish

Sill window

Drip detail cut into concrete

Insulation

Tiles floor finish

Insulation

Tiles floor finish

Drip detail cut into concrete

Sill window

EIGTH FLOOR 36478

PLASTERED AND PAINTED

SEVENTH FLOOR 32478

SUSPENDED CEILING

PLASTERED AND PAINTED

SIXTH FLOOR 28478

PLASTERED AND PAINTED

FIFTH FLOOR 24478

SUSPENDED CEILING

MALE BATHROOM PLASTERED AND PAINTED

Selected Works 17 PREFABRICATED STONELITE PANEL
VAPOUR CONTINUOUS CHANNEL CONCRETE GAP PROVIDED CAVITY VENTILATION
75mm RIGID
FOURTH FLOOR 20478
1
EASTERN FACADE DETAIL
1:50
SCALE

Photoshop Workshop

Project: Photoshop Workshop in class

Year: 2023

Module: Computer in Architecture

This project was a class workshop where we were tasked to do a minimum of six story office space using conceptual mass on revit and then import it on photoshop to render it. This was a bit challenging for me because it was my first time doing a realistic render on revit, so what i ended up with is a simple office space building which is transparent and has steel facade system. This task was to be completed before the end of the class, it was challanging but also fun and very educational.

18
Selected Works 19

Charles House

Project: Charles House

Year: 2023

Module: Computer in Architecture

Location: Amagansett, New York

This project we were tasked to redesign the spaces of the Charles Gwathmey house which was built in 1965. I did not change many things on the program of the house i just added few program( a bathroom, livings spaces and one bedroom ). Because the house was clevely designed.

20
UP UP
--
-
living room kitchen store room 5
Veranda
21 Selected Works
22 Selected Works
23 Selected Works DN6 7 8 9

The Architecture of Emotion

Project: Design Elecetive Project

Year: 2023

Module: Architectural Design

Jiyane

Location: Johannesburg, Durban Street

This project we were tasked to design a apartment/ office space. My design concept centres around the need for transparency in public buildings in order to encourage the public to use and engage with services the building provides. The Architecture of Emotion is a design project which seeks to create and trigger the emotional connection between the user and the building it’s self.

24

A facade that heals. steel & timber, second floor walls are a facade in themself, timber lovers and weepers. summer and winter light and heat is regulated by the weepers on the walls fo rthe second floor studios.

25 Selected Works
26
The Architecture of Emotion
27 Selected Works
28 GROUND FLOOR 0 FIRST FLOOR 3200 SECOND FLOOR 6400 ROOFTOP 9600 ROOF LEVEL 11100 111 m² RECEPTION, WAITING ROOM & LECTURE SPACE17 m² MEETING ROOM 02 17 m² MEETING ROOM 01 73 m² CAFE SEATING AREA 6 m² FEMALE TOILET 23 m² KITCHEN 9 m² MALE TOILET 4 m² REFUSE 9 m² OFFICE 01 10 m² OFFICE 02 2000 2000 2000 C D E F G 1 2 3 6 7 8 9 A H 4 5 6 m² LIFT 6 m² LIFT 34 m² PASSAGE PASSAGE-Selected Works
29 Selected Works SECOND FLOOR 6400 ROOFTOP 9600 ROOF LEVEL 11100 1 2 3 4 CAFE SEATING MEETING ROOM 02 MEETING ROOM 01 KITCHEN KITCHEN & DINING 9 m² Room Room CAFETERIA 112 m² STUDIO 01 95 m² STUDIO 02 100 m² STUDIO 03 APARTMENT 02 Room CARETAKER APARTMENTS 36 m² PASSAGE

Project: Design Elecetive Project

( Design incontext )

Year: 2023

Module: Architectural Design

This project we were tasked to design using our given context responding to site, we were to design a community space which has a library, an auditorium, small retail and a train station. My design concept was centered around the juxtaposition of building mateals to form one thing.

The Flow of Movement 30

Section Through Transit Node

1m 2m 4m 0m Scale Bar 1:1004 5 3 2 1 Selected Works 31
LIb/Ret Roof 18003 9 10 11 12 13 -
Scale Bar 1:100 Level 0 0 Lib/Ret Ground Floor 10003 Lib/Ret First Floor 14003 Audi/Cult Ground Floor 8000 Audi/Cult First Floor 12000 Audi/Cult roof 16000 Level 14 11000 Library MezzanineLibrary West Elevation 1m 2m 4m 0m Scale Bar 1:100 Selected Works 32
Section Through Transit Node

Master Plan

Library 3D Section

11 6 7 8 16 17 18 19 20 21 22 23 24 25 26 27 29 30 31 32 33 34 35 36 37 38 39 40
Selected Works
33
Level 0 0 Lib/Ret Ground Floor 10003 Lib/Ret First Floor 14003 LIb/Ret Roof 18003 Level 14 11000 Library Mezzanine 35 36 29 29 Section Through Auditorium/Studio 1m 2m 4m 0m Scale Bar 1:100 Selected Works 34

Transit Node West Elevation

Lib/Ret Ground Floor LIb/Ret Roof 18003 Audi/Cult Ground Floor 8000 Audi/Cult First Floor 12000 Audi/Cult roof 16000 -
Audi/Cult Ground Floor 8000 Audi/Cult First Floor 12000 Audi/Cult roof 16000 29 29 Auditorium/Studio Selected Works

Turn static files into dynamic content formats.

Create a flipbook
Issuu converts static files into: digital portfolios, online yearbooks, online catalogs, digital photo albums and more. Sign up and create your flipbook.