Portafolio 2024

Page 1

MARIANGELA VALENZUELA CASTILLO PORTAFOLIO ARQUITECTURA

Mariangela Valenzuela

Correo institucional:

Correo electrónico: Teléfono:

Contacto Formación

u201720963@upc.edu.pe mari21an7@gmail.com

963806828

Primaria:

Secundaria:

Superior:

I.E. “La Inmaculada” 6022

I.E.P. “Prolog”

Universidad Peruana de Ciencias Peruanas

2

Estudiante de décimo ciclo de la carrera de Arquitectura, con experiencia en diseño digital y en búsqueda de prácticas preprofesionales. Disponibilidad inmediata.

Experiencia Laboral:

Ene 2023 - Abr 2023 BENESC GRUPO CONSTRUCTOR SAC

Actividad: Arquitectura / Diseño

Cargo: Practicante de arquitectura

Dic 2021 - Dic 2022 LISAN SAC

Actividad: Apoyo en diseño digital de publicidad

Habilidades digitales

Photoshop

Revit

Autocad

Idiomas

Inglés Intermedio

Francés muy básico

Sketchup

Rhinoceros

3d Max

Intereses

Arte gráfico Dibujo

Arte gráfico Dibujo

Cine

Cine

Música

Música Fotografía

Fotografía

3
Perfil

TALLER III

RESIDENCIAL MULTIFAMILIAR

TALLER IV

EDIFICIO HÍBRIDO VIVIENDA

TALLER DE ALBAÑILERÍA

EDIFICIO VIVIENDA

COMERCIO

4 6
12 18
ÍNDICE
5 24 TALLER VI CENTRO CULTURAL PINAMAR 30 TALLER VIII EDIFICIO HIBRIDA VIVIENDA 34 TALLER IX INSTITUTO NACIONAL DE CAPACITACIÓN

ARQUITECTURA Y ARTE TIlI

RESIDENCIAL MULTIFAMILIAR

MALECÓN PAZOS

BARRANCO, LIMA

El proyecto consisite en un edificio multifamiliar de nueve departamentos. Se ubica frente al Malecón Pazos en el cruce de la Av. Marinez y la Av. Carlos Zegarra, distrito de Barranco. El objetivo del diseño de su fachada es relacionarse con el entorno y las fachadas colindantes. Se toma como referencia el entorno barranquino. Se toma en cuenta la composición de colores y formas.

Ubicación de terreno Av. Marinez y Av. Carlos Zegarra

Elemento

Se tiene una base en forma de L y se configura

Alteraciones

Se suma un segundo bloque como segundo nivel.

Perforación

Se hace un destajo en el lado este hacia afuera de la volumetría.

7

PRIMERA PLANTA SEGUNDA PLANTA TERCERA PLANTA

PRODUCED BY AN AUTODESK STUDENT VERSION

PRODUCED BY AN AUTODESK STUDENT VERSION

PRODUCED BY AN AUTODESK STUDENT VERSION

8
PRODUCED BY AN AUTODESK STUDENT VERSION PRODUCED BY AN AUTODESK STUDENT VERSION
AUTODESK STUDENT VERSION
AUTODESK STUDENT VERSION
PRODUCED BY AN
PRODUCED BY AN
PRODUCED BY AN AUTODESK STUDENT VERSION PRODUCED BY AN AUTODESK STUDENT VERSION
ELEVACIÓN

CORTE TRANSVERSAL

CORTE LONGITUDINAL

9
10
11

ARQUITECTURA Y FUNCIÓN T IV

EDIFICIO HÍBRIDO CULTURAL

CIRCUITO “CERRO DE LA MEMORIA”

CERRO SAN CRISTOBAL, RÍMAC

El proyecto consiste en enaltecer las zonas más paupérrimas del Cerro San Cristóbal posicionando uno de los 6 hitos en los caminos secundarios. El concepto del circuito es el proceso de la memoria, por lo tanto cada hito debe cumplir un tema asociado a la memoria del Cerro San Cristóbal.

Volumetría

Se empieza a moldear para definir una volumetría.

PSJ.ALVASANCHEZ PASJ. HUASCAR CA. LETICIA

LT-3

LT-92 296-A 296 300

LT-19 LT-46

S/N LT-21LT-20 LT-22

LT-10 LT-7 LT-6

LT-10 S/N

LT-26 LT-25 S/N

JR.TUPACAMARU JR. SINCHI ROCA

LT-19 LT-3 LT-1 LT-19 S/N LT-6 LT-5 461 LT-6

LT-1 Calle Leticia

LT-7

LT-6 LT-4 LT-3A LT-2 580 325

LT-23

LT-4

Funcionalidad

Lenguaje PSJ. SANCHEZ CERRO

Se hace la distribución de los paquetes funcionales de acuerdo a la forma.

13
Se hace resaltar el terreno para así obtener un lenguaje Ubicación de terreno

PLANTA BAJA PLANTA ALTA

Codificación

Práctica

Práctica

Centro de Exposiciones Multifamiliar -10 viviendas

14
15 ELEVACIÓN SUR CORTE LONGITUDINAL
16
17

ALBAÑILERÍA SIMPLE

TALLER DE CONSTRUCCIÓN

EDIFICIO VIVIENDA COMERCIO CAFETERÍA

SANTIAGO DE SURCO, LIMA

Se desarrollará un proyecto de vivienda multifamiliar y un local comercial en una edificación en esquina con un total de 3 niveles. Dadas la circunstancias de la emergencia sanitaria por el COVID-19, el trabajo encargado deberá considerar para su diseño y desarrollo los criterios y adecuaciones para el nuevo tipo de convivencia, referido al distanciamiento físico y a la limpieza y desinfección constante.

Ubicación de terreno

Módulo base

Se tiene una base en forma de L para despues hacer unas modificacion encima.

Perforaciones

En total se hicieron cindo perforaciones en todo el módulo. Tres en nivel superior y dos en el interior.

Repeticiones

Para la repetición de módulos se tomó base que haya un orden en la dirección de estos.

19
Avenidas Benavides y Velasco Astete

CORTE TRANSVERSAL

20 CORTE LONGITUDINAL

PRIMERA PLANTA SEGUNDA PLANTA TERCERA PLANTA

ESQUEMA FUNCIONAL

Local comercial

Recepción de viviendas

Circulación

Vivienda 2 dorm

Vivienda duplex

Circulación

Vivienda 1 dorm

Vivienda duplex

Circulación

21

DETALLE CONSTRUCTIVO

ISOMETRÍA EXPLOTADA

22
23

ARQUITECTURA Y CONSTRUCCIÓN TVI

CENTRO CULTURAL PINAMAR ESPACIO DE SABIDURÍA

PINAMAR, ARGENTINA

El proyecto tiene como objetivo crear un lugar de contemplación y reflexión para el ppublico argentino. Implementa formas orgánicas para enfatizar con le concepto. Se propone una fachada para la zona de auditorios que genere verticalidad y sirva como parasoles, generando ambientes frescos. Sigue el concepto de formas sinuosas que lo mimetizan con su contexto natural. Busca una fachada que mantiene una modulación compuesta por barras de madera. la madera es de eucalipto de la zona.

Ubicación de terreno

Avenidas Quintana y Tridente

Módulo base

Se tiene una base de columnas y vigas para despues hacer unas modificacion encima.

Fachada

Se agrega una fachada curvilínea para así adecuar el proyecto a su contexto.

Cáscara

Una malla envolvente cubre todo el sistema de columnas y vigas, con una cubierta que se extiende al nivel de

25

ESPACIO PÚBLICO

PLANTA

26
CORTE
27
28
29

ARQUITECTURA Y CIUDAD

TVIII

EDIFICIO BIBLIOTECA - VIVIENDA

MAGDALENA DEL MAR, LIMA

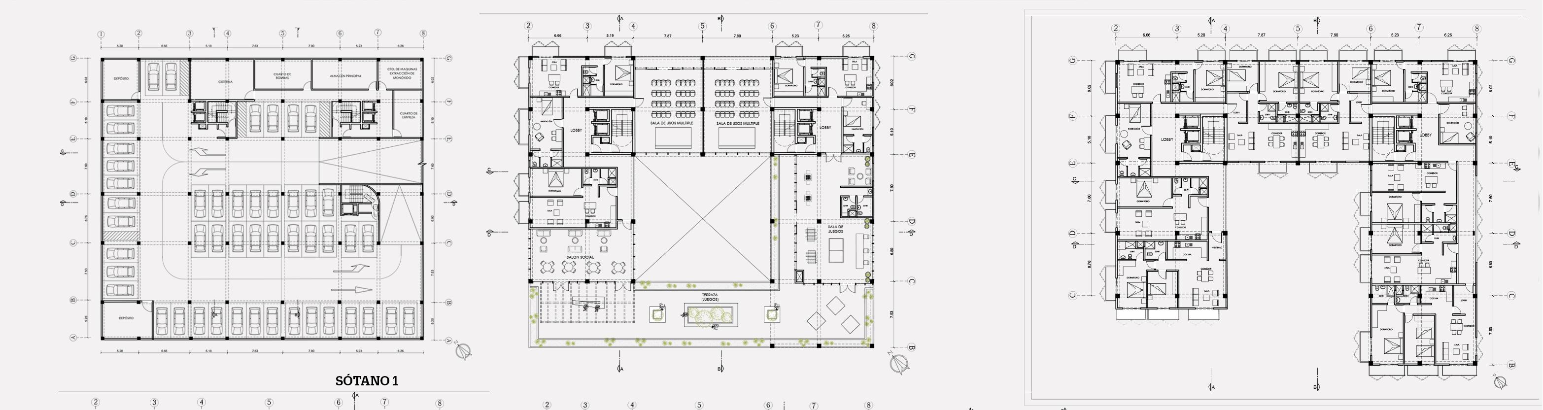
El edifcio realizado es de uso urbano, corresponde al uso de biblioteca y residencia. Tiene 20 pisos y está compuesto por bloques dividios en comercio cultura y vivienda. Se diferencia la zona de bibliotecas con viviendas por las áreas comunes que son: zona de parrillas, salones sociales, salas de juegos, gimnasio,salas de niños y terrazas. Las viviendas están compuestas por flats y dúplex. Se relaciona con su contexto mediante terrazas verdes. La espacialidad busca un énfasis permeable mediante vacíos que dan a lugar a patios interiores.

31
32
33

TALLER DE EJERCICIO PROFESIONAL

T IX

AVANCE NATIONAL TRAINING INSTITUTE

SAN ANTONIO, TEXAS

El objetivo es poseer una manzana entera cerca del campus del centro de UTSA que limita con Commerce St. al sur, Frio St. al este, Medina St. al oeste y Houston St. al este. norte. Se crea una nueva estructura en una parcela en la esquina que actúa como un hito visible para toda la manzana. Se une a una estructura histórica, que eventualmente quieren convertir en instalaciones de vivienda para huéspedes a corto plazo. El resto de edificios de la manzana también son históricos, por lo que este proyecto requiere una especial sensibilidad al contexto existente.

CRITERIOS DE DISEÑO BIOCLIMÁTICO

PROTECCIÒN HORIZONTAL DE LAMAS METALICAS

FACHADAOESTE FACHADANORTE

PROTECCIÒN VERTICAL DE PARASOLES METALICOS

PANELES FOTOVOLTAICOS

FACHADASUR FACHADAESTE

COSECHA DE LLUVIA

Ubicación de terreno

35
The goal is to own an entire city block near UTSA's downtown campus that is bordered by Commerce St. to the south, Frio St. to the east, Medina St. to the west, and Houston St. to the east. north. new structure is created on a parcel at the corner of Commerce and Frio, which acts as visible landmark for the entire block. adjoins historic structure, Cattleman Square Apartments and Tavern (1923 Richbook Bldg.) facing Frio St., which they eventually want to convert to short-term guest living facilities. The rest of the buildings on the block are also historical, so this project requires special sensitivity to the existing context. The proposed new structure occupies the current location of the Pic Nic Foods building which will be deconstructed. Part of the task requires reusing bricks from an old house that they recently purchased. The AVANCE program attempts to foster parenting knowledge and skills through a nine-month intensive parenting curriculum having direct impact on young child’s physical, emotional, social and cognitive development. Along with the strong parenting education component, parents work on improving their own educational status. Classes o ered to parents consist of literacy and nancial education, college preparation and technical support. AVANCE's philosophy based on the premise that education should begin at home when child's life begins and that parents are the child's rst and most important teacher. AVANCE's goal is: Low-income families with children ages birth to three will increase their parenting knowledge to become their children's rst teacher and promote their children's school readiness. The proposal seeks to work with families and foster community, trust and learning. San Antonio, Texas
Project Description SOUTH FACADE SECTION CONFERENCE ROOM D3 A' D7 D8 ROCK WOOL INSULATION E=4" STEEL EDGE E= 0.4" GALVANIZED STEEL PROFILE E= 0.016" ALUMINUM SUPPORT BAR 3"X4" PLASTER FINISH E=0.4" SUBFLOOR E=2" CONCRETE POURING OF COLLABORATING SLAB E=6.7" THERMAL INSULATION OF EXPANDED POLYSTYRENE E=0.98" PROTECTION AND DRAINAGE LAYER SLOPE = 2" RAIN DRAINAGE PIPE STEEL BEAM 19.6"x11.8" PORCELAIN FINISH DIM 15"x35"x0.4" HORIZONTAL ALUMINUM FRAME SATIN GRAY COLOR 2"x5" FALSE CONCRETE FLOOR E=4" METAL TRUSS E=3.5" PRE-LACQUERED AND PROFILED FIXED SUPPORT E=3.5" HORIZONTAL ALUMINUM PROFILE E=3.5" RAIL SYSTEM SLR E= 3.9" DOUBLE GLASS e=0.31" PORCELAIN FINISH E=0.4" CONCRETE SUBFLOOR E=1.5" SOUTH FACADE ELEVATION N.P.T. +72.17' N.P.T. +57.74' 2' METAL SUN PROTECTION SLEEVE HUNTER DOUGLAS TYPE 84R TYPE E=0.23" CONCRETE POURING OF COLLABORATING METAL SUN PROTECTION SLEEVE HUNTER CONCRETE POURING OF COLLABORATING HORIZONTAL ALUMINUM PROFILE E=3.5" METAL SUN PROTECTION SLEEVE HUNTER CONCRETE POURING OF COLLABORATING METAL SUN PROTECTION SLEEVE HUNTER CONCRETE POURING OF COLLABORATING PLASTER BOARD AYPLAC E= 0.4" DOUBLE GLASS e=0.31" CONCRETE SUBFLOOR E=1.5" ALUMINUM SPACER PROFILE E=0.15" ALUMINUM PROFILE IN "C" GLASS SUPPORT E=0.15" NAAB STANDARDS PC2 SC5 SC6 SC4 SC4 PC2 FACADE DETAIL SURROUNDINGS PLAN HVAC SISTEM FACADE FIST FLOOR SURROUNDINGS 2 E 8 9 10 11 13 14 15 E 16 17 18 19 12 20 21 27 23 24 26 E 28 29 30 31 E 32 33 36 35 37 38 39 40 41 42 43 44 45 46 47 48 49 50 51 52 53 54 55 56 57 22 34 25 PHOTOVOLTAIC PANEL PHOTOVOLTAIC PANEL PHOTOVOLTAIC PANEL PHOTOVOLTAIC PANEL PHOTOVOLTAIC PANEL PHOTOVOLTAIC PANEL NAAB STANDARDS RECREATION AREA N°8 RECREATION AREA N°7 RECREATION AREA N°6 RECREATION AREA N°5 RECREATION AREA N°4 RECREATION AREA N°3 RECREATION AREA N°1 W. COMMERCE ST W. HOUSTON ST N. FRIO ST EXISTING BUILDING 02 2 FLOORS PROPOSE BUILDING 03 2 FLOORS EXISTING AVANCE FACILITY 01 FLOORS TANK RAIN HARVEST PHOTOVOLTAIC PANEL PHOTOVOLTAIC PANEL PHOTOVOLTAIC PANEL PC2 PC2 PC2 PC2 PC2 PC2 SC5 SC5 SC3 SC3 SC3 SC3 SC3 SC3 SC4 SC4 SC4 SC4 SC4
AVANCE National Training Institute

THIRD FOURTH FLOOR

A' DRYWALL BOARD (FINISHED AND PAINTED GYPLAC PLASTER) Dim 4' x 8', e= 4.7" METAL SUN DOUGLAS FACADE DETAIL NAAB STANDARDS W.COMMERCE ST FIRST FLOOR ENTRANCE HALL HOLDING AREA capacity: 140 ft² SECONDARY ENTRANCE capacity: 140 MAIN ENTRANCE capacity: 525 ft² KINDERGARTEN RECEPTION CLEANING KINDERGARTEN P_01 P_01 P_01 NO BINARY RESTROOM 75.3 ft² RESTROOM 95.3 ft² MEN'S RESTROOM 107.6 RESTROOM 95.3 ft² P_01 7.6' EMERGENCY EMERGENCY STAIRS PROPERTY LIMIT LINTEL PROJECTION Ø10' TANK Rain harvest ENTRANCE HALL N.P.T.+0.0' ELEVATOR STORAGE KINDERGARTEN PLANNING ROOM capacity: 200 7.7' P_01 10' 10.8' TREAD: 9.8" RISER: 6.7" Ø10' Ø10' 10' �1 �1 �1 �1 WOMEN'S RESTROOM �2 W1 �3 W2 �4 �5 �6 FLOOR FLOOR PROJECTION TREAD: 9.8" RISER: 6.7" �7 W3 P_02 �8 M_01 V_01 V_01 V_01 V_02 P_01 P_01 P_01 P_01 SC3 SC5 SC5 SC5 SC6 W2 W2 SC3 SC3 SC5 P_01 P_02 SC4 PLAYGROUND SC3 STEEL COLUMN 12"x12" SC4 M_01 P_03 P_03 P_03 P_03 TANK Rain harvest TANK Rain harvest SC3 SC3 PC2 PC2 PC2 SC4
PROJECTION OF HORIZONTAL SUN STEEL COLUMN 12"x12" COMPUTER LAB capacity: 20 LECTURE HALL capacity: 100 1790 STORAGE HALL 36' P_01 P_01 P_01 P_01 P_01 P_01 ENTRANCE HALL ELEVATOR N.P.T.+14.43' 10.53' PLANNING ROOM capacity: 200 PROJECTION OF HORIZONTAL SUN EMERGENCY STAIRS ELEVATOR STORAGE COMPUTER VERTICAL SUN PROTECTION SYSTEM 15.6' PROJECTION OF VERTICAL SUN SYSTEM SOLAR PROJECTION RESTROOM 75.3 GIRLS'S 95.3 ft² MEN'S RESTROOM 95.3 P_01 �1 �1 WOMEN'S 107.6 ft² P_01 P_01 P_01 SC5 SC3 SC5 SC3 SC3 SC3 SC5 �2 TREAD: 9.8" STAIRS RISER: 6.7" �2 W1 SC3 �3 P_01 SC5 SC5 �4 W2 W3 W2 SC4 SC6 �7 V_01 V_01 V_01 V_01 V_02 V_02 V_02 V_02 V_02 P_02 P_02 STEEL COLUMN 12"x12" SC4 SC6 SC3 SC3 SC6 V_02 V_02 �10 �10 45' 45' V_01 V_01 V_01 V_01 V_01 V_01 V_02 V_02 V_02 V_02 SC3 SC3 SC3 SC3 SC3 PC2 12"x12" HORIZONTAL SUN PROTECTION SYSTEM SURROUNDINGS PLAN HVAC SISTEM CROSS SECTION 1.00 3.20 3.20 1.00 1.00 3.20 1.02 STEEL BEAM 19.6"x11.8" SC6 PROTECTION SYSTEM SOUTH FACADE SECTION AULA CONFERENCE ROOM SALA DE PLANIFICIACIÓN AULA D3 A' 28° D1 D6 D5 D4 28° 2' D2 D7 D8 ROCK WOOL INSULATION E=4" STEEL EDGE E= 0.4" GALVANIZED STEEL PROFILE E= 0.016" ALUMINUM SUPPORT BAR 3"X4" PLASTER FINISH E=0.4" SUBFLOOR E=2" CONCRETE POURING OF COLLABORATING SLAB E=6.7" THERMAL INSULATION OF EXPANDED POLYSTYRENE E=0.98" PROTECTION AND DRAINAGE LAYER SLOPE = 2" RAIN DRAINAGE PIPE STEEL BEAM 19.6"x11.8" PORCELAIN FINISH DIM 15"x35"x0.4" HORIZONTAL ALUMINUM FRAME SATIN GRAY COLOR 2"x5" FALSE CONCRETE FLOOR E=4" METAL TRUSS E=3.5" PRE-LACQUERED AND PROFILED FIXED SUPPORT E=3.5" HORIZONTAL ALUMINUM PROFILE E=3.5" RAIL SYSTEM SLR E= 3.9" DOUBLE GLASS e=0.31" PORCELAIN FINISH E=0.4" CONCRETE SUBFLOOR E=1.5" STEEL COLLABORATING PLATE E=0.03" DRYWALL BOARD (FINISHED AND PAINTED GYPLAC PLASTER) Dim 4' 8', e= 4.7" DOUBLE GLASS e=0.31" METAL SUN PROTECTION SLEEVE HUNTER DOUGLAS TYPE 84R TYPE E=0.23" SOUTH FACADE ELEVATION N.P.T. +72.17' N.P.T. +57.74' N.P.T. +43.30' N.P.T. +28.87' N.P.T. +14.43' N.P.T. +0.00 2' 2' 2' 2' METAL SUN PROTECTION SLEEVE HUNTER DOUGLAS TYPE 84R TYPE E=0.23" CONCRETE POURING OF COLLABORATING SLAB E=6.7" METAL TRUSS E=3.5" METAL TRUSS E=3.5" HORIZONTAL ALUMINUM PROFILE E=3.5" STEEL BEAM 19.6"x11.8" RAIL SYSTEM SLR E= 3.9" METAL SUN PROTECTION SLEEVE HUNTER DOUGLAS TYPE 84R TYPE E=0.23" PRE-LACQUERED AND PROFILED FIXED SUPPORT E=3.5" DOUBLE GLASS e=0.31" PORCELAIN FINISH E=0.4" CONCRETE SUBFLOOR E=1.5" CONCRETE POURING OF COLLABORATING SLAB E=6.7" STEEL COLLABORATING PLATE E=0.03" METAL TRUSS E=3.5" STEEL BEAM 19.6"x11.8" METAL TRUSS E=3.5" HORIZONTAL ALUMINUM PROFILE E=3.5" METAL TRUSS E=3.5" HORIZONTAL ALUMINUM PROFILE E=3.5" STEEL BEAM 19.6"x11.8" RAIL SYSTEM SLR E= 3.9" METAL SUN PROTECTION SLEEVE HUNTER DOUGLAS TYPE 84R TYPE E=0.23" PRE-LACQUERED AND PROFILED FIXED SUPPORT E=3.5" DOUBLE GLASS e=0.31" PORCELAIN FINISH E=0.4" CONCRETE SUBFLOOR E=1.5" CONCRETE POURING OF COLLABORATING SLAB E=6.7" STEEL COLLABORATING PLATE E=0.03" METAL TRUSS E=3.5" RAIL SYSTEM SLR E= 3.9" METAL SUN PROTECTION SLEEVE HUNTER DOUGLAS TYPE 84R TYPE E=0.23" PRE-LACQUERED AND PROFILED FIXED SUPPORT E=3.5" DOUBLE GLASS e=0.31" PORCELAIN FINISH E=0.4" CONCRETE SUBFLOOR E=1.5" CONCRETE POURING OF COLLABORATING SLAB E=6.7" STEEL BEAM 19.6"x11.8" METAL TRUSS E=3.5" PLASTER BOARD AYPLAC E= 0.4" DOUBLE GLASS e=0.31" CONCRETE SUBFLOOR E=1.5" ALUMINUM SPACER PROFILE E=0.15" ALUMINUM PROFILE IN "C" GLASS SUPPORT E=0.15" EXTERIOR FIRST LEVEL NAAB STANDARDS .60 PC2 PC2 SC5 SC6 SC6 SC6 SC6 SC5 SC6 SC5 SC6 SC5 SC6 SC5 SC6 SC4 SC4 SC4 PC2
FIRST FLOOR SECOND FLOOR 53.8 ft² RECEPTION capacity: capacity: KINDERGARTEN KINDERGARTEN P_01 P_01 BOYS STORAGE KINDERGARTEN capacity: �6 LINTEL PROJECTION P_01 P_01 SC5 PATHWAY M_01 PC2 THIRD FOURTH FLOOR FIFTH FLOOR P_01 P_01 P_01 DRINKERS CLASSROOM capacity: STORAGE CLASSROOM capacity: OBSERVATION capacity: OBSERVATION capacity: PROJECTION OF HORIZONTAL SUN EMERGENCY STAIRS SC3 �3 HVAC SYSTEM EMERGENCY BINARY RESTROOM 95.3 RESTROOM 95.3 �1 P_01 P_01 �2 M_01 M_01 M_01 P_02 STEEL COLUMN SC4 �4 SC5 �8 �8 VERTICAL SUN PROTECTION SYSTEM V_01 V_02 V_02 V_01 V_02 V_02 V_02 COMPUTER LAB capacity: 1790 P_01 P_01 P_01 capacity: EMERGENCY VERTICAL SUN PROTECTION SYSTEM 15.6' SOLAR PROJECTION NO BINARY RESTROOM RESTROOM 95.3 �1 P_01 P_01 SC3 �8 V_01 V_02 V_02 SC3 V_02 V_02 V_01 V_01 V_02 V_02 capacity: capacity: THE ROOF capacity: ENTRANCE HALL ELEVATOR P_01 P_01 P_01 16' KITCHENETTE capacity: capacity:3 120 capacity:3 P_01 EMERGENCY RISER: 6.7" SC3 W3 SC6 W1 NO BINARY P_01 P_02 SC4 �8 �8 SC3 SC5 SC5 SC5 HORIZONTAL SUN V_01 V_02 V_02 V_02 V_01 V_01 V_02 V_02 V_02 V_02 SURROUNDINGS PLAN HVAC SISTEM CROSS SECTION 1.00 3.20 CLASSROOM CLASSROOM STAIRS EMERGENCY ENTRANCE HALL HALL STEEL BEAM 19.6"x11.8" SC6 �11 MECHNICAL ROOM PLANIFICIACIÓN ALMACÉN LECTURE HALL GUARDERÍA Slope RECEPTION EMERGENCY STAIRS EMERGENCY STAIRS SECONDARY CONFERENCE CLASSROOM CLASSROOM SC3 �10 �10 �4 LONGITUDINAL SECTION DETALLE DE FACHADA PLANTA Y CORTE
FACADE DETAIL
37 SOUTH FACADE SECTION D3 A' 28° D7 D8 ROCK WOOL INSULATION E=4" STEEL EDGE E= 0.4" GALVANIZED STEEL PROFILE E= 0.016" ALUMINUM SUPPORT BAR 3"X4" PLASTER FINISH E=0.4" SUBFLOOR E=2" CONCRETE POURING OF COLLABORATING SLAB E=6.7" THERMAL INSULATION OF EXPANDED POLYSTYRENE E=0.98" PROTECTION AND DRAINAGE LAYER SLOPE E = 2" RAIN DRAINAGE PIPE PORCELAIN FINISH DIM 15"x35"x0.4" HORIZONTAL ALUMINUM FRAME SATIN GRAY COLOR 2"x5" FALSE CONCRETE FLOOR E=4" SOUTH FACADE ELEVATION N.P.T. +72.17' N.P.T. +0.00 DOUBLE GLASS e=0.31" CONCRETE SUBFLOOR E=1.5" ALUMINUM SPACER PROFILE E=0.15" ALUMINUM PROFILE IN "C" GLASS SUPPORT E=0.15" EXTERIOR FIRST LEVEL NAAB STANDARDS PC2 SC5 SC6 SC4 SC4 PC2 FACADE DETAIL SECOND FLOOR FIFTH FLOOR P_01 P_01 P_01 CLASSROOM capacity: 500 STORAGE PROJECTION VERTICAL SUN PROTECTION W1 107.6 P_02 P_01 SC5 V_01 V_01 V_02 V_01 PC2 CONFERENCE ROOM RECEPTION ADMINISTRATION 355 SECONDARY CONFERENCE ROOM CONFERENCE P_01 P_01 P_01 P_01 P_01 REST ROOM capacity:3 OFFICE ADMINISTRATIVE SC4 P_02 RESTROOM 107.6 SC5 SC5 �11 PROJECTION OF VERTICAL SUN PROTECTION SYSTEM V_01 V_01 V_02 V_02 V_02 V_02 HVAC SISTEM HALL DE PLANIFICIACIÓN HARVESTING WATER Slope EMERGENCY ROOM �10 �8 �8 �4 �4 LONGITUDINAL SECTION DETALLE DE FACHADA SISTEMA HVAC

ANEXOS: DISEÑO DE INTERIORES

DISEÑO INTERIOR ECO LODGE

38
39

ANEXOS: DISEÑO DE INTERIORES

DISEÑO DE WALK IN CLOSET

40
41

ANEXOS: FOTO REALISMO

CASA EN LOS ÁRBOLES / LUCIANO KRUK

PROGRAMAS: 3D MAX, VRAY Y PHOTOSHOP

42
43
mari21an7@gmail.com
u201720963@upc.edu.pe
963806828

Turn static files into dynamic content formats.

Create a flipbook
Issuu converts static files into: digital portfolios, online yearbooks, online catalogs, digital photo albums and more. Sign up and create your flipbook.
Portafolio 2024 by Mari Ang - Issuu