Table of Contents

1. Tulips House
Housing project for a small family
P. 6
2. Data Center
University research thesis project
P. 14
3. Mid & High-Rise
High-rise multi-use and mid-rise residential projects.
P. 28
4. Technical Work
Detailed architectural construction drawings and parametric design.
P. 42
5. ArchViz Exploration
Visualization exploration project
P. 54

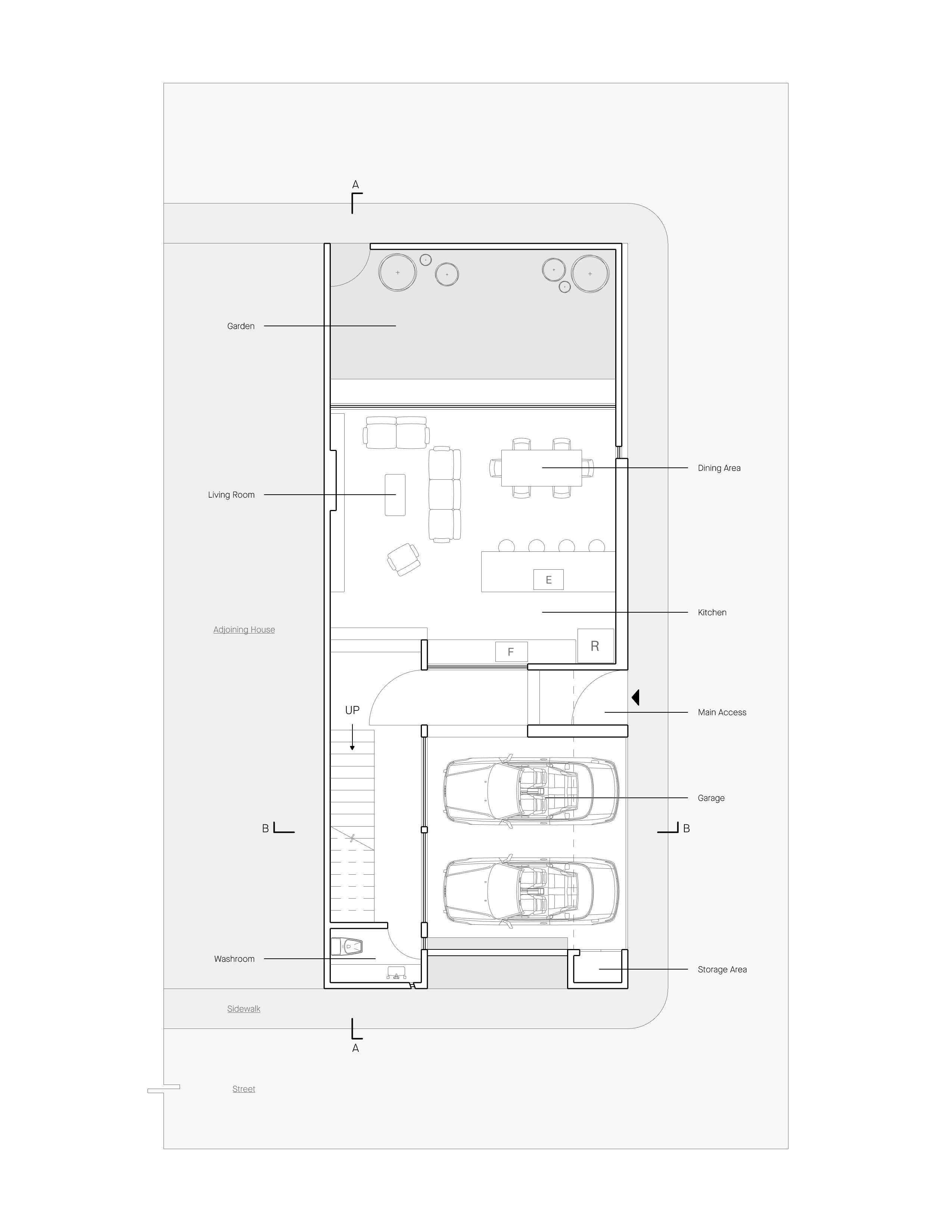
Tulips House
Location: Xalapa, Mexico.
Type: Residential Year: 2020
Architectural design housing project, located on an 8x18 m lot in the city of Xalapa, Veracruz, in Mexico. This project focuses on natural light and ventilation, while at the same time keeping a welcoming sensation, and security in a location where security is a main concern.





A

B


East Elevation

South Elevation
Data Center
Location: Querétaro, Mexico.
Type: Industrial Year: 2021-2022
As everyone life’s became “online” due to COVID-19 and prolonged confinement, 2 problems became relevant: the need for more cloud data storage to support an exponential growth of e-commerce and digital consumption, and the lack of specialized profesionals who could operate the installations needed to solve the first problem.




The project is divided into 2 main sections: The Special Capacitation Centre, and the Data Centre, where the main computer room takes up most of the space.
Data Center

Site Section


Special Capacitation Center - Ground Floor




Data Center - Ground Floor A


Data Center - Ground Floor B


































Special Capacitation Center - Longitudinal Section










































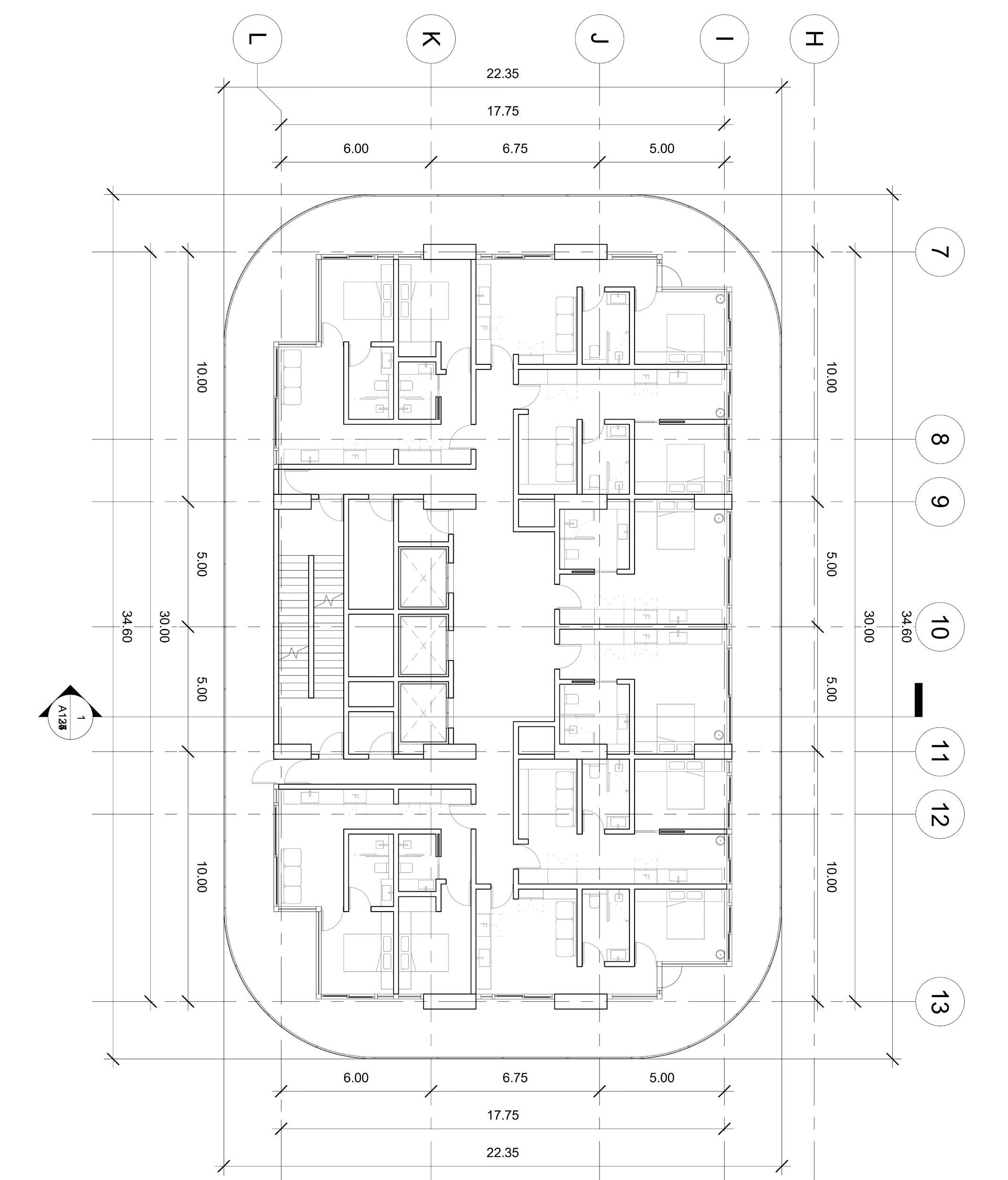
Mid & High-Rise Projects
Location: Toronto, Canada.
Type: Residential.
Year: 2023-2024
1. High-rise Mixed-use Project
2. Mid-rise Residential Project
These designs integrate residential, commercial, and recreational spaces, prioritizing functionality, sustainability, and urban livability while adhering to local codes and building standards for high-rise and midrise multi-use projects.

1. High-rise Mixed-use Project
RESIDENTIAL RENTAL BUILDING
GREEN ROOF FINS

RESIDENTIAL CONDO BUILDING
RETAIL & AMENITIES
PODIUM







Condo Apartments - Detail Section

Amenities & Rental Apartments - Floor Plan

1-Bedroom Apartment

2-Bedroom Apartment

2. Mid-rise Residential Project

Site Plan


Mid-Rise Senior Residential Project - Apartments Floor Plan

Mid-Rise Senior Residential Project - South Elevation


Technical Work
Type: Industrial, Educational, Residential. Year: 2021-2024
This part of the portfolio presents detailed architectural drawings, furniture design and parametric node scripting through grasshopper, emphasizing precision in measurements, meticulous detailing and parametric design capabilities. Showcasing the transformation of concepts into practical and deliverable designs.

Dining Table
Grasshopper Node Script


Script Aplication 1



Piece Sorting, numeration, and CNC ready plans.

Script Aplication 2








WC Enlarged Plan

Structural Column - Section Detail

Floor Plan Detail

Structural Column - Section Detail

Floor Plan Detail

Structural Column - Detail Foundation Beam Detail


Main Structural Column - Detail

Interior Classroom Elevation 1


Piece Placement - Front Elevation


Piece Placement - Lateral Elevation

Piece Dimensions

Curved Piece Locations




ArchViz Exploration Project
Type: Concept Year: 2020-2024
Architectural design goes beyond blueprints, which is why my ArchViz exploration project consists of testing various rendering and modeling tools to bring to life architectural designs. This research has allowed me to selftaught tools such as Grasshopper, D5 Render, Unreal Engine, V-ray, Twinmotion, Corona Render, and 3DS Max.




Conceptual shape design was also a focus on this project.
The conceptual masses helped to achieve results more easily while at the same time leaving room for interpretation of the function of the volumes.







Following interior design, product design visualization scenes were also set up.



On behalf of exterior visualization, interior visualization was also explored setting an interior design scene to test various lighting scenarios, as well as textures.

Finally, Real-time visualization in Unreal Engine served to achieve results such as photorealistic environments.
An advantage of this render engine is the possibility to implement VR to projects.


oscar.mirandaa@outlook.com
https://www.behance.net/omlight +1 (437) 424 5172